اندروید شامل نسخه 2 ITS-in-a-box، یک سیستم تست خودکار برای سیستمهای دوربین میدان دید گسترده (WFoV) و میدان دید معمولی (RFoV) در مجموعه تست تصویر دوربین (ITS) است . نسخه 1 برای آزمایش دوربین های دستگاه های تلفن همراه با FoV کمتر از 90 درجه (RFoV) طراحی شده است.
جعبه میدان دید گسترده (نسخه 2) برای آزمایش دوربین هایی طراحی شده است که فو وی بیشتر از 90 درجه (WFoV) دارند، و شما را قادر می سازد از یک سیستم ITS-in-a-box برای آزمایش دوربین های مختلف با فو وی های مختلف استفاده کنید، مشروط بر اینکه دوربین ها بتوانند در حدود 20 سانتی متر فوکوس کنند.
سیستم ITS-in-a-box متشکل از یک جعبه پلاستیکی برش لیزری از نقشه های طراحی به کمک کامپیوتر (CAD)، یک سیستم روشنایی داخلی، یک تبلت نمودار و یک دستگاه در حال آزمایش (DUT) است. می توانید یک ITS-in-a-box بخرید یا خودتان بسازید.
یک WFoV ITS-in-a-box بخرید
توصیه می کنیم یک WFoV ITS-in-a-box را از یکی از فروشندگان واجد شرایط زیر خریداری کنید.
Byte Bridge Inc.
ایالات متحده آمریکا: 1502 Crocker Ave, Hayward, CA 94544-7037
چین: 22F #06-08، Hongwell International Plaza Tower A, 1600 West Zhongshan Road, Xuhui, Shanghai, 200235
www.bytebt.com
androidpartner@bytebt.com
ایالات متحده آمریکا: +1-510-373-8899
چین: +86-400-8866-490JFT CO LTD 捷富通科技有限公司 (قبلاً با نام MYWAY DESIGN شناخته می شد)
چین: پلاک 40، لین 22، جاده هیی، شهر ووجینگ، منطقه مینهنگ، شانگهای، چین
تایوان: 4F.، شماره 163، جاده فو-یینگ، منطقه XinZhuang، شهر جدید تایپه 242، تایوان
www.jftcoltd.com
service@jfttec.com یا its.sales@jfttec.com
چین: +86-021-64909136
تایوان: 886-2-29089060
آموزش تصویری
این یک آموزش ویدیویی در مورد نحوه راه اندازی WFoV ITS-in-a-box است.
یک WFoV ITS-in-a-box بسازید
به جای خرید WFoV ITS-in-a-box (نسخه 2)، می توانید خودتان را بسازید. این بخش شامل دستورالعمل های گام به گام برای مونتاژ WFoV ITS-in-a-box (نسخه 2) است که می تواند دوربین هایی با میدان دید وسیع (بیشتر از 90 درجه) را آزمایش کند.
تاریخچه تجدید نظر
جدول زیر تاریخچه بازبینی دستگاه Camera ITS WFoV را شرح می دهد و شامل لینک های دانلود برای هر نسخه از فایل های تولیدی است.
| تاریخ | تجدید نظر | دانلود فایل تولیدی | تغییر گزارش |
|---|---|---|---|
| دسامبر 2022 | 2.9 | WFoV Rev 2.9 |
|
| اکتبر 2019 | 2.8 | در دسترس نیست |
|
| اکتبر 2018 | 2.7 | در دسترس نیست |
|
| آگوست 2018 | 2.6 | در دسترس نیست |
|
| آگوست 2018 | 2.5 | در دسترس نیست |
|
| ژوئن 2018 | 2.4 | در دسترس نیست |
|
نقشه های مکانیکی
نقشه مکانیکی زیر WFoV ITS-in-a-box مواد مورد نیاز برای مونتاژ را نشان می دهد. برای شروع، آخرین فایل های تولیدی WFoV ITS-in-a-box را دانلود کنید.

شکل 1. ترسیم مکانیکی WFoV ITS-in-a-box
سخت افزار را از صورتحساب مواد (BOM) خریداری کنید. قطعات پلاستیکی و وینیل را برش دهید.
ابزار مورد نیاز
ابزارهای زیر را در دسترس داشته باشید:
- پیچ گوشتی سر فیلیپس
- انبر بینی سوزنی
- سیم برش
- قیچی
- بطری اسپری آب
- چاقوی X-ACTO
مرحله 1: وینیل رنگی را اعمال کنید
برای اعمال وینیل رنگی:
وینیل رنگی را روی سمت صاف اکریلونیتریل بوتادین استایرن (ABS) بمالید و مطابق شکل 2 سوراخ های لازم را برش دهید. اطمینان حاصل کنید که وینیل سفید را با دهانه مستطیلی بزرگ در سمت تبلت و وینیل سیاه را با دهانه دایره ای در سمت دستگاه تلفن همراه جعبه اعمال کنید.
همانطور که در شکل 2 نشان داده شده است وینیل خاکستری را روی پانل های جانبی بمالید و پایه ها را مانند شکل 3 روی چهار گوشه پانل پایینی بچسبانید.
برای اطلاعات بیشتر، به wikiHow مراجعه کنید.

شکل 2. قطعات ABS با وینیل اعمال شده در سمت صاف (داخلی جعبه)
همانطور که در شکل 3 نشان داده شده است، پاها را روی چهار گوشه پانل پایینی قرار دهید.

شکل 3. پاها در چهار گوشه پانل پایینی
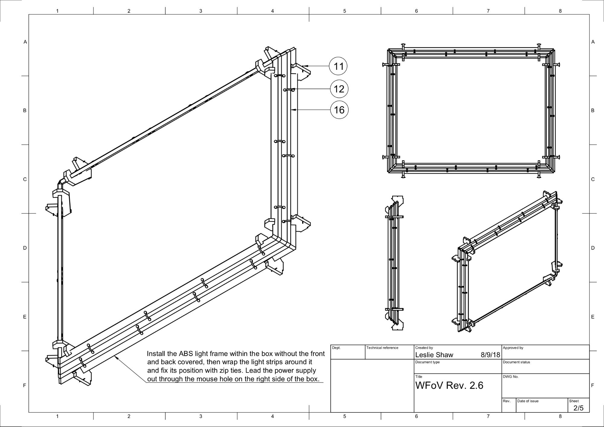
مرحله 2: ریل نور را مونتاژ و نصب کنید
برای مونتاژ و نصب ساختار قاب نور با نوارهای نور LED:
نقشه مکانیکی ساختار قاب نور را مرور کنید.

شکل 4. ساختار قاب نور با نوارهای نور LED
حفاظهای نور پلاستیکی، پایههای نور، نوارهای LED و زیپبندیها را جمع کنید.

شکل 5. بافل های نور و پایه های نور
حفاظ های نور پلاستیکی را همانطور که در شکل 6 نشان داده شده است به پایه های نور بچسبانید. این باید محکم باشد.

شکل 6. بافل های نور پلاستیکی نصب شده در پایه های نور
پایه های نور را همانطور که در شکل 7 نشان داده شده است به پانل های جانبی بچسبانید. پس از تکمیل، نور به سمت گوشه های جلویی داخلی جعبه می تابد.

شکل 7. حفاظ ها و پایه های نور بر روی پانل های جانبی چسبیده اند
پانل های جانبی را جمع کنید. (اختیاری: برای تناسب بهتر لبه های بافل ها را سنباده بزنید.)

شکل 8. پانل های جانبی مونتاژ شده و به هم پیچ شده اند
بافیل های نور را با فشار دادن پین به سوراخ کوچک روی زبانه مستطیلی که از طریق شکاف در پانل های جانبی امتداد می یابد، همانطور که در شکل 9 نشان داده شده است، محکم کنید.

شکل 9. پین درج شده در زبانه نصب LED در قسمت بیرونی جعبه را نزدیک کنید
نوارهای نور را دو بار دور بافل ها از طرفی که رو به پایین است بپیچید. از زیپ برای بستن نوار استفاده کنید و انتهای آن را به هم بچسبانید. (اختیاری: از نوار پشت نوار چراغ LED علاوه بر زیپها برای بستهبندی راحتتر استفاده کنید.)

شکل 10. نوار نور LED که دور بافل ها با زیپ بند پیچیده شده است

شکل 11. زیپی که نوارهای نور LED را در جای خود نگه می دارد
انتهای زیپها را مطابق شکل 12 و 13 ببرید.

شکل 12. چراغ های LED دو بار دور بافل ها پیچیده شده و از خروجی جانبی خارج می شوند.

شکل 13. زیپبندیها در طرف رو به بالا نشان داده میشوند (نوارهای LED در سمت دیگر هستند)
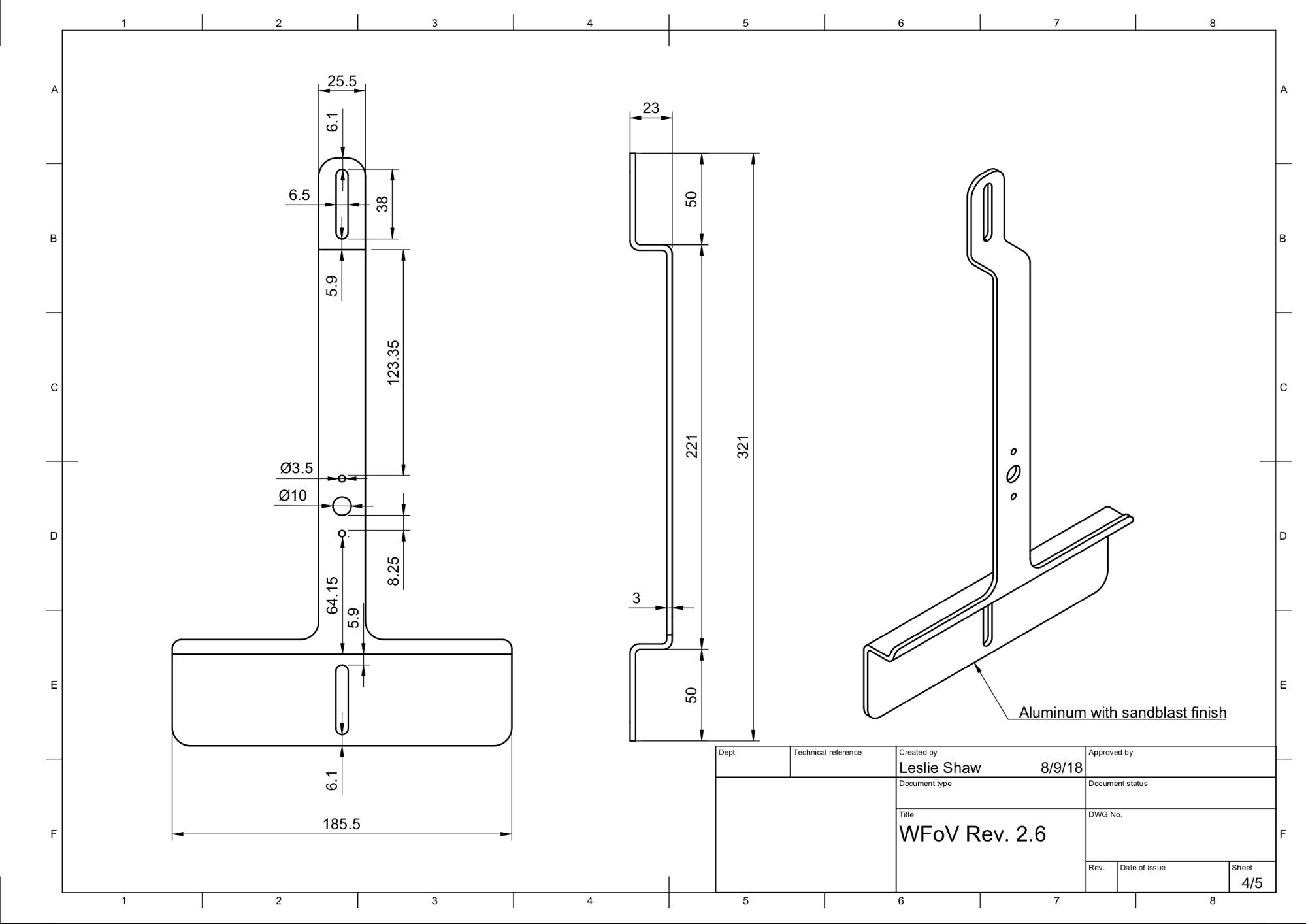
مرحله 3: پایه های تبلت و تلفن را مونتاژ کنید
برای مونتاژ پایه های تبلت و تلفن:
نقشه مکانیکی پایه تبلت را مرور کنید.

شکل 14. نقشه مکانیکی پایه تبلت
همانطور که در شکل 15 نشان داده شده است قطعات را جمع آوری کنید.

شکل 15. پایه های تبلت و تلفن همراه با پیچ، پیستون، درپوش وینیل و مهره
نوک های لاستیکی را به اندازه کافی کوتاه کنید تا در عملکرد پیستون تداخل نداشته باشد (تقریباً به نصف)، و آنها را به انتهای پیستون فشار دهید. طول کلاهک وینیل کوتاه تر این اطمینان را می دهد که مکانیسم پیستون می تواند جمع شود و قفل شود.

شکل 16. پیستون با درپوش فشاری تنظیم شده
پیستون ها را روی پایه ها پیچ کنید.

شکل 17. پایه های تبلت و تلفن با پیستون متصل شده است
مرحله 4: مونتاژ نهایی
برای مونتاژ جعبه WFoV ITS:
صفحات دیافراگم جلو را جمع کنید و از 40-4 پیچ برای پیچاندن صفحه کوچکتر با مربع بالای صفحه بزرگتر همانطور که در شکل 18 نشان داده شده است استفاده کنید.

شکل 18. صفحه دیافراگم جلو و صفحه پایه تلفن

شکل 19. صفحه دیافراگم جلو و صفحه پایه تلفن با 4-40 پیچ به هم پیچ شده اند.
پانل های جلو و پشت را به جعبه بچسبانید.

شکل 20. جعبه WFoV با دو طرف به هم پیچ شده و پانل های جلو و عقب چسبانده شده است.
از یک مته برقی برای ایجاد سوراخ های پایلوت بر اساس سوراخ های موجود استفاده کنید. اطمینان حاصل کنید که سوراخ های پیلوت به اندازه کافی برای 4-40 پیچ بزرگ هستند تا پلاستیک ABS هنگام قرار دادن پیچ ها ترک نخورد.

شکل 21. سوراخ کردن پیلوت برای 4-40 پیچ
تمام پانل ها را با استفاده از 4-40 پیچ خودکار به هم بچسبانید.

شکل 22. 4-40 پیچ برای مونتاژ
قطعات دسته نشان داده شده در شکل 23 را جمع آوری کنید.

شکل 23. قطعات دسته
دسته ها را مطابق شکل 24 جمع کنید.

شکل 24. دسته مونتاژ شده
بررسی کنید که آداپتور برق 12 ولت، 5 آمپر و دارای گواهینامه UL لیست شده باشد. هر چیزی زیر 12 ولت کار نمی کند. هر چیزی کمتر از 5A ممکن است بر سطح روشنایی چراغ ها تأثیر بگذارد.

شکل 25. آداپتور برق 12 ولت، 5 آمپر با گواهینامه UL فهرست شده
با استفاده از یک لوکس متر دیجیتال، لوکس چراغ های LED را تست کنید تا مطمئن شوید که در سطح مناسب هستند.
نورسنج را روی تبلت قرار دهید و برای اندازه گیری نور آن را روی 2000 لوکس قرار دهید. لوکس باید حدود 100-300 باشد. هر چیزی که به میزان قابل توجهی پایینتر باشد، برای آزمایشها بسیار کم نور است و میتواند منجر به شکست تست شود.
لوکس متر YF-1065 توسط Contempo Views در این مثال استفاده شده است.

شکل 26. YF-1065 توسط Contempo Views

شکل 27. نور اندازه گیری لوکس متر از سمت با پایه تبلت
بسته به مقدار لوکس اندازه گیری شده، مرحله مناسب را دنبال کنید:
- اگر نور در سطح مناسبی است، صفحات جلو و عقب را در جای خود پیچ کنید.
- اگر نور در سطح نادرست است، بررسی کنید که LED و شماره قطعه منبع تغذیه صحیح باشند.
پایه گوشی را روی صفحه دیافراگم و پایه تبلت را در طرف مقابل با پیچ و مهره نصب کنید.

شکل 28. نزدیک به پایه تبلت

شکل 29. جعبه WFoV مونتاژ شده: نمای عقب (چپ) و نمای جلو (راست)
دریچه دیافراگم برد gator 10x10 سانتی متر را متناسب با دیافراگم دوربین DUT قرار دهید.

شکل 30. ITS-in-a-box با دیافراگم برد gator نصب شده است
گوشی را با تراز کردن دوربین با دهانه دیافراگم نصب کنید. تراز را از طریق دهانه تبلت بررسی کنید.

شکل 31. ITS-in-a-box با یک تلفن نصب شده است
برش دیافراگم برای دوربین ها می توانید یک دیافراگم (برای تست یک گوشی) یا دو دیافراگم (برای تست دو گوشی) را برش دهید. دیافراگم دوربین های جلو و عقب Pixel و Pixel XL در شکل 32 نشان داده شده است. دوربین جلو دارای دیافراگم دایره ای است زیرا فلاش یا لیزر وجود ندارد، در حالی که دوربین عقب دارای دیافراگم مستطیلی است که به فلاش و لیزر اجازه می دهد بدون مسدود شدن کار کنند.

شکل 32. نمونه دیافراگم برای دوربین های جلو و عقب

شکل 33. ITS-in-a-box با دو گوشی نصب شده است
همچنین میتوانید دیافراگمها را از مقوا برش دهید و آن را با نشانگر، رنگ اسپری یا اکریلیک سیاه کنید، همانطور که در شکل 34 نشان داده شده است.

شکل 34. نمونه دیافراگم های مقوایی برای دوربین های جلو و عقب
چیزهایی که باید به آنها توجه کرد
موارد زیر نمونههایی از خطاهای رایج تولیدی هستند که میتوانند تستها را پوسته پوسته کنند.
پانل پشتی با سوراخ های تبلت. این باعث می شود که تست
find_circleبه دلیل دایره های اضافی ایجاد شده توسط سوراخ های پیچ با شکست مواجه شود.
شکل 35. پانل پشتی با سوراخ هایی که از آن سوراخ شده است
رولپلاک از دست رفته این امر باعث می شود که حفره های نور در حین حمل و نقل خارج شوند.

شکل 36. رولپلاک از بین رفته روی بافل نور
منبع تغذیه غیر فهرست UL. استفاده از منبع تغذیه فهرست شده UL مطابق با مشخصات ذکر شده است. این برای عملکرد ایمن روشنایی مهم است.

شکل 37. نمونه ای از منبع تغذیه فهرست شده UL
پیچ های لغزیدنی روی پایه تبلت یا گوشی که نمی توانند وزن تبلت یا گوشی را تحمل کنند. این معمولاً به دلیل رزوه های آسیب دیده ایجاد می شود و نشان می دهد که سوراخ باید دوباره رزوه شود.

شکل 38. سوراخ با نخ های آسیب دیده