宽视野 (WFoV) 盒装 ITS

Android 推出了盒装 ITS 修订版 2,这是相机图像测试套件 (ITS) 中的一种自动测试系统,适用于宽视野 (WFoV) 和常规视野 (RFoV) 相机系统。修订版 1 旨在测试视野小于 90 度 (RFoV) 的移动设备相机。

宽视野盒装 ITS(修订版 2)还可用于测试视野大于 90 度 (WFoV) 的相机,这样您就可以使用一个盒装 ITS 系统来测试具有不同视野的不同相机,但前提是相机可以在大约 20 厘米处聚焦。

ITS-in-a-box 系统由一个根据计算机辅助设计 (CAD) 图纸激光切割而成的塑料盒、一个内部照明系统、一台图表平板电脑和一部被测设备 (DUT) 组成。您可以购买盒装 ITS,也可以自行组装。

购买 WFoV 盒装 ITS

建议您通过以下任一合格的供应商购买 WFoV 盒装 ITS。

  • Byte Bridge Inc.
    美国:1502 Crocker Ave, Hayward, CA 94544-7037
    中国:上海市徐汇区中山西路 1600 号宏汇国际广场 A 座 22 层 06-08,邮编:200235
    www.bytebt.com
    androidpartner@bytebt.com
    美国:+1-510-373-8899
    中国:+86-400-8866-490

  • JFT CO LTD 捷富通科技有限公司(之前称为 MYWAY DESIGN)
    中国大陆:No. 40, Lane 22, Heai Road, Wujing Town, Minhang District, Shanghai, China
    中国台湾:4F., No. 163, Fu-Ying Road, XinZhuang District, New Taipei City 242, Taiwan
    www.jftcoltd.com
    service@jfttec.com or its.sales@jfttec.com
    中国大陆:+86-021-64909136
    中国台湾:886-2-29089060

视频教程

此视频教程介绍了如何安装 WFoV 盒装 ITS。

组装 WFoV 盒装 ITS

除了购买,您也可以自行组装 WFoV 盒装 ITS(修订版 2)。本部分将分步说明如何组装 WFoV 盒装 ITS(修订版 2),它可测试宽视野范围(大于 90 度)相机。

修订历史记录

下表介绍了相机 ITS WFoV 装置的修订历史记录,并添加了指向每个生产文件版本的下载链接。

日期 修订版本 下载生产文件 更新日志
2022 年 12 月 2.9 WFoV 修订版 2.9
  • 添加了支持平板电脑测试的装载机制。
  • 将手机托架修改为不对称。
  • 将光圈设计从空白泡沫板修改成了通用设计。
2019 年 10 月 2.8 不可用
  • 在生产文档中增加了孔设计的说明。
  • 在测试装置底板上加装了支脚,以提供更好的支撑。
  • 改进了 C 型夹设计,以改善固定销的贴合度。
  • 改进了前孔板设计,以便为手机托架提供更大的活动范围。
2018 年 10 月 2.7 不可用
  • 将 BOM (#16) 中的灯换成了通过 UL 认证的 LED 灯带,以便在制造工艺上实现更好的一致性。
  • 将 BOM 中的电源换成了与 #16 中相同的电源。
  • 将平板电脑托架加宽了 35 毫米,以匹配平板电脑的开口(机械图纸第 4 页)
  • 修改了前卡孔的间距,以便与卡槽的长度相匹配(机械图纸第 5 页)
  • 将前端圆孔的孔径减小了 20 毫米,以匹配 RFoV 盒装 ITS。
2018 年 8 月 2.6 不可用
  • 已在内部发布,以更正机械图纸。
2018 年 8 月 2.5 不可用
  • 将平板电脑托架简化至与手机托架类似。
  • 用喷砂磨光代替阳极化抛光,以降低成本。
  • 修正了 BOM 上 LED 灯的规格
2018 年 6 月 2.4 不可用
  • 从丙烯酸材料改为使用 ABS 材料,以减少运输损伤。
  • 用激光切割的 ABS 组件代替 3D 打印组件,以降低成本。
  • 将盒子手柄改为使用 ABS 料件,而不再纳入 BOM 中需单独购买。

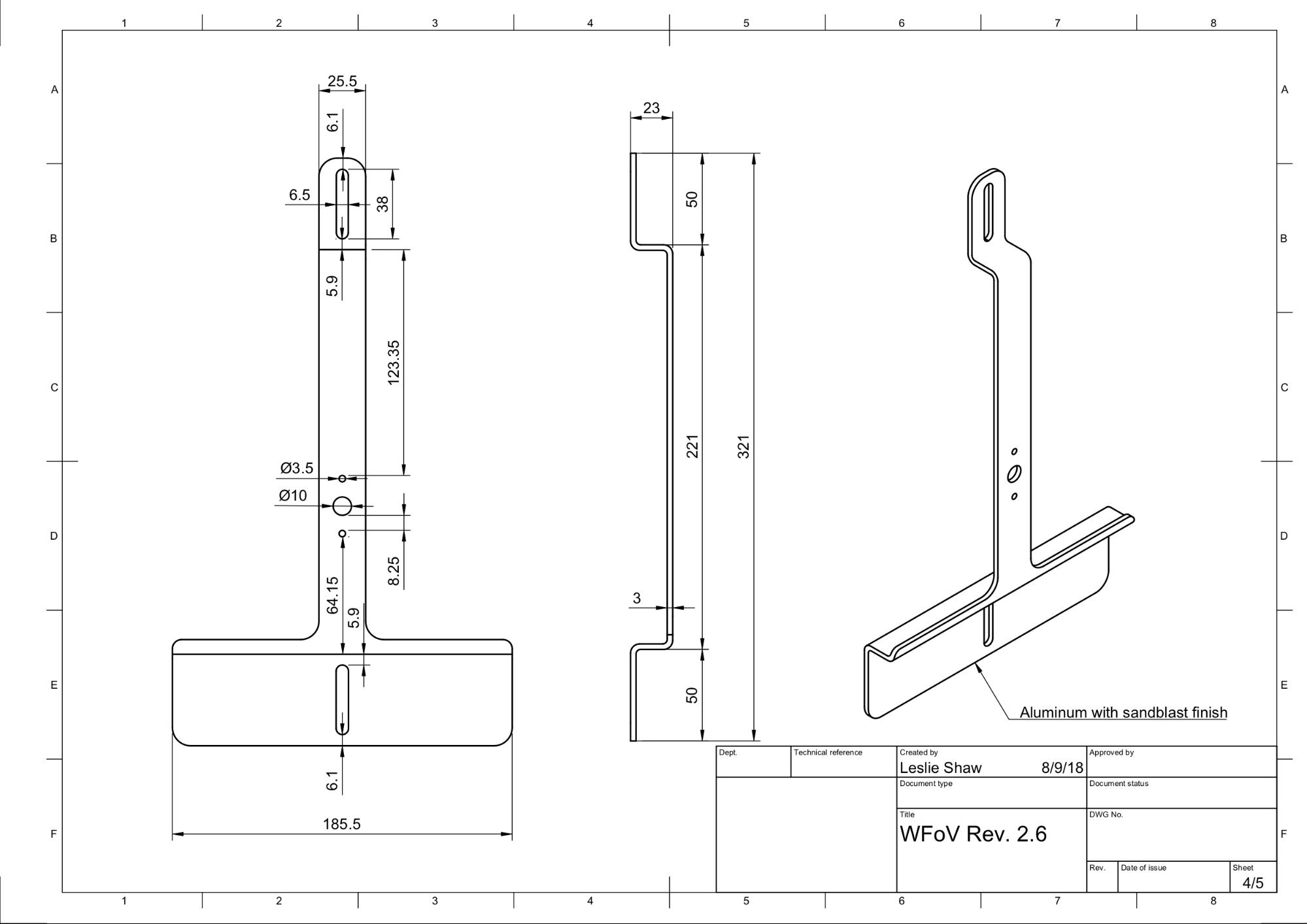
机械图纸

以下 WFoV 盒装 ITS 机械图纸展示了组装所需的材料。首先,请下载最新的 WFoV 盒装 ITS 的生产文件

WFoV 盒装 ITS 的 CAD 图纸

图 1. WFoV 盒装 ITS 的机械图纸

购买物料清单 (BOM) 中列出的硬件。切割塑料和乙烯基元件。

所需工具

准备好以下工具:

  • 十字头螺丝刀
  • 尖嘴钳
  • 钢丝钳
  • 剪刀
  • 喷壶
  • 美工刀

第 1 步:贴有色乙烯基膜

要贴有色乙烯基膜,请执行以下操作:

  1. 将有色乙烯基膜贴在丙烯腈-丁二烯-苯乙烯树脂 (ABS) 的光滑面上,并剪出必要的开口(如图 2 所示)。确保在盒子安装平板电脑的一面贴上带有大矩形开口的白色乙烯基膜,在盒子安装移动设备的一面贴上带有圆形开口的黑色乙烯基膜。

    在侧板上贴上灰色乙烯基膜(如图 2 所示),并在底板的四个角上粘贴支脚(如图 3 所示)。

    如需了解详情,请参阅 wikiHow

    在光滑面贴上了乙烯基膜的 ABS 组件

    图 2. 在光滑面(盒子内部)贴上了乙烯基膜的 ABS 组件

  2. 在底板的四个角上粘贴支脚,如图 3 所示。

    底板支脚

    图 3.在底板的四个角上粘贴了支脚

第 2 步:组装和安装灯轨

要组装和安装带 LED 灯条的照明框架,请执行以下操作:

  1. 查看照明框架结构的机械图纸。

    带 LED 灯条的照明框架结构

    图 4. 带 LED 灯条的照明框架结构

  2. 收集齐塑料挡光板、灯座、LED 灯条和束线带并放在一起。

    挡光板、灯座、LED 灯条和束线带

    图 5. 挡光板和灯座

  3. 将塑料挡光板卡入灯座(如图 6 所示),并使其紧密贴合。

    安装在灯座上的塑料挡光板

    图 6. 安装在灯座上的塑料挡光板

  4. 将灯座卡入侧板,如图 7 所示。完成后,灯光将射向盒子内部正面的几个角。

    卡入侧板的挡光板和灯座

    图 7. 卡入侧板的挡光板和灯座

  5. 组装侧板。(可选:打磨挡光板边缘,以更好地贴合。)

    组装好并用螺钉固定到位的侧板

    图 8. 组装好并用螺钉固定到一起的侧板

  6. 将销钉插入从侧板插槽处伸出的矩形卡舌上的小孔来固定挡光板,如图 9 所示。

    已将销钉插入 LED 灯安装卡舌

    图 9. 插入盒子外侧的 LED 灯安装卡舌中的销钉特写

  7. 在朝下的一面,用灯条绕挡光板两圈。用束线带固定住灯条,然后将两端扣在一起。(可选:除使用束线带之外,还可在 LED 灯条背面贴上胶带,以便更轻松地进行缠绕。)

    缠绕在挡光板周围的 LED 灯条

    图 10. 使用束线带缠绕在挡光板周围的 LED 灯条

    固定 LED 灯条的束线带

    图 11. 固定 LED 灯条的束线带

  8. 剪断束线带的末端,如图 12 和 13 所示。

    缠绕在挡光板周围的 LED 灯条伸出

    图 12. 绕挡光板两圈并从侧面出口伸出的 LED 灯条

    在朝上的一面看到的束线带

    图 13. 在朝上的一面看到的束线带(LED 灯条位于另一面)

第 3 步:组装平板电脑和手机托架

要组装平板电脑托架和手机托架,请执行以下操作:

  1. 查看平板电脑托架的机械图纸。

    平板电脑托架的机械图纸

    图 14. 平板电脑托架的机械图纸

  2. 收集齐图 15 所示的部件。

    平板电脑托架和手机托架部件

    图 15. 平板电脑托架、手机托架以及所需的螺钉、柱塞、乙烯基帽和螺母

  3. 将橡皮帽剪得足够短,使其不会妨碍柱塞工作(大致剪短一半),然后将其套在柱塞的末端。较短的乙烯基帽可确保柱塞装置能够缩回并锁定。

    套上了剪短的橡皮帽的柱塞

    图 16. 套上了剪短的橡皮帽的柱塞

  4. 用螺钉将柱塞固定在托架上。

    已安装柱塞的平板电脑托架和手机托架

    图 17. 已安装柱塞的平板电脑托架和手机托架

第 4 步:最终组装

请按以下步骤组装 WFoV ITS 盒:

  1. 收集齐前孔板,然后用 4-40 螺钉将带有方形开口的较小板固定到较大板的上方,如图 18 所示。

    从孔板和手机托架板看去

    图 18. 前孔板和手机托架板

    组装好的前孔板

    图 19. 使用 4-40 螺钉固定在一起的前孔板和手机托架板

  2. 用胶带将前板和后板与盒子粘合。

    侧板用螺钉固定在一起的 WFoV 盒

    图 20. 侧板用螺钉固定在一起且前板和后板用胶带粘合的 WFoV 盒

  3. 用电钻根据现有的孔洞钻出定位孔。确保定位孔足够穿过 4-40 螺钉,从而确保在插入螺钉时不会使 ABS 塑料破裂。

    定位孔

    图 21. 钻出能够插入 4-40 螺钉的定位孔

  4. 使用 4-40 自攻螺钉将所有面板组装在一起。

    用于组装面板的 4-40 螺钉

    图 22. 用于组装面板的 4-40 螺钉

  5. 收集齐手柄配件,如图 23 所示。

    手柄配件

    图 23. 手柄配件

  6. 组装手柄,如图 24 所示。

    组装好的手柄

    图 24. 组装好的手柄

  7. 检查电源适配器是否为 12V、5A,并且具有 UL 认证证书。如果电压低于 12V,将无法正常运行。如果电流低于 5A,则可能会影响灯的亮度。

    电源适配器(12V,5A)

    图 25. 具有 UL 认证证书的电源适配器(12V,5A)

  8. 使用数字照度计测试 LED 灯的照度,以确保它们处于适当水平。

    将照度计放置在平板电脑一侧,然后将其调到 2000 勒克斯,以测量光照度。照度应在 100 到 130 勒克斯之间。对于这些测试而言,如果照度值明显低于此范围,就说明太暗了,可能会导致测试失败。

    本示例中使用的是 Contempo Views 的 YF-1065 照度计。

    Contempo Views 的 YF-1065

    图 26. Contempo Views 的 YF-1065

    照度计

    图 27.用照度计测量安装平板电脑托架一侧的光照强度

  9. 根据测得的照度值,执行相应的步骤:

    • 如果光照强度处于正确的水平,需要用螺钉将前板和后板固定到位。
    • 如果光照强度处于不正确的水平,需要检查 LED 和电源配件号是否正确。
  10. 用螺钉和螺母将手机托架安装到孔板上,将平板电脑托架安装到另一侧。

    平板电脑托架

    图 28.平板电脑托架的特写

    组装好的 WFoV 盒

    图 29.组装好的 WFoV 盒:后视图(左)和前视图(右)

  11. 在10x10 厘米的硬质泡沫板上开孔以适配 DUT 的摄像头开孔。

    硬质泡沫板开孔

    图 30. 有硬质泡沫板开孔的盒装 ITS

  12. 安装手机,使摄像头与开孔对准。通过平板电脑开口检查对准情况。

    安装了一部手机的盒子

    图 31. 安装了一部手机的盒装 ITS

  13. 为摄像头开孔。您可以开一个孔(用于测试一部手机)或两个孔(用于测试两部手机)。Pixel 和 Pixel XL 前置摄像头和后置摄像头的开孔如图 32 所示。由于没有闪光灯或激光器,前置摄像头的开孔是圆形孔;而为了不挡住闪光灯和激光器,后置摄像头的开孔为矩形孔。

    前置摄像头和后置摄像头的开孔

    图 32. 前置摄像头和后置摄像头的开孔示例

    图片

    图 33. 安装了两部手机的盒装 ITS

    此外,您还可以在纸板上开孔,然后使用记号笔、喷漆或颜料将其涂黑,如图 34 所示。

    图片

    图 34. 前置摄像头和后置摄像头的纸板开孔示例

注意事项

下面列出了一些常见的组装错误,这些错误会导致测试易出故障。

  • 安装平板电脑的后板上有刺穿孔。这会导致 find_circle 测试失败,因为螺钉孔会产生额外的圆圈。

    有孔的后板

    图 35. 有刺穿孔的后板

  • 缺少固定销。这会导致挡光板在运输过程中松脱。

    缺少固定销

    图 36.挡光板上缺少固定销

  • 非 UL 认证电源。使用 UL 认证电源符合标示的规范。这对于安全操作照明系统非常重要。

    UL 认证电源

    图 37. UL 认证电源示例

  • 平板电脑托架或手机托架上的螺钉松脱,导致无法承受平板电脑或手机的重量。这通常是由于螺纹损坏造成的,表明该孔需要重新钻孔。

    螺纹损坏的孔

    图 38. 螺纹损坏的孔