Obtén una caja de campo visual regular (RFoV)

El ITS integrado de campo visual regular (RFoV) (revisión 1a) consta de una caja de plástico cortada con láser a partir de dibujos de diseño asistido por computadora (CAD), una tablet con gráficos y un dispositivo en prueba (DUT). El ITS integrado de RFoV está diseñado para probar dispositivos con un FoV inferior a 90 grados (RFoV). Puedes comprar un ITS-in-a-box o crear tu propio sistema.

La versión rev1b del ITS-in-a-box de RFOV agrega compatibilidad con componentes modulares y es compatible con el soporte de extensión de teleobjetivo.

Rev1b

Figura 1: Caja ITS de campo visual regular (RFoV) Rev1b

Historial de revisión

En la siguiente tabla, se describe el historial de revisiones del cuadro de campo de visión normal y se incluyen vínculos de descarga a cada versión de los archivos de producción.

Fecha Revisión Descarga de archivos de producción Registro de cambios
Septiembre de 2024 1b Archivos de producción de la rev. 1b
  • Se adoptó un sistema modular (se agregó un mecanismo de montaje para las extensiones modulares).
Mayo de 2019 1a Archivos de producción de la rev. 1a
  • Se cambió el material de Delrin a ABS.
  • Se modificó el diseño del soporte de la luz para que sea más flexible y pueda sostener barras LED de diferentes tamaños.
  • Se unificaron los métodos de construcción.
  • Se simplificó el diseño del soporte para tabletas y se hizo más resistente.
  • Se aumentó la profundidad del soporte para teléfonos para que pueda sostener teléfonos más gruesos.
  • Se aumentaron las opciones de montaje en el panel frontal para admitir un soporte para perfiles de teléfonos plegables y resistentes.

Compra un ITS-in-a-box de RFoV

Te recomendamos que compres un ITS-in-a-box de RFoV (revisión 1a) a uno de los siguientes proveedores calificados.

  • Byte Bridge Inc.
    EE.UU.: 1502 Crocker Ave, Hayward, CA 94544-7037
    China: 22F #06-08, Hongwell International Plaza Tower A, 1600 West Zhongshan Road, Xuhui, Shanghái, 200235
    www.bytebt.com
    androidpartner@bytebt.com
    EE.UU.: +1-510-373-8899
    China: +86-400-8866-490

  • JFT CO LTD 捷富通科技有限公司 (anteriormente conocida como MYWAY DESIGN)
    Núm. 40, Lane 22, Heai Road, Wujing Town, Minhang District, Shanghái, China
    Piso 4, Núm. 163, Fu-Ying Road, distrito de XinZhuang, ciudad de Nueva Taipéi 242, Taiwán
    www.jftcoltd.com
    service@jfttec.com o its.sales@jfttec.com
    China:+86-021-64909136
    Taiwán: 886-2-29089060

Video instructivo

Este es un instructivo en video sobre cómo configurar el ITS en una caja del RFoV.

Cómo armar un ITS-in-a-box de RFoV

En lugar de comprar un ITS en una caja con RFoV, puedes construir el tuyo. En esta sección, se proporcionan instrucciones detalladas para el ensamblaje.

Planos mecánicos

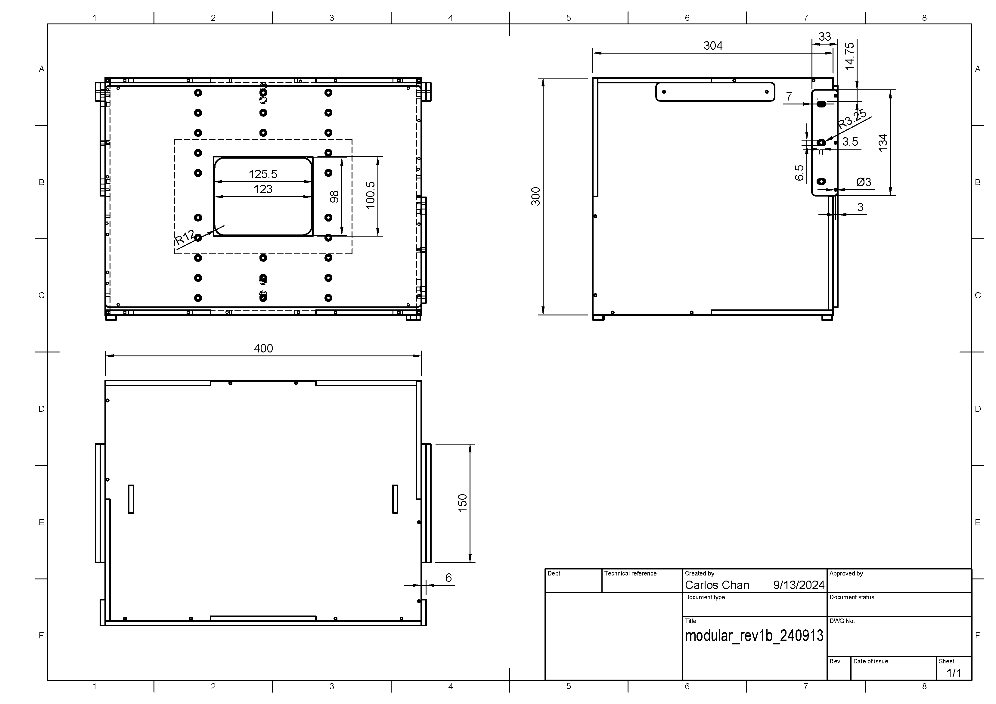
El ITS en una caja consta de un DUT, una tablet con gráficos, un sistema de iluminación interno y una caja de plástico cortada con láser a partir de dibujos CAD (se muestra en la Figura 1).

Para comenzar, descarga el archivo de producción más reciente.

Dibujo mecánico de ITS-in-a-box

Figura 2: Dibujo mecánico del ITS-in-a-box

Compra el hardware de la lista de materiales (BOM). Corta las piezas de plástico y vinilo.

Herramientas requeridas

Ten a mano las siguientes herramientas:

  • Destornillador de cabeza Torx
  • Taladro eléctrico
  • Pegamento para ABS
  • Pinzas de punta
  • Cúter X-ACTO
  • Cortadores de cables o tijeras (opcional)

Paso 1: Aplica vinilo y pega los soportes

Aplica vinilo de color en el lado liso del acrilonitrilo butadieno estireno (ABS) y corta las aberturas necesarias, como se muestra en las figuras 3 y 4. Aplica el vinilo blanco con la abertura rectangular grande en el lado de la caja que corresponde a la tablet y el vinilo negro con la abertura circular en el lado de la caja que corresponde al dispositivo móvil. Aplica vinilo gris en los paneles laterales, como se muestra en la Figura 4, y pega los soportes en las cuatro esquinas del panel inferior, como se muestra en la Figura 5. Para obtener más información, consulta wikiHow.

Vinilo en los paneles frontal y posterior

Figura 3: Vinilo negro en el panel frontal (izquierda) y vinilo blanco en el panel posterior (derecha)

Paneles laterales

Figura 4: Vinilo gris en los paneles laterales

Panel inferior

Figura 5: Patas en las cuatro esquinas del panel inferior

Paso 2: Iluminación

Para ensamblar el componente de iluminación de ITS-in-a-box, haz lo siguiente:

  1. Reúne el hardware de iluminación como se muestra en la Figura 6.

    Piezas de la estructura de la luz

    Figura 6: Piezas de la estructura de la luz

    El hardware incluye las barras de luces LED, los deflectores de luz de plástico, los soportes de luz de plástico, los clips de luz de plástico o metal incluidos en el kit de iluminación LED y cuatro tornillos 6-32 con tuercas de cabeza de bellota.

  2. Atornilla los clips de las luces a los deflectores de plástico, como se muestra en la Figura 7. Asegura los clips con las tuercas de sombrerete del otro lado de los deflectores.

    Deflectores de luz

    Figura 7: Deflectores de plástico con clips de luz adjuntos

  3. Para ensamblar las luces, fija los deflectores de plástico en la parte posterior de las barras de luces LED con los clips de luz.

    Barras de luz

    Figura 8: Barras de iluminación con las luces hacia abajo y tornillos que atraviesan los clips

Cuando el componente de iluminación esté ensamblado, las barras de luces LED deben apuntar hacia abajo y los deflectores de plástico deben cubrir la superficie brillante y reflectante de la parte posterior de la barra de luces LED.

Paso 3: Soportes para teléfonos

Para ensamblar los soportes del teléfono, sigue estos pasos:

  1. Reúne los elementos necesarios, como se muestra en la Figura 9.

    Elementos de soporte para teléfonos

    Figura 9: Elementos de soporte para teléfonos

    El hardware incluye dos soportes metálicos para teléfonos, dos émbolos, dos puntas de goma, cuatro tornillos de cabeza cilíndrica 8-32 y las tuercas correspondientes.

  2. Corta los extremos de goma lo suficiente como para que no interfieran en el funcionamiento del émbolo (aproximadamente a la mitad) y, luego, colócalos para cubrir los extremos de los émbolos.

    Desatascadores

    Figura 10: Desatascadores con puntas de goma

  3. Ensambla los soportes para teléfonos con tornillos de cabeza cilíndrica para fijar los mecanismos de émbolo a los soportes de metal. Asegúrate de que los tornillos estén ajustados con las tuercas correspondientes.

    Soportes para teléfonos ensamblados

    Figura 11: Soportes para teléfonos ensamblados

Paso 4: Placa de apertura

Para ensamblar la placa de apertura frontal, haz lo siguiente:

  1. Reúne los elementos de hardware de la placa de apertura frontal que se muestran en la Figura 12.

    Piezas de la placa de apertura frontal

    Figura 12: Piezas de ensamblado de la placa de apertura frontal

    El hardware incluye los soportes para teléfonos ensamblados, el panel de soporte para teléfonos, cuatro tornillos de nailon cortos y cuatro tuercas de nailon (necesarias para evitar que los tornillos sobresalgan por la parte posterior de la placa de plástico).

  2. Con los tornillos y las tuercas, fija los soportes para teléfonos ensamblados al panel de soporte para teléfonos. Asegúrate de que los soportes para el teléfono estén en la orientación correcta, como se muestra en la Figura 13.

    Placa de apertura frontal ensamblada

    Figura 13: Placa de apertura frontal ensamblada

Paso 5: Soporte para la tablet

Para ensamblar el soporte de la mesa, sigue estos pasos:

  1. Reúne los elementos de hardware de la estructura de soporte de la tablet que se muestran en la Figura 14.

    Piezas de soporte para tablet

    Figura 14: Piezas de ensamblaje del espacio de soporte para tablet

    El hardware incluye el panel posterior, el soporte para la tablet, un vástago, una punta de goma, dos tornillos de cabeza cilíndrica 8-32, dos tornillos cortos de nailon y las tuercas correspondientes.

  2. Ensambla el soporte para la tablet con tornillos de cabeza cilíndrica para fijar los mecanismos de émbolo al soporte de metal. Asegúrate de que los tornillos estén ajustados con las tuercas correspondientes.

  3. Con los tornillos y las tuercas, fija el soporte para tablet ensamblado al panel posterior. Asegúrate de que los soportes para el teléfono estén en la orientación correcta, como se muestra en la Figura 15.

    Soporte para tablet ensamblado

    Figura 15: Soporte para tablet ensamblado

Paso 6: Instala las luces

Para instalar las luces, sigue estos pasos:

  1. Instala los deflectores de luz en los paneles superior e inferior, como se muestra en la Figura 16.

    Deflectores de luz instalados

    Figura 16: Deflectores de luz instalados en los paneles superior e inferior

  2. Asegura los deflectores de luz presionando el vástago en el orificio pequeño de la lengüeta rectangular que se extiende a través de la ranura en el panel superior e inferior, como se muestra en la Figura 17.

    Pin insertado

    Figura 17: Acercamiento del pin insertado en la lengüeta de soporte de la luz LED en la parte exterior de la caja

    Para asegurar los pines, presiónalos suavemente hasta que sientas algo de presión en el plástico a medida que se aseguran en su lugar.

    Alicates

    Figura 18: Alicates que se usan para instalar el vástago

  3. Ensambla los paneles frontales y laterales en la orientación correcta, como se muestra en la Figura 19, y únelos con cinta adhesiva desde el exterior.

    Orientación de la colocación de la luz

    Figura 19: Orientación de la colocación de la luz

  4. Conecta el cable de alimentación a la barra de luces de alimentación, como se muestra en la Figura 20.

    Cable de alimentación de la luz

    Figura 20: Cable de alimentación de la luz

    Pasa el cable de alimentación por el orificio del panel izquierdo. El cable de alimentación tiene conectores diferentes en cada extremo: el conector más angosto se conecta a la barra de luces LED y el conector más grande se conecta al adaptador de alimentación.

    Cable de alimentación

    Figura 21: Cable de alimentación que sale del equipo de prueba por el lado izquierdo

  5. Conecta los cables de las luces superiores a los de las luces inferiores y fija el cable en el panel izquierdo.

    Cable de luz

    Figura 22: Cable de la luz anclado en el panel izquierdo

Paso 7: Ensambla los paneles laterales, el soporte para la tablet y las manijas

Para ensamblar los paneles laterales, el soporte para la tablet y las manijas del ITS integrado en la cámara con tornillos, haz lo siguiente:

  1. Une todos los lados de los paneles y pégalos con cinta adhesiva como se muestra en la Figura 23.

    Caja sellada con cinta para ensamblar

    Figura 23: ITS-in-a-box unido con cinta adhesiva para el ensamblaje

  2. Usa un taladro eléctrico para crear orificios guía según los orificios existentes. Asegúrate de que los orificios guía sean lo suficientemente grandes para los tornillos 4-40, de modo que el plástico ABS no se agriete cuando insertes los tornillos.

    Perforación de orificios

    Figura 24: Cómo perforar orificios de guía para tornillos 4-40

  3. Atornilla todos los paneles con tornillos autorroscantes 4-40.

    Taladro eléctrico

    Figura 25: Tornillos 4-40 para ensamblar paneles

  4. Reúne las partes de la manija que se muestran en la Figura 26.

    Manijas

    Figura 26: Manijas

    El hardware incluye cuatro piezas rectangulares de plástico y cuatro tornillos 6-32.

  5. Ensambla las manijas como se muestra en la figura 27.

    Manija ensamblada

    Figura 27: Manija ensamblada

Paso 8: Ensamblaje y configuración finales

Para realizar el ensamblaje final del ITS en una caja, haz lo siguiente:

  1. Fija el soporte para tablet al panel posterior y ajusta la altura según el tamaño de la tablet.

    Soporte para tablet en la parte posterior de la caja

    Figura 28: Tablet en el soporte para tablet en la parte posterior de la caja

  2. Fija el panel de apertura cuadrada sin soportes para el teléfono a la parte frontal de la caja con tornillos 4-40, como se muestra en la figura 29.

    Panel frontal ensamblado

    Figura 29: Panel frontal del teléfono ensamblado

  3. Inserta la abertura de la placa de cartón de 10 x 10 cm para que se ajuste a la abertura de la cámara del DUT.

    Apertura de la placa de Gator

    Figura 30: ITS-in-a-box con apertura de placa de Gator instalada

  4. Instala el teléfono alineando la cámara con la abertura del objetivo. Verifica la alineación a través de la abertura de la tablet.

    Caja con un teléfono

    Figura 31: ITS-in-a-box con un teléfono instalado

  5. Aberturas de corte para las cámaras Puedes cortar una sola abertura (para probar un solo teléfono) o dos (para probar dos teléfonos). En la figura 31, se muestran las aperturas de las cámaras frontal y posterior del Pixel y el Pixel XL. La cámara frontal tiene una apertura circular porque no tiene flash ni láser, mientras que la cámara posterior tiene una apertura rectangular que permite que el flash y el láser funcionen sin obstrucciones.

    Aperturas de muestra

    Figura 32: Ejemplos de aperturas para las cámaras frontal y posterior

    Caja con dos teléfonos

    También puedes cortar aberturas en cartón y pintarlas de negro con marcadores, pintura en aerosol o acrílico, como se muestra en la Figura 33.

    Figura 33: Aperturas de cartón de muestra para las cámaras frontal y posterior

    Apertura de cartón de muestra

  6. Con un luxómetro digital, prueba los lux de las luces LED. En este ejemplo, se usa el YF-1065 de Contempo View.

    YF-1065 de Contempo Views

    Figura 34: YF-1065 de Contempo Views

  7. Coloca el medidor de luz en el lado de la tablet y gíralo hasta 2,000 lux para medir la luz. El nivel de lux debe ser de entre 100 y 300 lux. Cualquier valor significativamente inferior es demasiado tenue para la prueba y puede provocar errores.

    Luxómetro

    Figura 35: Medidor de luz que mide la luz desde atrás con soporte para tablet

  8. Sigue el paso adecuado según el valor de lux medido:

    • Si la luz está al nivel correcto, atornilla las placas frontal y posterior.
    • Si la luz no tiene el nivel correcto, verifica que el número de pieza de la fuente de alimentación y el LED sean correctos.

Aspectos que se deben tener en cuenta

A continuación, se muestran ejemplos de errores de fabricación comunes que pueden hacer que las pruebas sean inestables.

  • Panel posterior con orificios para la tablet. Esto hace que la prueba find_circle falle debido a los círculos adicionales creados por los orificios para tornillos.

    Panel posterior con orificios

    Figura 36: Panel posterior con orificios

  • Faltan las clavijas. Esto hace que los deflectores de luz se salgan durante el envío.

    Falta la clavija

    Figura 37: Falta una clavija en el deflector de luz

  • Fuente de alimentación que no está en la lista de UL. Usar una fuente de alimentación con certificación UL garantiza que no se rompa.

    Fuente de alimentación con certificación UL

    Figura 38: Ejemplo de una fuente de alimentación con certificación UL