Normal görüş alanı (RFoV) kutusu edinme

Normal görüş alanı (RFoV) ITS-in-a-box (revizyon 1a), bilgisayar destekli tasarım (CAD) çizimlerinden lazerle kesilmiş bir plastik kutu, bir grafik tablet ve test edilen bir cihazdan (DUT) oluşur. RFoV ITS-in-a-box, 90 dereceden daha düşük bir FoV'ye (RFoV) sahip cihazları test etmek için tasarlanmıştır. ITS-in-a-box satın alabilir veya kendi ITS'nizi oluşturabilirsiniz.

RFOV ITS-in-a-box'ın rev1b sürümünde modüler bileşenler için destek eklenmiş olup tele uzatma düzeneği ile uyumludur.

Rev1b

1. şekil. Normal görüş alanı (RFoV) ITS kutusu Rev1b

Düzeltme geçmişi

Aşağıdaki tabloda, normal görüş alanı kutusunun düzeltme geçmişi açıklanmakta ve üretim dosyalarının her sürümüne yönelik indirme bağlantıları yer almaktadır.

Tarih Düzeltme Üretim dosyası indirme Değişiklik günlüğü
Eylül 2024 1b Rev. 1b üretim dosyaları
  • Modüler sistem kullanıma sunuldu (modüler uzantılar için montaj mekanizması ekler).
Mayıs 2019 1a Rev. 1a üretim dosyaları
  • Malzeme, Delrin'den ABS'ye değiştirildi.
  • Işık tutucu tasarımı, daha esnek olacak ve farklı LED çubuğu boyutlarını destekleyecek şekilde değiştirildi.
  • İnşaat yöntemlerini birleştirdi.
  • Tablet montajı tasarımını basitleştirdik ve daha sağlam hale getirdik.
  • Daha kalın telefonları tutabilmek için telefon montajının derinliği artırıldı.
  • Katlanabilir ve dayanıklı telefon profilleri için montaj yeri sağlamak amacıyla ön paneldeki montaj seçenekleri artırıldı.

RFoV ITS-in-a-box satın alma

Aşağıdaki nitelikli satıcılardan birinden RFoV ITS-in-a-box (revizyon 1a) satın almanızı öneririz.

  • Byte Bridge Inc.
    ABD: 1502 Crocker Ave, Hayward, CA 94544-7037
    Çin: 22F #06-08, Hongwell International Plaza Tower A, 1600 West Zhongshan Road, Xuhui, Şanghay, 200235
    www.bytebt.com
    androidpartner@bytebt.com
    ABD: +1-510-373-8899
    Çin: +86-400-8866-490

  • JFT CO LTD 捷富通科技有限公司 (eski adıyla MYWAY DESIGN)
    No. 40, Lane 22, Heai Road, Wujing Town, Minhang District, Şanghay, Çin
    4F., No. 163, Fu-Ying Road, XinZhuang District, New Taipei City 242, Tayvan
    www.jftcoltd.com
    service@jfttec.com veya its.sales@jfttec.com
    Çin:+86-021-64909136
    Tayvan: 886-2-29089060

Eğitim videosu

Bu, RFoV ITS-in-a-box'ı nasıl kuracağınızla ilgili bir video eğitimidir.

RFoV ITS-in-a-box oluşturma

RFoV ITS-in-a-box satın almak yerine kendi cihazınızı oluşturabilirsiniz. Bu bölümde, montajla ilgili ayrıntılı talimatlar verilmektedir.

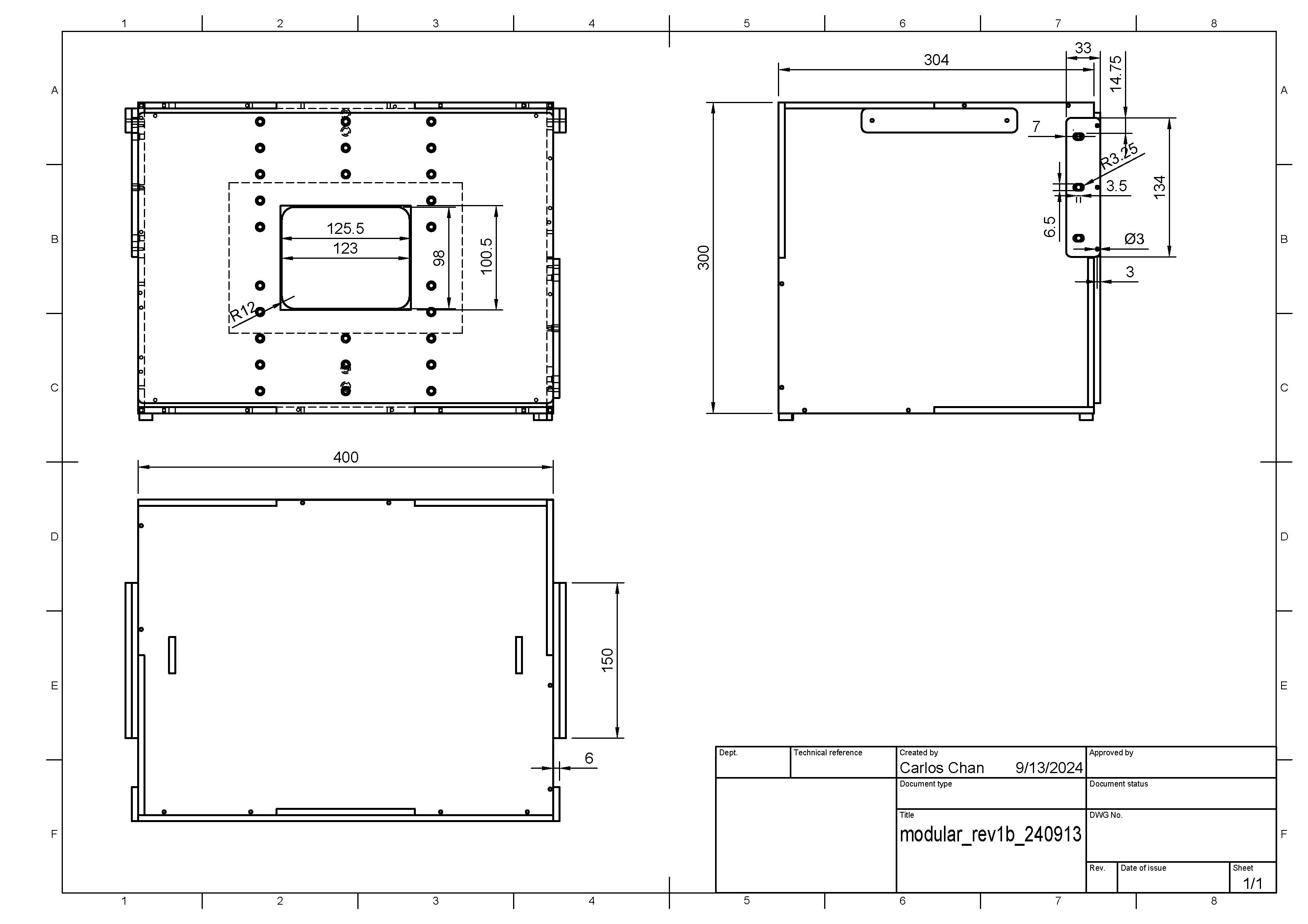
Mekanik çizimler

ITS-in-a-box; bir DUT, bir grafik tableti, bir dahili aydınlatma sistemi ve CAD çizimlerinden lazerle kesilmiş bir plastik kutudan oluşur (Şekil 1'de gösterilmiştir).

Başlamak için en son üretim dosyasını indirin.

ITS-in-a-box mekanik çizimi

Şekil 2. ITS-in-a-box'ın mekanik çizimi

Donanımı malzeme listesinden (BOM) satın alın. Plastik ve vinil parçaları kesin.

Gerekli araçlar

Aşağıdaki araçlara sahip olmanız gerekir:

  • Torx başlı tornavida
  • Elektrikli matkap
  • ABS yapıştırıcı
  • Kargaburnu pense
  • X-ACTO bıçağı
  • Kablo kesici veya makas (isteğe bağlı)

1. adım: Vinil uygulayın ve ayakları yapıştırın

Akrilik nitril bütadien stirenin (ABS) pürüzsüz tarafına renkli vinil uygulayın ve Şekil 3 ile 4'te gösterildiği gibi gerekli açıklıkları kesin. Kutunun tablet tarafına büyük dikdörtgen açıklıklı beyaz vinili, kutunun mobil cihaz tarafına ise dairesel açıklıklı siyah vinili uygulayın. Şekil 4'te gösterildiği gibi yan panellere gri vinil uygulayın ve Şekil 5'te gösterildiği gibi ayakları alt panelin dört köşesine yapıştırın. Daha fazla bilgi için wikiHow'a bakın.

Ön ve arka panellerde vinil

3.Şekil Ön panelde (sol) siyah vinil, arka panelde (sağ) beyaz vinil

Yan paneller

Şekil 4. Yan panellerde gri vinil

Alt panel

5.şekil Alt panelin dört köşesindeki ayaklar

2. adım: Işıklandırma

ITS-in-a-box aydınlatma bileşenini monte etmek için:

  1. Şekil 6'da gösterildiği gibi aydınlatma donanımını toplayın.

    Işık montajı parçaları

    6.şekil Işık montajı parçaları

    Donanım; LED ışık çubukları, plastik ışık bölmeleri, plastik ışık montajları, LED aydınlatma kitinde bulunan plastik veya metal ışık klipsleri ve dört adet 6-32 vida ile acorn başlı somunları içerir.

  2. Şekil 7'de gösterildiği gibi ışık klipslerini plastik bölmelere vidalayın. Klipleri, bölmelerin diğer tarafındaki acorn somunlarını kullanarak sabitleyin.

    Işık bölmeleri

    Şekil 7. Işık klipsleri takılı plastik bölmeler

  3. Işıkları monte etmek için plastik bölmeleri ışık klipslerini kullanarak LED ışık çubuklarının arkasına takın.

    Paralel ışınlar

    Şekil 8. Işıkları aşağıya bakan ve vidaları klipslerden geçirilmiş ışık çubukları

Aydınlatma bileşeni monte edildiğinde LED ışık çubukları aşağıyı göstermeli ve plastik bölmeler, LED ışık çubuğunun arkasındaki parlak, yansıtıcı yüzeyi kapatmalıdır.

3. adım: Telefon tutacakları

Telefon montaj parçalarını birleştirmek için:

  1. Şekil 9'da gösterildiği gibi gerekli öğeleri toplayın.

    Telefon yuvası öğeleri

    Şekil 9. Telefon yuvası öğeleri

    Donanım; iki metal telefon montajı, iki vantuz, iki kauçuk uç, dört adet 8-32 başlı vida ve ilgili somunları içerir.

  2. Kauçuk uçları, pistonun çalışmasını engellemeyecek kadar kısa kesin (yaklaşık olarak yarıya kadar) ve ardından kauçuk uçları, pistonların uçlarını kapatacak şekilde uygulayın.

    Dalıcı Pistonlar

    10.şekil Kauçuk uçlu tıkaçlar

  3. Vantuz mekanizmalarını metal montaj parçalarına takmak için yuvarlak başlı vidaları kullanarak telefon montaj parçalarını birleştirin. Vidaların ilgili somunlarla sıkıldığından emin olun.

    Montajı yapılmış telefon yuvaları

    11.Şekil Montajı yapılmış telefon yuvaları

4. adım: Diyafram plakası

Ön açıklık plakasını monte etmek için:

  1. Şekil 12'de gösterilen ön açıklık plakası donanımını toplayın.

    Ön açıklık plakası parçaları

    Şekil 12. Ön açıklık plakası montaj parçaları

    Donanım; monte edilmiş telefon tutacaklarını, telefon tutacağı panelini, dört kısa naylon vidayı ve dört naylon somunu (vidaların plastik plakanın arkasından çıkmasını önlemek için gereklidir) içerir.

  2. Vidaları ve somunları kullanarak monte edilmiş telefon tutacaklarını telefon tutacağı paneline sabitleyin. Telefon montajlarının Şekil 13'te gösterildiği gibi doğru yönde olduğundan emin olun.

    Monte edilmiş ön açıklık plakası

    Şekil 13. Monte edilmiş ön açıklık plakası

5. adım: Tablet montajı

Masa montajını birleştirmek için:

  1. Şekil 14'te gösterilen tablet montaj düzeneği donanımını toplayın.

    Tablet montaj parçaları

    Şekil 14. Tablet montajı için alan montajı parçaları

    Donanım; arka panel, tablet montajı, bir piston, bir lastik uç, iki 8-32 başlı vida, iki kısa naylon vida ve ilgili somunları içerir.

  2. Düğme mekanizmalarını metal montaja takmak için yuvarlak başlı vidaları kullanarak tablet montajını birleştirin. Vidaların ilgili somunlarla sıkıldığından emin olun.

  3. Vidaları ve somunları kullanarak monte edilmiş tablet montaj düzeneğini arka panele sabitleyin. Telefon montaj parçalarının, Şekil 15'te gösterildiği gibi doğru yönde olduğundan emin olun.

    Monte edilmiş tablet tutucu

    15.şekil Monte edilmiş tablet tutucu

6. adım: Işıkları takın

Işıkları takmak için:

  1. Işık bölmelerini, Şekil 16'da gösterildiği gibi üst ve alt panellere takın.

    Işık bölmeleri takılı

    16. şekil. Üst ve alt panellere takılan ışık bölmeleri

  2. Pimi, üst ve alt paneldeki yuvadan geçen dikdörtgen tırnaktaki küçük deliğe sıkıştırarak ışık bölmelerini sabitleyin (Şekil 17'deki gibi).

    Raptiye eklendi

    17. şekil. Kutunun dışındaki LED montaj tırnağına yerleştirilmiş pimin yakından görünümü

    Pimleri sabitlemek için pimleri hafifçe sıkın. Pimler yerine sabitlenirken plastikte biraz baskı hissedersiniz.

    Pense

    18.şekil Pimi takmak için kullanılan pense

  3. Ön ve yan panelleri Şekil 19'da gösterildiği gibi doğru yönde monte edin ve dışarıdan bantlayın.

    Işık yerleştirme yönü

    Şekil 19. Işık yerleştirme yönü

  4. Güç kablosunu, Şekil 20'de gösterildiği gibi güç ışık çubuğuna takın.

    Aydınlatma güç kablosu

    Şekil 20. Aydınlatma güç kablosu

    Güç kablosunu sol paneldeki delikten geçirin. Güç kablosunun her iki ucunda farklı konnektörler bulunur: Daha dar olan konnektör LED ışık çubuğuna, daha geniş olan konnektör ise güç adaptörüne bağlanır.

    Güç kablosu

    Şekil 21. Test düzeneğinden sol tarafta çıkan güç kablosu

  5. Üst ışıkları alt ışıklara bağlayın ve kabloyu sol panele sabitleyin.

    Işık kablosu

    22. şekil. Sol panele sabitlenmiş ışık kablosu

7. adım: Yan panelleri, tablet montajını ve kolları birleştirin

ITS-in-a-box yan panellerini, tablet montajını ve kolları vidalarla monte etmek için:

  1. Panellerin tüm kenarlarını birleştirin ve Şekil 23'te gösterildiği gibi bantlayın.

    Montaj için bantlanmış kutu

    23.şekil Montaj için bantlanmış ITS-in-a-box

  2. Mevcut deliklere göre kılavuz delikler oluşturmak için matkap kullanın. ABS plastiğin vidaları takarken çatlamaması için kılavuz deliklerin 4-40 vidalar için yeterince büyük olduğundan emin olun.

    Delik açma

    Şekil 24. 4-40 vidalar için kılavuz delik açma

  3. 4-40 kendinden kılavuzlu vidalar kullanarak tüm panelleri birbirine vidalayın.

    Elektrikli matkap

    25. şekil. Panelleri monte etmek için 4-40 vidalar

  4. Şekil 26'da gösterilen kol parçalarını toplayın.

    Kullanım parçaları

    26.şekil Kullanım parçaları

    Donanım, dört dikdörtgen plastik parça ve dört adet 6-32 vida içerir.

  5. Kolları Şekil 27'de gösterildiği gibi monte edin.

    Birleştirilmiş tutma yeri

    27. şekil. Birleştirilmiş tutma yeri

8. adım: Son montaj ve kurulum

ITS-in-a-box'ın son montajını yapmak için:

  1. Tablet montajını arka panele takın ve yüksekliği tablet boyutuna göre ayarlayın.

    Kutunun arkasındaki tablet montajı

    Şekil 28. Kutunun arkasındaki tablet yuvasında tablet

  2. Şekil 29'da gösterildiği gibi, kare açıklık panelini telefon montajı olmadan 4-40 vidalarla kutunun önüne takın.

    Birleştirilmiş ön panel

    Şekil 29. Birleştirilmiş ön telefon paneli

  3. DUT'un kamera açıklığına uyacak şekilde 10x10 cm'lik timsah kartonu açıklığını yerleştirin.

    Gator board açıklığı

    30. şekil. Gator board açıklığı takılı ITS-in-a-box

  4. Kamerayı diyafram açıklığıyla hizalayarak telefonu takın. Hizalamayı tablet açıklığından kontrol edin.

    Bir telefonun bulunduğu kutu

    Şekil 31. Bir telefonun yüklü olduğu ITS-in-a-box

  5. Kameralar için açıklıklar kesin. Tek bir açıklık (tek bir telefonu test etmek için) veya iki açıklık (iki telefonu test etmek için) kesebilirsiniz. Pixel ve Pixel XL ön ve arka kameralarının diyafram açıklıkları Şekil 31'de gösterilmektedir. Ön kamerada flaş veya lazer olmadığı için dairesel bir diyafram açıklığı bulunur. Arka kamerada ise flaş ve lazerin engellenmeden çalışmasına olanak tanıyan dikdörtgen bir diyafram açıklığı vardır.

    Örnek açıklıklar

    32. şekil. Hem ön hem de arka kameralar için örnek diyafram açıklıkları

    İki telefonun bulunduğu kutu

    Alternatif olarak, Şekil 33'te gösterildiği gibi kartondan açıklıklar kesip keçeli kalem, sprey boya veya akrilik kullanarak siyah renge boyayabilirsiniz.

    Şekil 33. Hem ön hem de arka kamera için örnek karton açıklıklar

    Örnek karton açıklık

  6. Dijital lüks test cihazı kullanarak LED ışıkların lüks değerini test edin. Bu örnekte Contempo View'un YF-1065 modeli kullanılmıştır.

    YF-1065 by Contempo Views

    Şekil 34. YF-1065 by Contempo Views

  7. Işık ölçeri tablet tarafına yerleştirin ve ışığı ölçmek için 2.000 lükse çevirin. Lüks seviyesi yaklaşık 100-300 lüks olmalıdır. Bundan önemli ölçüde düşük bir değer, test için çok karanlıktır ve testin başarısız olmasına neden olabilir.

    Işık ölçer

    35.şekil Tablet montajı ile arkadan gelen ışığı ölçen lüks ışık ölçer

  8. Ölçülen lüks değerine bağlı olarak uygun adımı uygulayın:

    • Işık doğru seviyedeyse ön ve arka plakaları yerine vidalayın.
    • Işık yanlış seviyedeyse LED ve güç kaynağı parça numarasının doğru olup olmadığını kontrol edin.

Dikkat etmeniz gerekenler

Aşağıda, testlerin güvenilirliğini azaltabilecek yaygın üretim hatalarına dair örnekler verilmiştir.

  • Tablet deliklerinin açıldığı arka panel. Bu durum, vida deliklerinin oluşturduğu ekstra daireler nedeniyle find_circle testinin başarısız olmasına neden olur.

    Delikli arka panel

    Şekil 36. Deliklerin açıldığı arka panel

  • Eksik dübeller. Bu durum, nakliye sırasında ışık bölmelerinin kaymasına neden olur.

    Eksik dübel

    Şekil 37. Işık bölmesinde dübel eksik

  • UL listesinde yer almayan güç kaynağı. UL listesinde yer alan bir güç kaynağı kullanmak, güç kaynağının bozulmamasını sağlar.

    UL onaylı güç kaynağı

    38. şekil. UL listesinde yer alan güç kaynağı örneği