RFoV-Box erhalten

Das ITS-in-a-box-System mit normalem Sichtfeld (RFoV) (Revision 1a) besteht aus einer Kunststoffbox, die per Laserschnitt aus CAD-Zeichnungen (Computer-Aided Design) gefertigt wird, einem Chart-Tablet und einem zu testenden Gerät (DUT). Das RFoV ITS-in-a-box wurde für das Testen von Geräten mit einem Sichtfeld von weniger als 90 Grad (RFoV) entwickelt. Sie können ein ITS-in-a-box-System kaufen oder ein eigenes System erstellen.

Die rev1b-Version des RFOV ITS-in-a-box unterstützt modulare Komponenten und ist mit dem Tele-Erweiterungsrig kompatibel.

Rev1b

Abbildung 1: ITS-Box für normales Sichtfeld (RFoV), Rev1b

Überarbeitungsverlauf

In der folgenden Tabelle wird der Überarbeitungsverlauf des regulären Sichtfeld-Kästchens beschrieben. Außerdem sind Downloadlinks zu den einzelnen Versionen der Produktionsdateien enthalten.

Datum Revision Download von Produktionsdateien Änderungsprotokoll
September 2024 1b Vorgangsdateien für Revision 1b
  • Modulares System eingeführt (mit Befestigungsmechanismus für modulare Erweiterungen).
Mai 2019 1a Produktionsdateien für Revision 1a
  • Das Material wurde von Delrin zu ABS geändert.
  • Das Design der Lichthalterung wurde so geändert, dass sie flexibler ist und für LED-Leuchten unterschiedlicher Größe verwendet werden kann.
  • Die Konstruktionsmethoden wurden vereinheitlicht.
  • Das Design der Tablet-Halterung wurde vereinfacht und robuster gestaltet.
  • Die Tiefe der Smartphone-Halterung wurde erhöht, um auch dickere Smartphones aufnehmen zu können.
  • Die Montageoptionen auf der Vorderseite wurden erweitert, um eine Halterung für faltbare und robuste Smartphones zu ermöglichen.

ITS-in-a-box für RFoV kaufen

Wir empfehlen, ein RFoV ITS-in-a-box (Revision 1a) von einem der folgenden qualifizierten Anbieter zu kaufen.

  • Byte Bridge Inc.
    USA: 1502 Crocker Ave, Hayward, CA 94544-7037
    China: 22F #06-08, Hongwell International Plaza Tower A, 1600 West Zhongshan Road, Xuhui, Shanghai, 200235
    www.bytebt.com
    androidpartner@bytebt.com
    USA: +1-510-373-8899
    China: +86-400-8866-490

  • JFT CO LTD 捷富通科技有限公司 (previously known as MYWAY DESIGN)
    No. 40, Lane 22, Heai Road, Wujing Town, Minhang District, Shanghai, China
    4F., No. 163, Fu-Ying Road, XinZhuang District, New Taipei City 242, Taiwan
    www.jftcoltd.com
    service@jfttec.com oder its.sales@jfttec.com
    China:+86-021-64909136
    Taiwan: 886-2-29089060

Videoanleitung

In diesem Video erfahren Sie, wie Sie den ITS-in-a-box für das erweiterte Sichtfeld einrichten.

RFoV ITS-in-a-box erstellen

Anstatt ein RFoV ITS-in-a-box zu kaufen, können Sie auch selbst eines bauen. In diesem Abschnitt finden Sie eine detaillierte Montageanleitung.

Technische Zeichnungen

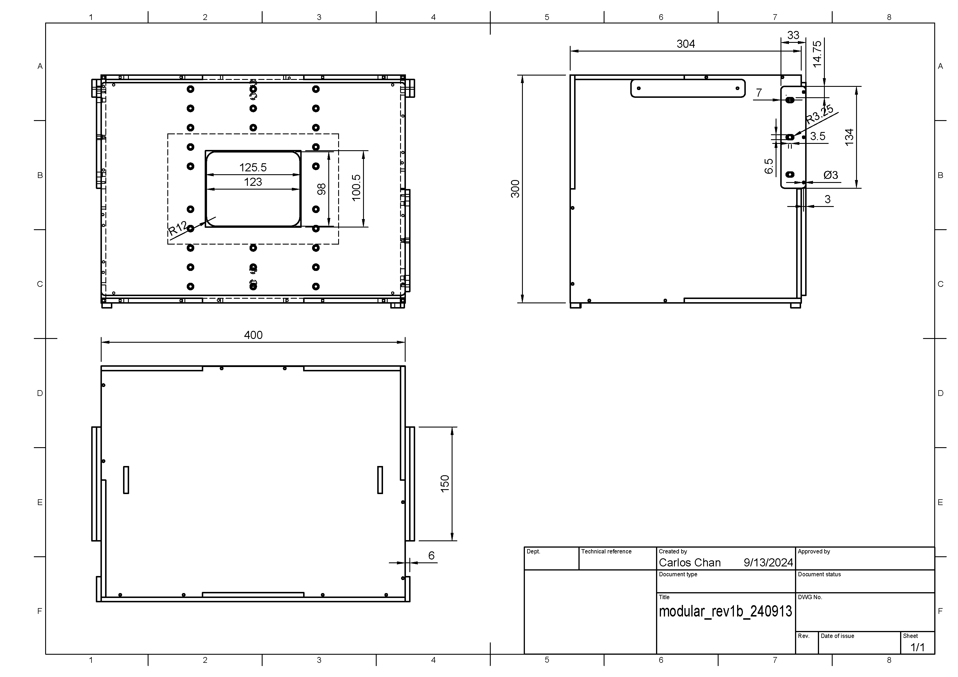
Das ITS-in-a-box-System besteht aus einem zu prüfenden Gerät, einem Chart-Tablet, einem internen Beleuchtungssystem und einer Kunststoffbox, die per Lasercut aus CAD-Zeichnungen gefertigt wird (siehe Abbildung 1).

Laden Sie zuerst die aktuelle Produktionsdatei herunter.

Mechanische Zeichnung von ITS-in-a-box

Abbildung 2: Technische Zeichnung von ITS-in-a-box

Kaufen Sie die Hardware aus der Stückliste. Schneide die Kunststoff- und Vinylteile zu.

Erforderliche Tools

Sie benötigen die folgenden Tools:

  • Torx-Schraubendreher
  • Bohrmaschine
  • ABS-Kleber
  • Spitzzange
  • X-ACTO-Messer
  • Seitenschneider oder Schere (optional)

Schritt 1: Vinyl aufbringen und Füße ankleben

Bringen Sie farbiges Vinyl auf der glatten Seite des Acrylnitril-Butadien-Styrols (ABS) an und schneiden Sie die erforderlichen Öffnungen aus, wie in Abbildung 3 und 4 dargestellt. Bringen Sie das weiße Vinyl mit der großen rechteckigen Öffnung auf der Tablet-Seite des Kartons und das schwarze Vinyl mit der runden Öffnung auf der Seite des Kartons an, auf der sich das Mobilgerät befindet. Bringen Sie graues Vinyl auf den Seitenwänden an (siehe Abbildung 4) und kleben Sie die Füße an den vier Ecken der Unterseite fest (siehe Abbildung 5). Weitere Informationen finden Sie auf wikiHow.

Vinyl auf Vorder- und Rückseite

Abbildung 3: Schwarzes Vinyl auf der Vorderseite (links) und weißes Vinyl auf der Rückseite (rechts)

Seitenleisten

Abbildung 4: Graues Vinyl an den Seitenwänden

Unteres Steuerfeld

Abbildung 5: Füße an den vier Ecken der Unterseite

Schritt 2: Beleuchtung

So bauen Sie die Beleuchtungskomponente von ITS-in-a-box zusammen:

  1. Halten Sie die Beleuchtungshardware bereit (siehe Abbildung 6).

    Teile für die Montage von Leuchten

    Abbildung 6 Teile für die Montage von Leuchten

    Zur Hardware gehören die LED-Lichtleisten, die Kunststoff-Lichtblenden, die Kunststoff-Lichthalterungen, die im LED-Beleuchtungsset enthaltenen Kunststoff- oder Metall-Lichtclips sowie vier 6-32-Schrauben mit Hutmuttern.

  2. Befestigen Sie die Lichtclips mit Schrauben an den Kunststoffblenden (siehe Abbildung 7). Befestigen Sie die Clips mit den Hutmuttern auf der anderen Seite der Blenden.

    Lichtblenden

    Abbildung 7. Kunststoffblenden mit angebrachten Lichtclips

  3. Befestigen Sie die Kunststoffblenden mit den Lichtclips an der Rückseite der LED-Lichtleisten.

    Leuchtröhren

    Abbildung 8. Lichtleisten mit nach unten gerichteten Lichtern und Schrauben, die durch die Clips geführt werden

Wenn die Beleuchtungskomponente montiert ist, sollten die LED-Lichtleisten nach unten zeigen und die Kunststoffblenden die glänzende, reflektierende Oberfläche auf der Rückseite der LED-Lichtleiste abdecken.

Schritt 3: Smartphone-Halterungen

So montieren Sie die Smartphone-Halterungen:

  1. Halten Sie die erforderlichen Teile bereit (siehe Abbildung 9).

    Artikel für Smartphone-Halterungen

    Abbildung 9. Artikel für Smartphone-Halterungen

    Die Hardware umfasst zwei Metall-Smartphone-Halterungen, zwei Stößel, zwei Gummispitzen, vier Senkkopfschrauben (8–32) und die entsprechenden Muttern.

  2. Kürzen Sie die Gummispitzen so, dass sie die Funktion des Stempels nicht beeinträchtigen (ungefähr auf die Hälfte), und setzen Sie sie dann auf die Stempelspitzen auf.

    Saugglocken

    Abbildung 10. Pömpel mit Gummispitze

  3. Bauen Sie die Smartphone-Halterungen zusammen, indem Sie die Stößelmechanismen mit Senkkopfschrauben an den Metallhalterungen befestigen. Achten Sie darauf, dass die Schrauben mit den entsprechenden Muttern festgezogen werden.

    Montierte Smartphone-Halterungen

    Abbildung 11. Montierte Smartphone-Halterungen

Schritt 4: Blendenplatte

So montieren Sie die vordere Blendenplatte:

  1. Halten Sie die in Abbildung 12 gezeigte Hardware für die vordere Blendenplatte bereit.

    Teile der vorderen Blendenplatte

    Abbildung 12. Teile der Frontblende

    Zur Hardware gehören die montierten Smartphone-Halterungen, die Smartphone-Halterungsplatte, vier kurze Nylonschrauben und vier Nylonmuttern (erforderlich, damit die Schrauben nicht durch die Rückseite der Kunststoffplatte ragen).

  2. Befestigen Sie die zusammengebauten Smartphone-Halterungen mit den Schrauben und Muttern an der Smartphone-Halterungsplatte. Achten Sie darauf, dass die Smartphone-Halterungen wie in Abbildung 13 gezeigt richtig ausgerichtet sind.

    Zusammengebaute vordere Blendenplatte

    Abbildung 13. Zusammengebaute vordere Blendenplatte

Schritt 5: Tablet-Halterung

So montieren Sie die Tischhalterung:

  1. Suchen Sie die in Abbildung 14 gezeigten Teile für die Montage des Tablets heraus.

    Teile für Tablethalterungen

    Abbildung 14. Montageteile für Tablet-Halterung

    Zur Hardware gehören die Rückwand, die Tablet-Halterung, ein Stift, eine Gummispitze, zwei Senkkopfschrauben (8–32), zwei kurze Nylonschrauben und die entsprechenden Muttern.

  2. Bauen Sie die Tablet-Halterung zusammen, indem Sie die Stößelmechanismen mit Senkkopfschrauben an der Metallhalterung befestigen. Achte darauf, dass die Schrauben mit den entsprechenden Muttern festgezogen werden.

  3. Befestigen Sie die zusammengebaute Tablet-Halterung mit den Schrauben und Muttern an der Rückwand. Achten Sie darauf, dass die Telefonhalterungen wie in Abbildung 15 gezeigt ausgerichtet sind.

    Zusammengebaute Tablet-Halterung

    Abbildung 15. Zusammengebaute Tablet-Halterung

Schritt 6: Leuchten installieren

So installierst du die Leuchten:

  1. Bringen Sie die Lichtblenden an den oberen und unteren Abdeckungen an (siehe Abbildung 16).

    Blenden installiert

    Abbildung 16: Blenden an der Ober- und Unterseite

  2. Befestigen Sie die Lichtblenden, indem Sie den Stift in das kleine Loch auf der rechteckigen Lasche drücken, die durch den Schlitz in der oberen und unteren Platte verläuft (siehe Abbildung 17).

    Markierung eingefügt

    Abbildung 17. Nahaufnahme eines eingesetzten Stifts in der LED-Halterung an der Außenseite des Gehäuses

    Drücke die Stifte vorsichtig zusammen, bis du spürst, dass sie fest im Kunststoff sitzen.

    Zangen

    Abbildung 18. Zange zum Einsetzen des Stifts

  3. Bringen Sie die Vorder- und Seitenwände in der richtigen Ausrichtung an, wie in Abbildung 19 dargestellt, und kleben Sie sie von außen zusammen.

    Ausrichtung der Lichtquelle

    Abbildung 19. Ausrichtung der Lichtquelle

  4. Bringen Sie das Stromkabel wie in Abbildung 20 gezeigt an der Stromleiste an.

    Stromkabel für die Beleuchtung

    Abbildung 20. Stromkabel für die Beleuchtung

    Führen Sie das Stromkabel durch das Loch auf der linken Seite. Das Stromkabel hat an jedem Ende unterschiedliche Stecker: Der schmalere Stecker wird an der LED-Leuchte und der größere Stecker am Netzteil angebracht.

    Netzkabel

    Abbildung 21. Das Stromkabel verläuft auf der linken Seite aus dem Prüfaufbau.

  5. Verbinde die oberen Leuchten mit den unteren Leuchten und befestige das Kabel an der linken Seite.

    Lichtkabel

    Abbildung 22. Stromkabel an der linken Seite befestigt

Schritt 7: Seitenwände, Tablet-Halterung und Griffe anbringen

So montieren Sie die Seitenwände, die Tablet-Halterung und die Griffe von ITS-in-a-box mit Schrauben:

  1. Setzen Sie alle Seiten der Paneele zusammen und kleben Sie sie wie in Abbildung 23 gezeigt zusammen.

    Verklebter Karton für die Montage

    Abbildung 23. ITS-in-a-box, für die Montage zusammengeklebt

  2. Bohren Sie mit einem Akkuschrauber anhand der vorhandenen Löcher Vorbohrungen. Achten Sie darauf, dass die Vorbohrungen groß genug für 4-40-Schrauben sind, damit das ABS-Kunststoffgehäuse beim Einsetzen der Schrauben nicht reißt.

    Bohrlöcher

    Abbildung 24. Löcher für 4-40-Schrauben vorbohren

  3. Verschrauben Sie alle Platten mit 4-40-Blechschrauben.

    Bohrmaschine

    Abbildung 25. 4-40-Schrauben für die Montage von Blenden

  4. Halten Sie die in Abbildung 26 gezeigten Griffteile bereit.

    Griffteile

    Abbildung 26. Griffteile

    Die Hardware umfasst vier rechteckige Kunststoffteile und vier 6-32-Schrauben.

  5. Montieren Sie die Griffe wie in Abbildung 27 gezeigt.

    Zusammengebauter Griff

    Abbildung 27. Zusammengebauter Griff

Schritt 8: Endmontage und Einrichtung

So führen Sie die Endmontage des ITS-in-a-box durch:

  1. Bringen Sie die Tablet-Halterung an der Rückwand an und passen Sie die Höhe an die Größe des Tablets an.

    Tablet-Halterung auf der Rückseite der Box

    Abbildung 28. Tablet in der Tablethalterung auf der Rückseite der Verpackung

  2. Bringen Sie die quadratische Blendenplatte ohne Smartphone-Halterungen mit 4‑40-Schrauben an der Vorderseite des Gehäuses an (siehe Abbildung 29).

    Montierte Frontblende

    Abbildung 29. Zusammengebautes vorderes Smartphone-Panel

  3. Setzen Sie die 10 × 10 cm große Gatorboard-Blende so ein, dass sie zur Kameraöffnung des zu prüfenden Geräts passt.

    Öffnung im Gatorboard

    Abbildung 30. ITS-in-a-box mit installierter Gatorboard-Blende

  4. Richten Sie die Kamera auf die Öffnung aus, um das Smartphone zu installieren. Prüfen Sie die Ausrichtung durch die Tablet-Öffnung.

    Verpackung mit einem Smartphone

    Abbildung 31: ITS-in-a-box mit einem installierten Smartphone

  5. Schneiden Sie Öffnungen für die Kameras aus. Sie können eine einzelne Öffnung (zum Testen eines einzelnen Smartphones) oder zwei Öffnungen (zum Testen von zwei Smartphones) ausschneiden. Die Blenden für die Front- und Rückkameras des Pixel und Pixel XL sind in Abbildung 31 dargestellt. Die Frontkamera hat eine kreisförmige Blende, da kein Blitz oder Laser vorhanden ist. Die Rückkamera hat eine rechteckige Blende, damit Blitz und Laser nicht blockiert werden.

    Beispielblenden

    Abbildung 32. Beispielblenden für Front- und Rückkameras

    Schachtel mit zwei Smartphones

    Alternativ können Sie auch Blenden aus Pappe ausschneiden und sie mit Markern, Sprühfarbe oder Acrylfarbe schwarz anmalen, wie in Abbildung 33 gezeigt.

    Abbildung 33 Beispielhafte Blenden aus Pappe für die Front- und Rückkamera

    Beispiel für eine Blende aus Pappe

  6. Messen Sie mit einem digitalen Luxmeter die Luxzahl der LED-Leuchten. In diesem Beispiel wird der YF-1065 von Contempo View verwendet.

    YF-1065 von Contempo Views

    Abbildung 34. YF-1065 von Contempo Views

  7. Platziere das Lichtmessgerät auf der Seite des Tablets und drehe es auf 2.000 Lux, um das Licht zu messen. Die Beleuchtungsstärke sollte zwischen 100 und 300 Lux liegen. Alles, was deutlich niedriger ist, ist für den Test zu dunkel und kann zu Testfehlern führen.

    Lux meter

    Abbildung 35. Luxmeter, das Licht von hinten misst, mit Tablet-Halterung

  8. Führen Sie je nach gemessenem Lux-Wert den entsprechenden Schritt aus:

    • Wenn die Lampe richtig ausgerichtet ist, schraube die vordere und die hintere Platte fest.
    • Wenn das Licht nicht die richtige Helligkeit hat, prüfen Sie, ob die Teilenummer der LED und des Netzteils korrekt ist.

Worauf Sie achten sollten

Im Folgenden finden Sie Beispiele für häufige Herstellungsfehler, die dazu führen können, dass Tests nicht zuverlässig ausgeführt werden.

  • Rückseite mit Löchern für das Tablet. Dadurch schlägt der find_circle-Test aufgrund der zusätzlichen Kreise fehl, die durch die Schraubenlöcher entstehen.

    Rückwand mit Löchern

    Abbildung 36. Rückwand mit Löchern

  • Fehlende Dübel. Dadurch können die Lichtblenden während des Transports herausrutschen.

    Dübel fehlt

    Abbildung 37: Fehlender Dübel an der Lichtblende

  • Nicht UL-gelistetes Netzteil. Wenn Sie ein UL-gelistetes Netzteil verwenden, ist sichergestellt, dass es nicht kaputt geht.

    UL-gelistetes Netzteil

    Abbildung 38. Beispiel für ein UL-gelistetes Netzteil