Obtenir un boîtier à champ de vision normal (RFoV)

L'ITS-in-a-box à champ de vision normal (RFoV) (révision 1a) se compose d'une boîte en plastique découpée au laser à partir de dessins de conception assistée par ordinateur (CAO), d'une tablette graphique et d'un appareil à tester (DUT). L'ITS-in-a-box à FoV réduit est conçu pour tester les appareils dont le champ de vision est inférieur à 90 degrés (RFoV). Vous pouvez acheter un ITS-in-a-box ou créer le vôtre.

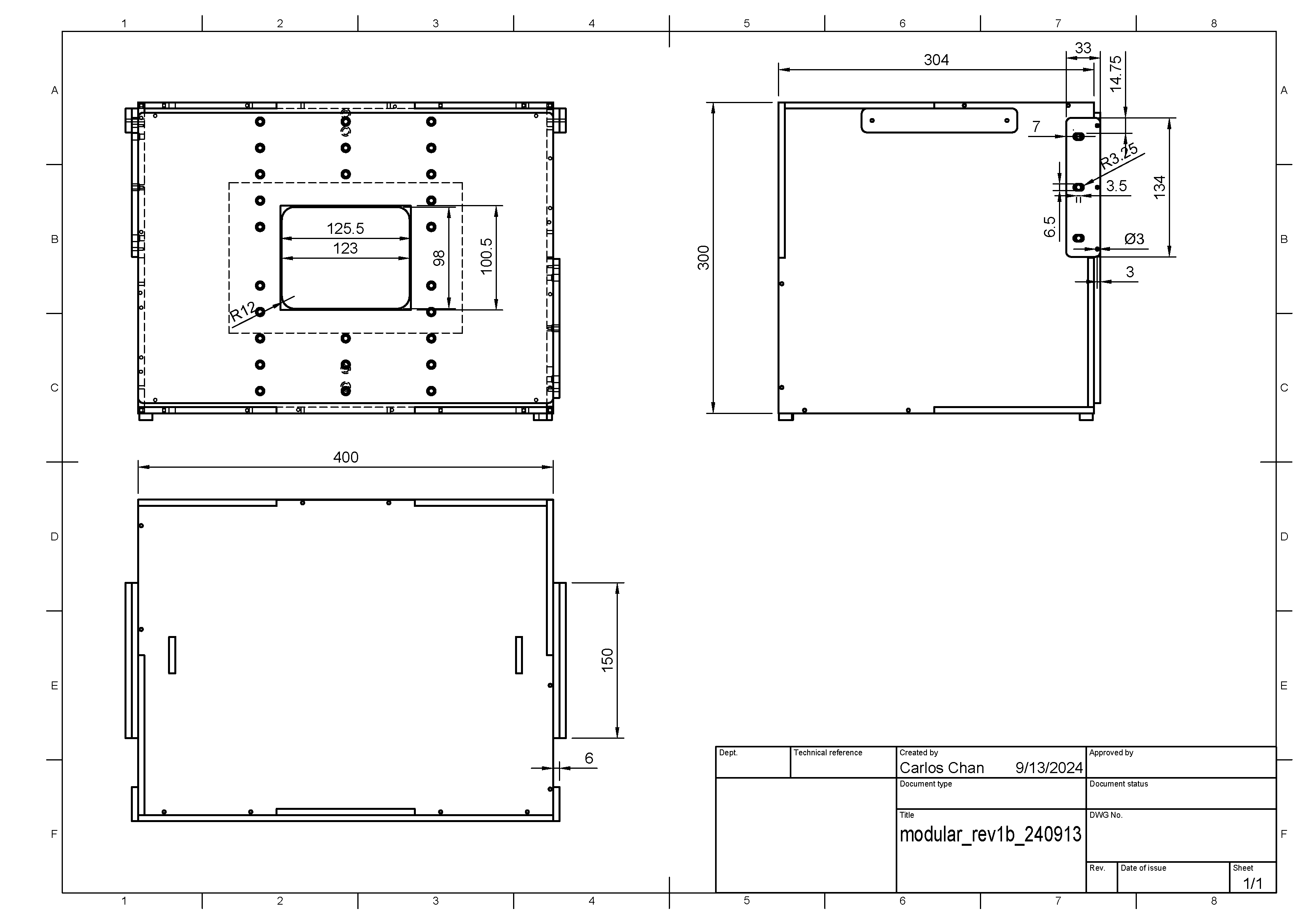
La version rev1b de RFOV ITS-in-a-box est compatible avec les composants modulaires et avec le support d'extension télé.

Rev1b

Figure 1 : Boîtier ITS à champ de vision normal (RFoV) Rev1b

Historique des révisions

Le tableau suivant décrit l'historique des révisions de la boîte de champ de vision normal et inclut des liens de téléchargement vers chaque version des fichiers de production.

Date Révision Téléchargement des fichiers de production Journal des modifications
Septembre 2024 1b Fichiers de production de la révision 1b
  • Adoption d'un système modulaire (ajout d'un mécanisme de montage pour les extensions modulaires).
Mai 2019 1a Fichiers de production Rev. 1a
  • Le matériau est passé du Delrin à l'ABS.
  • Modification de la conception du support de lampe pour le rendre plus flexible et compatible avec différentes tailles de barre LED.
  • Unification des méthodes de construction.
  • Nous avons simplifié et renforcé la conception du support de tablette.
  • La profondeur du support de téléphone a été augmentée pour accueillir les téléphones plus épais.
  • Augmentation des options de montage sur le panneau avant pour accueillir un support pour les téléphones pliables et robustes.

Acheter un ITS-in-a-box avec FoV réduit

Nous vous recommandons d'acheter un ITS-in-a-box à champ de vision étendu (révision 1a) auprès de l'un des fournisseurs qualifiés suivants.

  • Byte Bridge Inc.
    États-Unis : 1502 Crocker Ave, Hayward, CA 94544-7037
    Chine : 22F #06-08, Hongwell International Plaza Tower A, 1600 West Zhongshan Road, Xuhui, Shanghai, 200235
    www.bytebt.com
    androidpartner@bytebt.com
    États-Unis : +1-510-373-8899
    Chine : +86-400-8866-490

  • JFT CO LTD 捷富通科技有限公司 (anciennement MYWAY DESIGN)
    No. 40, Lane 22, Heai Road, Wujing Town, Minhang District, Shanghai, Chine
    4F., N° 163, Fu-Ying Road, XinZhuang District, New Taipei City 242, Taïwan
    www.jftcoltd.com
    service@jfttec.com ou its.sales@jfttec.com
    Chine : +86-021-64909136
    Taïwan : 886-2-29089060

Tutoriel vidéo

Il s'agit d'un tutoriel vidéo expliquant comment configurer l'ITS-in-a-box RFoV.

Créer un ITS-in-a-box avec FoV réduit

Au lieu d'acheter un ITS-in-a-box à champ de vision réduit, vous pouvez créer le vôtre. Cette section fournit des instructions détaillées pour l'assemblage.

Dessins mécaniques

L'ITS-in-a-box se compose d'un DUT, d'une tablette de graphiques, d'un système d'éclairage interne et d'une boîte en plastique découpée au laser à partir de dessins CAO (voir figure 1).

Pour commencer, téléchargez le dernier fichier de production.

Schéma mécanique d'ITS-in-a-box

Figure 2. Schéma mécanique d'ITS-in-a-box

Achetez le matériel à partir de la nomenclature. Découpez les pièces en plastique et en vinyle.

Outils requis

Disposez des outils suivants :

  • Tournevis à tête Torx
  • Perceuse électrique
  • Colle ABS
  • Pince à bec long
  • Cutter X-ACTO
  • (Facultatif) Pinces coupantes ou ciseaux

Étape 1 : Appliquez le vinyle et collez les pieds

Appliquez du vinyle coloré sur le côté lisse de l'acrylonitrile butadiène styrène (ABS) et découpez les ouvertures nécessaires, comme indiqué sur les figures 3 et 4. Appliquez le vinyle blanc avec la grande ouverture rectangulaire sur le côté de la boîte où se trouve la tablette et le vinyle noir avec l'ouverture circulaire sur le côté de la boîte où se trouve l'appareil mobile. Appliquez le vinyle gris sur les panneaux latéraux, comme indiqué sur la figure 4, puis collez les pieds sur les quatre coins du panneau inférieur, comme indiqué sur la figure 5. Pour en savoir plus, consultez wikiHow.

Vinyle sur les panneaux avant et arrière

Figure 3. Vinyle noir sur le panneau avant (à gauche) et vinyle blanc sur le panneau arrière (à droite)

Panneaux latéraux

Figure 4. Vinyle gris sur les panneaux latéraux

Panneau inférieur

Figure 5. Pieds situés aux quatre coins du panneau inférieur

Étape 2 : Éclairage

Pour assembler le composant d'éclairage ITS-in-a-box :

  1. Rassemblez le matériel d'éclairage, comme indiqué sur la figure 6.

    Pièces d'assemblage des luminaires

    Figure 6. Pièces d'assemblage des luminaires

    Le matériel inclut les barres lumineuses à LED, les déflecteurs de lumière en plastique, les supports de lumière en plastique, les clips de lumière en plastique ou en métal inclus dans le kit d'éclairage à LED, ainsi que quatre vis 6-32 avec écrous à tête ronde.

  2. Vissez les clips lumineux aux déflecteurs en plastique, comme illustré sur la figure 7. Fixez les clips à l'aide des écrous borgnes de l'autre côté des déflecteurs.

    Déflecteurs de lumière

    Figure 7. Déflecteurs en plastique avec clips lumineux

  3. Pour assembler les éclairages, fixez les déflecteurs en plastique à l'arrière des barres lumineuses à l'aide des clips.

    Barres lumineuses

    Figure 8. Barres lumineuses avec les lumières orientées vers le bas et les vis insérées dans les clips

Une fois le composant d'éclairage assemblé, les barres lumineuses à LED doivent être orientées vers le bas et les déflecteurs en plastique doivent recouvrir la surface brillante et réfléchissante à l'arrière de la barre lumineuse à LED.

Étape 3 : Supports pour téléphone

Pour assembler les supports de téléphone :

  1. Rassemblez les éléments requis, comme indiqué sur la figure 9.

    Supports pour téléphone

    Figure 9. Supports pour téléphone

    Le matériel comprend deux supports métalliques pour téléphone, deux poussoirs, deux embouts en caoutchouc, quatre vis à tête cylindrique 8-32 et les écrous correspondants.

  2. Coupez les embouts en caoutchouc suffisamment court pour ne pas gêner le fonctionnement du piston (environ de moitié), puis appliquez-les pour recouvrir les extrémités des pistons.

    Ventouses

    Figure 10. Déboucheurs avec embouts en caoutchouc

  3. Assemblez les supports de téléphone à l'aide de vis à tête cylindrique pour fixer les mécanismes du plongeur aux supports métalliques. Assurez-vous que les vis sont serrées avec les écrous correspondants.

    Supports pour téléphone assemblés

    Figure 11 : Supports pour téléphone assemblés

Étape 4 : Plaque d'ouverture

Pour assembler la plaque d'ouverture avant :

  1. Rassemblez les éléments de la plaque d'ouverture avant illustrés à la figure 12.

    Pièces de la plaque d'ouverture avant

    Figure 12. Pièces de l'ensemble de la plaque d'ouverture avant

    Le matériel inclut les supports de téléphone assemblés, le panneau du support de téléphone, quatre vis courtes en nylon et quatre écrous en nylon (nécessaires pour empêcher les vis de dépasser à l'arrière de la plaque en plastique).

  2. À l'aide des vis et des écrous, fixez les supports de téléphone assemblés au panneau du support de téléphone. Assurez-vous que les supports du téléphone sont dans la bonne orientation, comme indiqué sur la figure 13.

    Plaque d'ouverture avant assemblée

    Figure 13. Plaque d'ouverture avant assemblée

Étape 5 : Support de tablette

Pour assembler le support de table :

  1. Rassemblez les éléments de fixation du support de tablette illustrés à la figure 14.

    Pièces du support de tablette

    Figure 14. Pièces de l'ensemble de l'espace de montage de la tablette

    Le matériel inclut le panneau arrière, le support de tablette, un poussoir, un embout en caoutchouc, deux vis à tête cylindrique 8-32, deux vis courtes en nylon et les écrous correspondants.

  2. Assemblez le support de tablette en utilisant des vis à tête cylindrique pour fixer les mécanismes du poussoir au support métallique. Assurez-vous que les vis sont serrées avec les écrous correspondants.

  3. À l'aide des vis et des écrous, fixez le support de tablette assemblé au panneau arrière. Assurez-vous que les supports de téléphone sont dans la bonne orientation, comme indiqué sur la figure 15.

    Support de tablette assemblé

    Figure 15. Support de tablette assemblé

Étape 6 : Installez les lumières

Pour installer les lumières :

  1. Installez les déflecteurs de lumière sur les panneaux supérieur et inférieur, comme illustré à la figure 16.

    Des déflecteurs de lumière sont installés.

    Figure 16. Déflecteurs de lumière installés sur les panneaux supérieur et inférieur

  2. Fixez les déflecteurs de lumière en insérant la broche dans le petit trou de la languette rectangulaire qui dépasse de la fente des panneaux supérieur et inférieur, comme illustré sur la figure 17.

    Repère inséré

    Figure 17. Gros plan sur une tige insérée dans la languette du support LED à l'extérieur de la boîte

    Pour fixer les broches, appuyez doucement dessus jusqu'à ce que vous sentiez une certaine pression sur le plastique.

    Pinces

    Figure 18. Pinces utilisées pour installer la broche

  3. Assemblez les panneaux avant et latéraux dans la bonne orientation, comme indiqué sur la figure 19, puis fixez-les avec du ruban adhésif depuis l'extérieur.

    Orientation de l'emplacement de la lumière

    Figure 19. Orientation de l'emplacement de la lumière

  4. Branchez le câble d'alimentation à la barre lumineuse d'alimentation, comme illustré sur la figure 20.

    Câble d'alimentation de l'éclairage

    Figure 20. Câble d'alimentation de l'éclairage

    Faites passer le câble d'alimentation par le trou du panneau de gauche. Le câble d'alimentation comporte des connecteurs différents à chaque extrémité : le connecteur le plus étroit se fixe à la barre lumineuse LED et le connecteur le plus large se fixe à l'adaptateur secteur.

    Câble d'alimentation

    Figure 21. Câble d'alimentation sortant du banc d'essai sur le côté gauche

  5. Raccordez les voyants supérieurs à ceux du bas et fixez le câble sur le panneau de gauche.

    Câble lumineux

    Figure 22. Câble lumineux ancré sur le panneau de gauche

Étape 7 : Assemblez les panneaux latéraux, le support de tablette et les poignées

Pour assembler les panneaux latéraux, le support de tablette et les poignées de l'ITS-in-a-box avec des vis :

  1. Assemblez tous les côtés des panneaux et fixez-les avec du ruban adhésif, comme indiqué sur la figure 23.

    Boîte scellée pour l'assemblage

    Figure 23. ITS-in-a-box assemblé avec du ruban adhésif

  2. Utilisez une perceuse électrique pour créer des avant-trous en fonction des trous existants. Assurez-vous que les avant-trous sont suffisamment grands pour les vis 4-40 afin que le plastique ABS ne se fissure pas lors de l'insertion des vis.

    Percer des trous

    Figure 24. Percer des avant-trous pour les vis 4-40

  3. Vissez tous les panneaux ensemble à l'aide de vis autotaraudeuses 4-40.

    Perceuse électrique

    Figure 25. Vis 4-40 pour assembler les panneaux

  4. Rassemblez les pièces de la poignée illustrées sur la figure 26.

    Poignées

    Figure 26. Poignées

    Le matériel comprend quatre pièces rectangulaires en plastique et quatre vis 6-32.

  5. Assemblez les poignées comme indiqué sur la figure 27.

    Poignée assemblée

    Figure 27. Poignée assemblée

Étape 8 : Assemblage final et configuration

Pour effectuer l'assemblage final de l'ITS-in-a-box :

  1. Fixez le support de tablette au panneau arrière et ajustez la hauteur en fonction de la taille de la tablette.

    Support de tablette à l'arrière de la boîte

    Figure 28. Tablette dans le support pour tablette à l'arrière de la boîte

  2. Fixez le panneau à ouverture carrée sans supports de téléphone à l'avant de la boîte à l'aide de vis 4-40, comme illustré à la figure 29.

    Panneau avant assemblé

    Figure 29. Panneau avant du téléphone assemblé

  3. Insérez l'ouverture de la plaque de mousse de 10 x 10 cm pour l'adapter à l'ouverture de la caméra du DUT.

    Ouverture du panneau Gator

    Figure 30. ITS-in-a-box avec ouverture de panneau Gator

  4. Installez le téléphone en alignant l'appareil photo sur l'ouverture. Vérifiez l'alignement à travers l'ouverture de la tablette.

    Boîte avec un téléphone

    Figure 31. ITS-in-a-box avec un téléphone installé

  5. Découpez les ouvertures pour les caméras. Vous pouvez découper une seule ouverture (pour tester un seul téléphone) ou deux ouvertures (pour tester deux téléphones). Les ouvertures des caméras avant et arrière du Pixel et du Pixel XL sont indiquées sur la figure 31. La caméra avant est dotée d'une ouverture circulaire, car elle ne comporte pas de flash ni de laser. La caméra arrière, quant à elle, est dotée d'une ouverture rectangulaire qui permet au flash et au laser de fonctionner sans être bloqués.

    Exemples d'ouvertures

    Figure 32. Exemples d'ouvertures pour les caméras avant et arrière

    Boîte avec deux téléphones

    Vous pouvez également découper des ouvertures dans du carton et les peindre en noir à l'aide de feutres, de peinture en bombe ou de peinture acrylique, comme illustré à la figure 33.

    Figure 33. Exemples d'ouvertures en carton pour les caméras avant et arrière

    Exemple d'ouverture en carton

  6. À l'aide d'un luxmètre numérique, testez le lux des voyants LED. Le YF-1065 de Contempo View est utilisé dans cet exemple.

    YF-1065 de Contempo Views

    Figure 34 : YF-1065 de Contempo Views

  7. Placez le luxmètre sur le côté de la tablette et réglez-le sur 2 000 lux pour mesurer la luminosité. Le niveau de luminosité doit être compris entre 100 et 300 lux. Toute valeur nettement inférieure est trop faible pour le test et peut entraîner des échecs.

    Posemètre

    Figure 35. Luxmètre mesurant la luminosité à l'arrière avec un support pour tablette

  8. Suivez l'étape appropriée en fonction de la valeur de luminosité mesurée :

    • Si la lumière est au bon niveau, vissez les plaques avant et arrière.
    • Si la luminosité n'est pas correcte, vérifiez que les références de la LED et de l'alimentation sont correctes.

Éléments à prendre en compte

Vous trouverez ci-dessous des exemples d'erreurs de fabrication courantes qui peuvent rendre les tests instables.

  • Panneau arrière avec des trous pour la tablette. Cela entraîne l'échec du test find_circle en raison des cercles supplémentaires créés par les trous de vis.

    Panneau arrière avec trous

    Figure 36. Panneau arrière avec des trous

  • Il manque des chevilles. Les déflecteurs de lumière peuvent alors glisser hors de leur emplacement pendant le transport.

    Cheville manquante

    Figure 37. Cheville manquante sur le déflecteur de lumière

  • Alimentation ne figurant pas sur la liste UL. L'utilisation d'une alimentation certifiée UL permet de s'assurer qu'elle ne se casse pas.

    Alimentation certifiée UL

    Figure 38. Exemple d'alimentation certifiée UL