O ITS-in-a-box de campo de visão normal (RFoV) (revisão 1a) consiste em uma caixa de plástico cortada a laser de desenhos de design assistido por computador (CAD), um tablet gráfico e um dispositivo em teste (DUT). O RFoV ITS-in-a-box foi projetado para testar dispositivos com um FoV menor que 90 graus (RFoV). Você pode comprar um ITS-in-a-box ou criar o seu próprio.
A versão rev1b do ITS-in-a-box RFOV adiciona suporte a componentes modulares e é compatível com o suporte de extensão de tele.
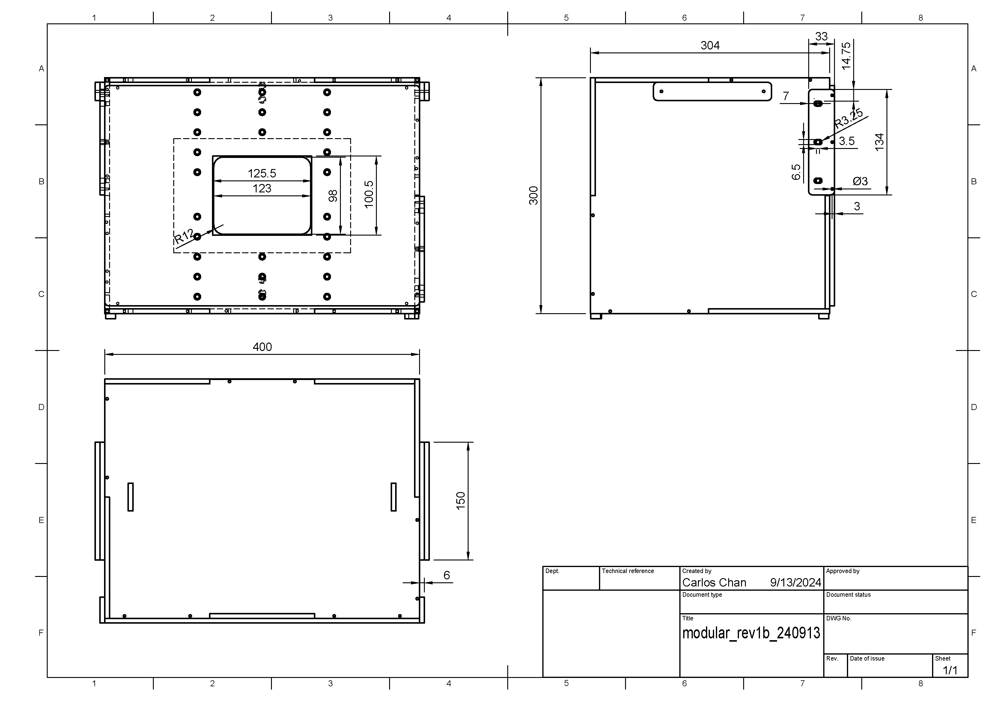
Figura 1. Caixa ITS de campo de visão normal (RFoV) Rev1b
Histórico de revisões
A tabela a seguir descreve o histórico de revisões da caixa de campo de visão normal e inclui links para download de cada versão dos arquivos de produção.
| Data | Revisão | Download de arquivos de produção | Registro de alterações |
|---|---|---|---|
| Setembro de 2024 | 1b | Arquivos de produção da Rev. 1b |
|
| Maio de 2019 | 1a | Arquivos de produção da revisão 1a |
|
Comprar um ITS-in-a-box de RFoV
Recomendamos comprar um ITS-in-a-box RFoV (revisão 1a) de um dos seguintes fornecedores qualificados.
Byte Bridge Inc.
EUA: 1502 Crocker Ave, Hayward, CA 94544-7037
China: 22F #06-08, Hongwell International Plaza Tower A, 1600 West Zhongshan Road, Xuhui, Xangai, 200235
www.bytebt.com
androidpartner@bytebt.com
EUA: +1-510-373-8899
China: +86-400-8866-490JFT CO LTD 捷富通科技有限公司 (antes conhecida como MYWAY DESIGN)
Nº 40, Rua 22, Heai Road, Wujing Town, Minhang District, Xangai, China
4º andar, Nº 163, Rua Fu-Ying, Distrito de XinZhuang, New Taipei City 242, Taiwan
www.jftcoltd.com
service@jfttec.com ou its.sales@jfttec.com
China:+86-021-64909136
Taiwan: 886-2-29089060
Tutorial em vídeo
Este é um tutorial em vídeo sobre como configurar o ITS-in-a-box de RFoV.
Criar um ITS-in-a-box de RFoV
Em vez de comprar um ITS-in-a-box de RFoV, você pode criar o seu próprio. Esta seção fornece instruções detalhadas para a montagem.
Desenhos mecânicos
O ITS-in-a-box consiste em um DUT, um tablet gráfico, um sistema de iluminação interna e uma caixa de plástico cortada a laser de desenhos CAD (mostrada na Figura 1).
Para começar, faça o download do arquivo de produção mais recente.
Figura 2. Desenho mecânico do ITS-in-a-Box
Compre o hardware na lista de materiais (BOM). Corte os pedaços de plástico e vinil.
Ferramentas necessárias
Tenha as seguintes ferramentas disponíveis:
- Chave de fenda Torx
- Furadeira
- Cola ABS
- Alicate de ponta fina
- Estilete X-ACTO
- Cortadores de fios ou tesoura (opcional)
Etapa 1: aplique o vinil e cole os pés
Aplique vinil colorido no lado liso do acrilonitrilo butadieno estireno (ABS) e corte as aberturas necessárias, conforme mostrado nas figuras 3 e 4. Aplique o vinil branco com a grande abertura retangular na lateral da caixa do tablet e o vinil preto com a abertura circular na lateral da caixa do dispositivo móvel. Aplique vinil cinza nos painéis laterais, como mostrado na Figura 4, e cole os pés nos quatro cantos do painel inferior, como mostrado na Figura 5. Para mais informações, consulte wikiHow.
Figura 3. Vinil preto no painel frontal (esquerda) e vinil branco no painel traseiro (direita)
Figura 4. Vinil cinza nos painéis laterais
Figura 5. Pés nos quatro cantos do painel inferior
Etapa 2: iluminação
Para montar o componente de iluminação do ITS-in-a-box:
Reúna o hardware de iluminação conforme mostrado na Figura 6.
Figura 6. Peças de montagem de iluminação
O hardware inclui as barras de luz de LED, os defletores de luz de plástico, os suportes de luz de plástico, os clipes de luz de plástico ou metal incluídos no kit de iluminação de LED e quatro parafusos 6-32 com porcas de cabeça de bolota.
Fixe os clipes de luz aos defletores de plástico, conforme mostrado na Figura 7. Prenda os clipes usando as porcas sextavadas do outro lado dos defletores.
Figura 7. Defletores de plástico com clipes de luz anexados
Para montar as luzes, prenda os defletores de plástico na parte de trás das barras de luz LED usando os clipes.
Figura 8. Barras de iluminação com as luzes voltadas para baixo e parafusos passados pelos clipes
Quando o componente de iluminação estiver montado, as barras de luz LED devem apontar para baixo, e os defletores de plástico precisam cobrir a superfície brilhante e reflexiva na parte de trás da barra de luz LED.
Etapa 3: suportes para smartphone
Para montar os suportes de smartphone:
Reúna os itens necessários, conforme mostrado na Figura 9.
Figura 9. Suportes para smartphone
O hardware inclui dois suportes de metal para smartphone, dois êmbolos, duas pontas de borracha, quatro parafusos de cabeça cilíndrica 8-32 e as porcas correspondentes.
Corte as pontas de borracha para que não interfiram no funcionamento do êmbolo (aproximadamente na metade) e aplique-as para cobrir as pontas dos êmbolos.
Figura 10. Desentupidores com pontas de borracha
Monte os suportes para smartphone usando parafusos de cabeça cilíndrica para fixar os mecanismos de êmbolo aos suportes de metal. Verifique se os parafusos estão apertados com as porcas correspondentes.
Figura 11. Suportes para smartphone montados
Etapa 4: placa de abertura
Para montar a placa de abertura frontal:
Reúna o hardware da placa de abertura frontal mostrado na Figura 12.
Figura 12. Peças de montagem da placa de abertura frontal
O hardware inclui os suportes de smartphone montados, o painel de suporte de smartphone, quatro parafusos curtos de nylon e quatro porcas de nylon (necessárias para evitar que os parafusos sobressaiam na parte de trás da placa de plástico).
Usando os parafusos e as porcas, prenda os suportes de smartphone montados ao painel de suporte. Verifique se os suportes para smartphone estão na orientação correta, conforme mostrado na Figura 13.
Figura 13. Placa de abertura frontal montada
Etapa 5: suporte para tablet
Para montar o suporte de mesa:
Reúna o hardware de montagem do suporte para tablet mostrado na Figura 14.
Figura 14. Peças de montagem do suporte para tablet
O hardware inclui o painel traseiro, o suporte para tablet, um êmbolo, uma ponta de borracha, dois parafusos de cabeça chata 8-32, dois parafusos curtos de nylon e as porcas correspondentes.
Monte o suporte para tablet usando parafusos de cabeça chata para fixar os mecanismos de trava ao suporte de metal. Confira se os parafusos estão apertados com as porcas correspondentes.
Usando os parafusos e as porcas, prenda o suporte montado na parte de trás do painel. Verifique se os suportes para smartphone estão na orientação correta, conforme mostrado na Figura 15.
Figura 15. Suporte para tablet montado
Etapa 6: instalar as luzes
Para instalar as luzes:
Instale os defletores de luz nos painéis superior e inferior, como mostrado na Figura 16.
Figura 16. Defletores de luz instalados nos painéis superior e inferior
Prenda os defletores de luz encaixando o pino no pequeno orifício da aba retangular que se estende pelo slot nos painéis superior e inferior, como na Figura 17.
Figura 17. Imagem ampliada do pino inserido na guia de suporte do LED na parte externa da caixa
Para fixar os pinos, aperte-os com cuidado até sentir uma pressão no plástico enquanto eles são fixados no lugar.
Figura 18. Alicate usado para instalar o pino
Monte os painéis frontal e laterais na orientação correta, conforme mostrado na Figura 19, e prenda-os com fita adesiva pelo lado de fora.
Figura 19. Orientação de posicionamento da luz
Conecte o cabo de alimentação à barra de luz de alimentação, conforme mostrado na Figura 20.
Figura 20. Cabo de alimentação da iluminação
Passe o cabo de alimentação pelo orifício no painel esquerdo. O cabo de alimentação tem conectores diferentes em cada extremidade: o conector mais estreito é conectado à barra de luz LED, e o maior é conectado ao adaptador de energia.
Figura 21. Cabo de alimentação saindo do equipamento de teste pelo lado esquerdo
Conecte as luzes de cima às de baixo e prenda o cabo no painel esquerdo.
Figura 22. Cabo de luz fixado no painel esquerdo
Etapa 7: montar os painéis laterais, o suporte para tablet e as alças
Para montar os painéis laterais, o suporte para tablet e as alças do ITS-in-a-box com parafusos:
Junte todos os lados dos painéis e prenda com fita adesiva, conforme mostrado na Figura 23.
Figura 23. ITS-in-a-box colado com fita adesiva para montagem
Use uma furadeira elétrica para criar furos piloto com base nos furos existentes. Verifique se os furos piloto são grandes o suficiente para parafusos 4-40 para que o plástico ABS não rache ao inserir os parafusos.
Figura 24. Fazer pré-furos para parafusos 4-40
Parafuse todos os painéis usando parafusos autorroscantes 4-40.
Figura 25. Parafusos 4-40 para montagem de painéis
Reúna as partes da alça mostradas na Figura 26.
Figura 26. Peças de alça
O hardware inclui quatro peças de plástico retangulares e quatro parafusos 6-32.
Monte as alças conforme mostrado na Figura 27.
Figura 27. Alça montada
Etapa 8: montagem e configuração finais
Para fazer a montagem final do ITS-in-a-box:
Fixe o suporte de tablet no painel traseiro e ajuste a altura de acordo com o tamanho do tablet.
Figura 28. Tablet no suporte na parte de trás da caixa
Prenda o painel de abertura quadrada sem suportes de smartphone na frente da caixa com parafusos 4-40, conforme mostrado na Figura 29.
Figura 29. Painel frontal montado do smartphone
Insira a abertura de placa de jacaré de 10 x 10 cm para encaixar na abertura da câmera do DUT.
Figura 30. ITS-in-a-box com abertura de placa de gator instalada
Para instalar o smartphone, alinhe a câmera com a abertura. Verifique o alinhamento pela abertura do tablet.
Figura 31. ITS-in-a-box com um smartphone instalado
Corte as aberturas para as câmeras. Você pode cortar uma única abertura (para testar um smartphone) ou duas aberturas (para testar dois smartphones). As aberturas das câmeras frontal e traseira do Pixel e do Pixel XL são mostradas na Figura 31. A câmera frontal tem uma abertura circular porque não há flash nem laser, enquanto a câmera traseira tem uma abertura retangular que permite que o flash e o laser funcionem sem serem bloqueados.
Figura 32. Exemplos de aberturas para as câmeras frontal e traseira
Outra opção é cortar aberturas em um pedaço de papelão e pintar de preto com marcadores, tinta spray ou acrílico, como mostrado na Figura 33.
Figura 33. Exemplos de aberturas de papelão para as câmeras frontal e traseira
Usando um luxímetro digital, teste o lux das luzes de LED. O YF-1065 da Contempo View é usado neste exemplo.
Figura 34. YF-1065 da Contempo Views
Coloque o medidor de luz na lateral do tablet e gire para 2.000 lux para medir a luz. O nível de lux deve estar entre 100 e 300 lux. Qualquer valor significativamente menor é muito fraco para o teste e pode levar a falhas.
Figura 35. Medidor de lux medindo a luz da parte de trás com suporte para tablet
Siga a etapa adequada dependendo do valor de lux medido:
- Se a luz estiver no nível correto, aparafuse as placas frontal e traseira no lugar.
- Se a luz estiver no nível incorreto, verifique se o LED e o número da peça da fonte de alimentação estão corretos.
O que procurar
Confira a seguir exemplos de erros comuns de fabricação que podem tornar os testes instáveis.
Painel traseiro com furos para tablet. Isso faz com que o teste
find_circlefalhe devido aos círculos extras criados pelos furos dos parafusos.
Figura 36. Painel traseiro com furos
Faltam pinos. Isso faz com que os defletores de luz escorreguem durante o transporte.
Figura 37. Pino ausente no defletor de luz
Fonte de alimentação não listada pela UL. Usar uma fonte de alimentação com certificação UL garante que ela não vai quebrar.
Figura 38. Exemplo de uma fonte de alimentação listada pela UL