取得一般視野 (RFoV) 攝影機

標準視野 (RFoV) ITS-in-a-box (修訂版本 1a) 包含以電腦輔助設計 (CAD) 圖稿雷射切割的塑膠盒、圖表平板電腦,以及受測裝置 (DUT)。RFoV ITS-in-a-box 旨在測試視野小於 90 度 (RFoV) 的裝置。您可以購買 ITS-in-a-box,也可以自行建構。

RFOV ITS-in-a-box 的 rev1b 版本支援模組化元件,並與遠距擴充裝置相容。

Rev1b

圖 1. 標準視野 (RFoV) ITS 盒裝 Rev1b

修訂記錄

下表說明一般視野方塊的修訂記錄,並提供各個版本製作檔案的下載連結。

日期 修訂版本 下載正式版檔案 變更記錄
2024 年 9 月 1b Rev. 1b 製作檔案
  • 採用模組化系統 (新增模組化擴充功能的安裝機制)。
2019 年 5 月 1a Rev. 1a production files
  • 材質從 Delrin 改為 ABS。
  • 修改燈架設計,使其更具彈性,可處理不同大小的 LED 燈條。
  • 統一建構方法。
  • 簡化平板電腦支架設計,並提升耐用度。
  • 加深手機支架的深度,以容納較厚的手機。
  • 前置面板的安裝選項增加,可容納折疊式裝置和堅固耐用手機的安裝架。

購買 RFoV ITS-in-a-box

建議向下列合格供應商購買 RFoV ITS-in-a-box (修訂版 1a)。

  • Byte Bridge Inc.
    美國:1502 Crocker Ave, Hayward, CA 94544-7037
    中國:上海市徐匯區中山西路 1600 號宏匯國際廣場 A 座 22 樓 06-08 室,200235
    www.bytebt.com
    androidpartner@bytebt.com
    美國:+1-510-373-8899
    中國:+86-400-8866-490

  • JFT CO LTD 捷富通科技有限公司 (原名 MYWAY DESIGN)
    中國上海市閔行區吳涇鎮河愛路 22 弄 40 號
    4F., 臺灣新北市新莊區福營路 163 號 (郵遞區號:242)
    www.jftcoltd.com
    service@jfttec.com 或 its.sales@jfttec.com
    中國:+86-021-64909136
    臺灣:886-2-29089060

教學影片

這部影片教學課程說明如何設定 RFoV ITS-in-a-box。

建構 RFoV ITS-in-a-box

您可以自行建構 RFoV ITS-in-a-box,不必購買。本節提供詳細的組裝說明。

機械圖

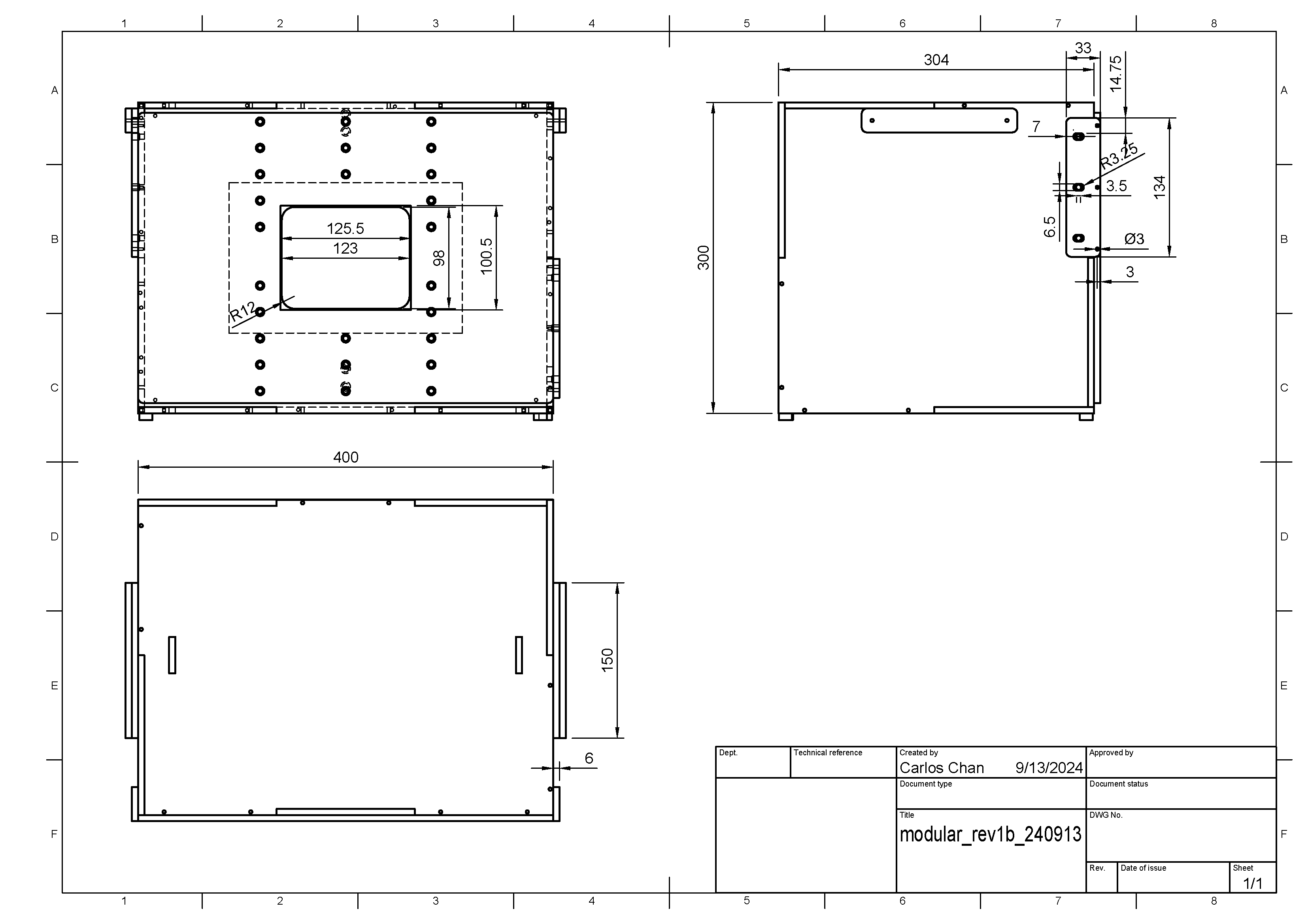
ITS-in-a-box 包含 DUT、圖表平板電腦、內部照明系統,以及以 CAD 圖面雷射切割的塑膠盒 (如圖 1 所示)。

如要開始使用,請下載最新版正式版檔案。

ITS-in-a-box 機械圖

圖 2. ITS-in-a-a-box 的機械圖

從物料清單 (BOM) 購買硬體。剪下塑膠和乙烯基片。

必要工具

備妥下列工具:

  • 星型螺絲起子
  • 電鑽
  • ABS 膠水
  • 尖嘴鉗
  • 美工刀
  • 剪線鉗或剪刀 (選用)

步驟 1:貼上乙烯基和黏上腳墊

在丙烯腈丁二烯苯乙烯 (ABS) 的平滑面貼上彩色乙烯基,並如圖 3 和圖 4 所示,剪出必要的開口。將白色乙烯基貼紙貼在盒子的平板電腦側,並將黑色乙烯基貼紙貼在盒子的行動裝置側。如圖 4 所示,在側邊面板上貼上灰色乙烯基,並如圖 5 所示,在底部面板的四個角落黏上腳座。詳情請參閱 wikiHow

正反兩面皆為乙烯基

圖 3. 正面面板上的黑色乙烯基 (左側),以及背面面板上的白色乙烯基 (右側)

側邊面板

圖 4. 側邊面板上的灰色黑膠唱片

底部面板

圖 5. 底板四個角落的腳架

步驟 2:照明

如要組裝 ITS-in-a-box 照明元件,請按照下列步驟操作:

  1. 如圖 6 所示,收集照明硬體。

    燈具組裝零件

    圖 6. 燈具組裝零件

    硬體包括 LED 燈條、塑膠擋光板、塑膠燈架、LED 照明套件隨附的塑膠或金屬燈夾,以及四個 6-32 螺絲和圓頭螺帽。

  2. 如圖 7 所示,將燈夾栓到塑膠擋板上。在擋板另一側使用蝶形螺帽固定夾子。

    擋光板

    圖 7. 附有燈夾的塑膠擋板

  3. 如要組裝燈具,請使用燈夾將塑膠擋板固定在 LED 燈條背面。

    燈條

    圖 8. 燈條的燈朝下,螺絲穿過夾扣

組裝照明元件時,LED 燈條應朝下,塑膠擋板則應蓋住 LED 燈條背面的反光表面。

步驟 3:手機支架

組裝手機支架:

  1. 如圖 9 所示,準備好所需物品。

    手機支架

    圖 9.手機支架

    硬體包括兩個金屬手機支架、兩個吸盤、兩個橡膠尖端、四個 8-32 圓頭螺絲,以及相應的螺帽。

  2. 將橡膠筆尖剪短,以免妨礙活塞運作 (大約剪一半),然後套上活塞尖端。

    吸把

    圖 10. 橡膠頭吸把

  3. 使用平頭螺絲將插銷機構固定在金屬支架上,組裝手機支架。確認螺絲已用對應的螺帽鎖緊。

    組裝好的手機支架

    圖 11. 組裝好的手機支架

步驟 4:光圈板

組裝前光圈板:

  1. 收集圖 12 所示的前光圈板硬體。

    前光圈板零件

    圖 12. 前光圈板組裝零件

    硬體包括組裝好的手機支架、手機支架面板、四個短尼龍螺絲和四個尼龍螺帽 (用於防止螺絲從塑膠板背面突出)。

  2. 使用螺絲和螺帽,將組裝好的手機架固定在手機架面板上。確認手機支架的方向正確,如圖 13 所示。

    組裝完成的前光圈板

    圖 13. 組裝完成的前光圈板

步驟 5:平板電腦支架

如要組裝桌架,請按照下列步驟操作:

  1. 收集圖 14 所示的平板電腦支架組裝硬體。

    平板電腦支架零件

    圖 14. 平板電腦支架空間組裝零件

    硬體包括背板、平板電腦支架、一個柱塞、一個橡膠尖端、 兩個 8-32 圓頭螺絲、兩個短尼龍螺絲和相應的螺帽。

  2. 組裝平板電腦支架:使用圓頭螺絲將柱塞機構固定在金屬支架上。確認螺絲已用對應的螺帽鎖緊。

  3. 使用螺絲和螺帽,將組裝好的平板電腦支架固定在背板上。確認手機支架的方向正確,如圖 15 所示。

    組裝完成的平板電腦支架

    圖 15. 組裝完成的平板電腦支架

步驟 6:安裝燈具

安裝燈具:

  1. 如圖 16 所示,在頂部和底部面板上安裝擋光板。

    安裝擋光板

    圖 16. 頂部和底部面板上安裝了擋光板

  2. 如圖 17 所示,將插銷擠入矩形凸片上的小孔,凸片會穿過頂部和底部面板的插槽,即可固定擋光板。

    已插入圖釘

    圖 17. 插入針腳的 LED 支架凸片特寫 (位於盒子外側)

    輕輕按壓插針,直到感覺塑膠部分受到壓力,插針即固定到位。

    鉗子

    圖 18. 用來安裝插銷的鉗子

  3. 如圖 19 所示,以正確方向組裝前板和側板,並從外部用膠帶固定。

    燈具放置方向

    圖 19. 燈具放置方向

  4. 如圖 20 所示,將電源線接上電源燈條。

    照明電源線

    圖 20. 照明電源線

    將電源線穿過左側面板上的孔洞,電源線兩端有不同接頭:較窄的接頭連接 LED 燈條,較大的接頭連接電源變壓器。

    電源線

    圖 21. 電源線從測試裝置左側伸出

  5. 將頂部燈具接線至底部燈具,並將電線固定在左側面板上。

    燈線

    圖 22. 左側面板上的燈線固定點

步驟 7:組裝側邊面板、平板電腦支架和把手

如要使用螺絲組裝 ITS-in-a-box 側邊面板、平板電腦支架和把手,請按照下列步驟操作:

  1. 如圖 23 所示,組裝面板的所有側邊,並用膠帶黏合。

    以膠帶封好的組裝盒

    圖 23. 以膠帶黏合的 ITS-in-a-box,準備組裝

  2. 使用電鑽,根據現有孔洞鑽出導孔。請確保導引孔夠大,可容納 4-40 螺絲,以免插入螺絲時 ABS 塑膠破裂。

    鑽孔

    圖 24. 為 4-40 螺絲鑽出導孔

  3. 使用 4-40 自攻螺絲將所有面板鎖在一起。

    電鑽

    圖 25. 組裝面板用的 4-40 螺絲

  4. 收集圖 26 所示的把手零件。

    把手零件

    圖 26. 把手零件

    硬體包括四個矩形塑膠片和四個 6-32 螺絲。

  5. 如圖 27 所示組裝把手。

    組裝好的把手

    圖 27. 組裝好的把手

步驟 8:最後組裝和設定

如要完成 ITS-in-a-box 的組裝,請按照下列步驟操作:

  1. 將平板電腦支架裝在背板上,並根據平板電腦大小調整高度。

    盒子背面的平板電腦支架

    圖 28. 平板電腦裝在盒背的平板電腦支架上

  2. 如圖 29 所示,使用 4-40 螺絲將不含手機支架的方形光圈面板固定在盒子的正面。

    組裝好的前面板

    圖 29. 組裝完成的手機前面板

  3. 插入 10x10 公分鱷魚板孔徑,配合 DUT 的相機孔徑。

    鱷魚板開口

    圖 30. 已安裝 Gatorboard 光圈的 ITS-in-a-box

  4. 安裝手機時,請將鏡頭對準光圈開口。透過平板電腦開口檢查對齊情形。

    裝有一支手機的包裝盒

    圖 31. 安裝一部手機的 ITS-in-a-box

  5. 為攝影機開孔。你可以剪出一個孔洞 (測試單一手機) 或兩個孔洞 (測試兩部手機)。圖 31 顯示 Pixel 和 Pixel XL 前置和後置鏡頭的光圈。前置鏡頭沒有閃光燈或雷射,因此採用圓形光圈;後置鏡頭則採用矩形光圈,讓閃光燈和雷射能正常運作,不會受到阻擋。

    光圈範例

    圖 32. 前置和後置鏡頭的範例光圈

    裝有兩支手機的盒子

    或者,您也可以用紙板剪出光圈,然後使用麥克筆、噴漆或壓克力顏料將其塗黑,如圖 33 所示。

    圖 33. 前置和後置鏡頭的紙板光圈範例

    紙板孔徑範例

  6. 使用數位照度測試儀測試 LED 燈的照度。本範例使用 Contempo View 的 YF-1065。

    Contempo Views 的 YF-1065

    圖 34. Contempo Views 的 YF-1065

  7. 將照度計放在平板電腦側邊,並轉到 2000 lux 來測量光線。照度應介於 100 至 300 勒克斯。 如果亮度明顯低於此值,測試時畫面會太暗,可能導致測試失敗。

    照度計

    圖 35. 使用平板電腦支架從背面測量光線的照度計

  8. 根據測得的照度值,按照適當步驟操作:

    • 確認燈光亮度適中後,將前後板鎖入定位。
    • 如果燈光亮度不正確,請確認 LED 和電源供應器零件編號是否正確。

注意事項

以下列舉常見的製造錯誤,這些錯誤可能會導致測試不穩定。

  • 背板,平板電腦孔洞已穿孔。這會導致 find_circle 測試失敗,因為螺絲孔會產生額外的圓圈。

    有孔的背板

    圖 36. 背面面板,有孔洞

  • 缺少木銷。這會導致光擋在運送過程中滑出。

    缺少木栓

    圖 37. 光擋板缺少木栓

  • 非 UL 列名的電源供應器。使用 UL 認證電源供應器,可確保電源供應器不會故障。

    通過 UL 認證的電源供應器

    圖 38. UL 認證電源供應器範例