標準視野(RFoV)ボックス

標準視野(RFoV)ITS-in-a-box(リビジョン 1a)は、CAD 図面からレーザーカットされたプラスチック製の箱、チャート用タブレット、テスト対象デバイス(DUT)で構成されています。RFoV ITS-in-a-box は、FoV が 90 度未満(RFoV)のデバイスをテストするために設計されています。ITS-in-a-box は、購入することも、自分で製作することもできます。

RFOV ITS-in-a-box の rev1b バージョンは、モジュラー コンポーネントをサポートし、望遠拡張リグに対応しています。

Rev1b

図 1. 標準視野(RFoV)ITS ボックス Rev1b

変更履歴

次の表では、標準視野ボックスの変更履歴と、プロダクション ファイルの各バージョンへのダウンロード リンクを示しています。

日付 リビジョン プロダクション ファイルのダウンロード 変更ログ
2024 年 9 月 1b Rev. 1b のプロダクション ファイル
  • モジュラー システムを採用しました(モジュール型拡張機能の取り付け機構を追加しました)。
2019 年 5 月 1a Rev. 1a のプロダクション ファイル
  • 材料をデルリンから ABS に変更しました。
  • さまざまなサイズの LED バーに対応するように、ライトホルダーの設計を柔軟にしました。
  • 組み立て方法を統一しました。
  • タブレット マウントの設計を簡素化し、より堅牢にしました。
  • スマートフォン マウントの厚みを増やして、より厚みのあるスマートフォンに対応しました。
  • 前面パネルの装着オプションを増やし、折りたたみ式や凹凸のあるスマートフォン プロファイルに対応しました。

RFoV ITS-in-a-box の購入

次の認定ベンダーから RFoV ITS-in-a-box(リビジョン 1a)を購入することをおすすめします。

  • Byte Bridge Inc.
    USA: 1502 Crocker Ave, Hayward, CA 94544-7037
    China: 22F #06-08, Hongwell International Plaza Tower A, 1600 West Zhongshan Road, Xuhui, Shanghai, 200235
    www.bytebt.com
    androidpartner@bytebt.com
    USA: +1-510-373-8899
    China: +86-400-8866-490

  • JFT CO LTD 捷富通科技有限公司(旧社名: MYWAY DESIGN)
    No. 40, Lane 22, Heai Road, Wujing Town, Minhang District, Shanghai, China
    4F., No. 163, Fu-Ying Road, XinZhuang District, New Taipei City 242, Taiwan
    www.jftcoltd.com
    service@jfttec.com or its.sales@jfttec.com
    China: +86-021-64909136
    Taiwan: 886-2-29089060

動画チュートリアル

これは、RFoV ITS-in-a-box のセットアップ方法を紹介する動画チュートリアルです。

RFoV ITS-in-a-box の製作

RFoV ITS-in-a-box は、購入する代わりに、自分で製作できます。このセクションでは、組み立ての詳細な手順を説明します。

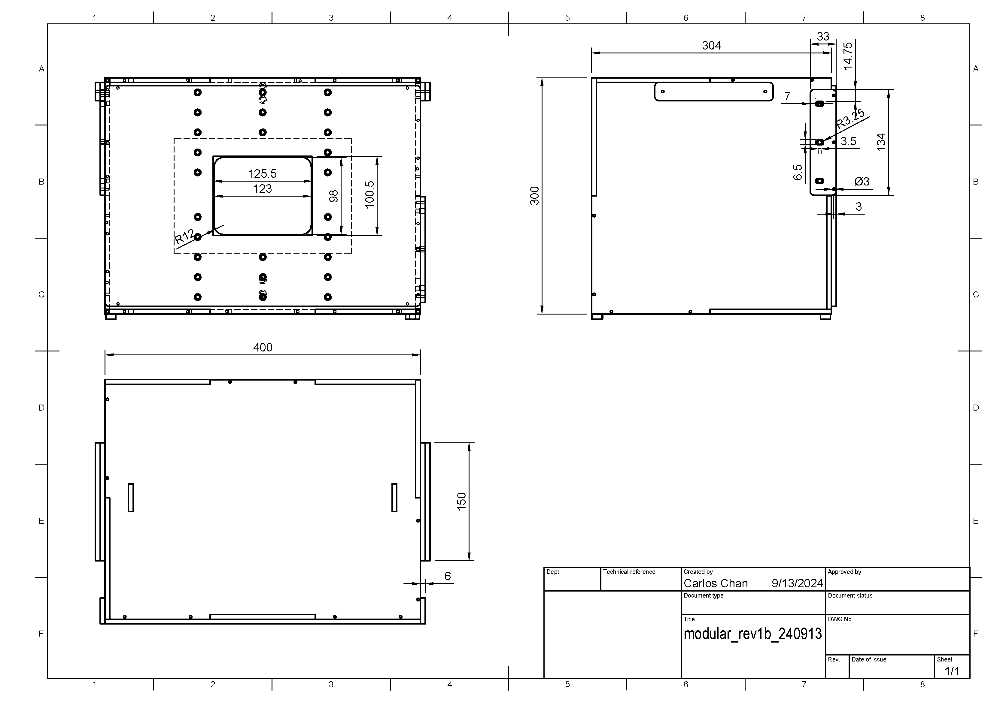
機械製図

ITS-in-a-box は、DUT、チャート タブレット、内部照明システム、CAD 図面(図 1)からレーザーカットされたプラスチック製の箱で構成されています。

まず、最新のプロダクション ファイルをダウンロードします。

ITS-in-a-box 機械製図

図 2. ITS-in-a-box の機械製図

部品表(BOM)から部品を購入します。プラスチックとビニールの部品を切断します。

必要な工具

次の工具を用意します。

  • トルクス ドライバ
  • 電動ドリル
  • ABS 接着剤
  • ラジオペンチ
  • カッターナイフ
  • ワイヤー カッターまたははさみ(任意)

ステップ 1: ビニールを貼り付け、足を接着する

アクリロニトリル ブタジエン スチレン(ABS)の滑らかな面に色付きのビニールを貼り付け、図 3 と図 4 のように必要な開口部を切り取ります。箱のタブレット側にある大きい長方形の開口部には、白いビニールを貼り付けます。箱のモバイル デバイス側にある円形の開口部には、黒いビニールを貼り付けます。図 4 のようにサイドパネルに灰色のビニールを貼り付け、図 5 のように底部パネルの四隅に足を接着します。詳細については、wikiHow をご覧ください。

前面パネルと背面パネルのビニール

図 3. 前面パネルの黒いビニール(左)、背面パネルの白いビニール(右)

サイドパネル

図 4. サイドパネルの灰色のビニール

底部パネル

図 5. 底部パネルの四隅の足

ステップ 2: 照明

ITS-in-a-box の照明コンポーネントは、以下のようにして組み立てます。

  1. 図 6 の照明ハードウェアを準備します。

    照明の組み立て部品

    図 6. 照明の組み立て部品

    準備する部品は、LED ライトバー、プラスチック製ライトバッフル、プラスチック製ライトマウント、LED 照明キットに入っているプラスチック製または金属製のライトクリップ、および 4 組の 6-32 ねじと袋ナットです。

  2. 図 7 のように、ライトクリップをプラスチック製のバッフルにボルトで固定します。 バッフルの反対側に袋ナットでクリップを固定します。

    ライトバッフル

    図 7. ライトクリップを取り付けたプラスチック製バッフル

  3. 照明を組み立てるには、ライトクリップを使ってプラスチック製バッフルを LED ライトバーの背面に取り付けます。

    ライトバー

    図 8. ライトバー(ライトが下向き、ねじがクリップを貫通)

照明コンポーネントを組み立てるとき、LED ライトバーは下向きにし、プラスチック製バッフルは LED ライトバーの背面にある光沢のある反射面を覆うようにしてください。

ステップ 3: スマートフォン マウント

スマートフォン マウントは、以下のようにして組み立てます。

  1. 図 9 の必要な部品を準備します。

    スマートフォン マウントの部品

    図 9. スマートフォン マウントの部品

    準備する部品は、2 つの金属製スマートフォン マウント、2 つのプランジャー、2 つのゴム製キャップ、4 組の 8-32 なべ小ねじとナットです。

  2. プランジャーの動き(約半分)を妨げないようにゴム製キャップを切断し、プランジャーの先端にかぶせます。

    プランジャー

    図 10. ゴミ製キャップを取り付けたプランジャー

  3. なべ小ねじでスマートフォン マウントを組み立て、プランジャー機構を金属製マウントに取り付けます。ねじが対応するナットで締め付けられていることを確認します。

    組み立て済みのスマートフォン マウント

    図 11. 組み立て済みのスマートフォン マウント

ステップ 4: 絞りプレート

前面の絞りプレートは、以下のようにして組み立てます。

  1. 図 12 の前面絞りプレートの金具を準備します。

    前面絞りプレートの部品

    図 12. 前面絞りプレートの組み立て部品

    準備する部品は、組み立てたスマートフォン マウント、スマートフォン マウントパネル、4 本の短いナイロンねじ、4 個のナイロンナット(ねじがプラスチック製プレートの背面から突き出るのを防ぐために必要)です。

  2. ねじとナットで、組み立てたスマートフォン マウントをスマートフォン マウント パネルに固定します。スマートフォン マウントが図 13 に示す正しい向きになっていることを確認します。

    組み立て済みの前面絞りプレート

    図 13. 組み立て済みの前面絞りプレート

ステップ 5: タブレット マウント

タブレット マウントは、次のようにして組み立てます。

  1. 図 14 のタブレット マウントの組み立て部品を用意します。

    タブレット マウントの部品

    図 14. タブレット マウント スペースの組み立て部品

    準備する部品は、背面パネル、タブレット マウント、1 個のプランジャー、1 個のゴム製キャップ、2 本の 8-32 なべ小ねじ、2 本の短いナイロンねじ、対応するナットです。

  2. なべ小ねじでタブレット マウントを組み立て、プランジャー機構を金属マウントに取り付けます。ねじが対応するナットで締め付けられていることを確認します。

  3. ねじとナットで、組み立てたタブレット マウントを背面パネルに固定します。スマートフォン マウントが図 15 に示す正しい向きになっていることを確認します。

    組み立て済みのタブレット マウント

    図 15. 組み立て済みのタブレット マウント

ステップ 6: ライトを取り付ける

ライトの取り付けは、以下のようにして行います。

  1. 図 16 のように、上部パネルと底部パネルにライトバッフルを取り付けます。

    取り付け済みのライトバッフル

    図 16. 上部パネルを取り付け済みのライトバッフルと底部パネルを取り付け済みのライトバッフル

  2. 図 17 のように、上部パネルと底部パネルのスロットを通る長方形のタブの小さな穴にピンを押し込み、ライトバッフルを固定します。

    挿入されたピン

    図 17. 箱の外面上の LED マウントタブに挿入されたピンの接写画像

    ピンをしっかり取り付けるために、ピンが正しい位置に取り付けられてプラスチックへの圧力が感じられるまで、徐々に押し込みます。

    ペンチ

    図 18. ピンの取り付けにペンチを使用

  3. 前面パネルと側面パネルを図 19 に示す正しい向きで組み合わせ、外側からテープで固定します。

    ライトの向き

    図 19. ライトの向き

  4. 図 20 のように、電源コードを電源ライトバーに接続します。

    照明用電源コード

    図 20. 照明用電源コード

    電源コードを左パネルの穴に通します。電源コードの両端には異なるコネクタが使われています。小さい方のコネクタは LED ライトバーに接続し、大きい方のコネクタは電源アダプターに接続します。

    電源コード

    図 21. テスト装置の左側に出ている電源コード

  5. 上のライトを下のライトに配線し、左パネルにケーブルを固定します。

    ライトの配線

    図 22. 左パネルに固定されたライトの配線

ステップ 7: サイドパネル、タブレット マウント、ハンドルを組み合わせる

次のようにして、ITS-in-a-box のサイドパネル、タブレット マウント、ハンドルをねじで組み合わせます。

  1. 図 23 のように、すべての側面のパネルを組み合わせて、テープで固定します。

    テープで組み立てたボックス

    図 23. テープで組み立てた ITS-in-a-box

  2. 電動ドリルで、既存の穴に基づいて下穴を作ります。 ねじを差し込むときに ABS 樹脂に亀裂が入らないように、4-40 ねじに十分な大きさの下穴を作ってください。

    ねじ穴をあける

    図 24. 4-40 ねじ用の下穴をあける

  3. すべてのパネルを 4-40 のタッピングねじでねじ留めします。

    電動ドリル

    図 25. パネル組み立て用の 4-40 ねじ

  4. 図 26 のハンドル部品を用意します。

    ハンドル部品

    図 26. ハンドル部品

    用意する部品は、4 個の長方形のプラスチック製部品と 4 本の 6-32 ねじです。

  5. 図 27 のように、ハンドルを組み立てます。

    組み立て済みのハンドル

    図 27. 組み立て済みのハンドル

ステップ 8: 最終組み立てとセットアップ

次のようにして、ITS-in-a-box の最終組み立てを行います。

  1. タブレット マウントを背面パネルに取り付け、タブレットのサイズに合わせて高さを調整します。

    箱の背面に取り付けたタブレット マウント

    図 28. 箱の背面のタブレット マウントに装着したタブレット

  2. 図 29 のように、正方形の絞りパネルをスマートフォン マウントを使わず箱の前面に 4-40 ねじで固定します。

    組み立て済みの前面パネル

    図 29. 組み立て済みの前面スマートフォン パネル

  3. DUT のカメラの絞りに合わせて、10×10 cm のゲーターボードの絞りを挿入します。

    ゲーターボードの絞り

    図 30. ゲーターボードの絞りを装着した ITS-in-a-box

  4. カメラを絞りの開口部に合わせて、スマートフォンを取り付けます。タブレットの開口部を通して位置合わせを確認します。

    ボックスとスマートフォン 1 台

    図 31. 1 台のスマートフォンを装着した ITS-in-a-box

  5. カメラ用に絞りの穴をあけます。1 台のスマートフォンをテストする場合は 1 つの絞りを切りあけ、2 台のスマートフォンをテストする場合は 2 つの絞りを切りあけます。Pixel と Pixel XL の前面カメラと背面カメラ用の絞りを図 31 に示します。前面カメラにはフラッシュやレーザーがないため円形の絞りがあり、背面カメラにはフラッシュやレーザーを遮らないように長方形の絞りがあります。

    絞りの例

    図 32. 前面カメラと背面カメラの両方の絞りのサンプル

    2 台のスマートフォンを装着したボックス

    または、図 33 に示すように、ボール紙に絞り用の穴を開け、マーカー、スプレー、またはアクリル塗料で黒く塗りつぶすこともできます。

    図 33. ボール紙で作った前面カメラ・背面カメラ両方の絞りのサンプル

    ボール紙で作った絞りのサンプル

  6. デジタル照度テスタを使用して、LED ライトの照度をテストします。この例では、Contempo View の YF-1065 を使用しています。

    YF-1065(Contempo Views)

    図 34. YF-1065(Contempo Views)

  7. 照度計をタブレット側に置き、測定する照度を 2,000 ルクスに設定します。ルクスレベルは 100~300 ルクス程度にしてください。 あまり低いと暗すぎてテストに失敗する可能性があります。

    照度計

    図 35. 背面からの光を測定する照度計とタブレット マウント

  8. 計測されたルクス値に応じて次の手順を実行します。

    • 照度が正しいレベルの場合は、前面プレートと背面プレートをねじで固定します。
    • 照度が正しいレベルでない場合は、LED と電源装置の部品番号が正しいことを確認します。

注意点

テストを不安定にする一般的な製造不良の例を次に示します。

  • 背面パネルのタブレット穴が貫通している。ねじ穴によって余計な円ができるため、find_circle テストで失敗します。

    穴があいた背面パネル

    図 36. 穴が貫通している背面パネル

  • ダボがない。配送中にライトバッフルが滑り落ちます。

    ダボがない

    図 37. ライトバッフルにダボがない

  • UL リステッド電源でない。UL リステッド電源の使用により、電源が破損しないことを保証します。

    UL リステッド電源

    図 38. UL リステッド電源の例