รับกล่องที่มีมุมมองปกติ (RFoV)

ITS-in-a-box (ฉบับแก้ไข 1a) ที่มีมุมมองปกติ (RFoV) ประกอบด้วย กล่องพลาสติกที่ตัดด้วยเลเซอร์จากภาพวาดการออกแบบโดยใช้คอมพิวเตอร์ช่วย (CAD), ชาร์ต แท็บเล็ต และอุปกรณ์ภายใต้การทดสอบ (DUT) ITS-in-a-box สำหรับ RFoV ออกแบบมาเพื่อทดสอบ อุปกรณ์ที่มี FoV น้อยกว่า 90 องศา (RFoV) คุณจะซื้อ ITS-in-a-box หรือสร้างเองก็ได้

RFOV ITS-in-a-box เวอร์ชัน rev1b เพิ่มการรองรับคอมโพเนนต์แบบโมดูลาร์และ ใช้ร่วมกับแท่นขยายสำหรับกล้องโทรทัศน์ได้

Rev1b

รูปที่ 1 กล่อง ITS ที่มีมุมมองปกติ (RFoV) รุ่น Rev1b

ประวัติการแก้ไข

ตารางต่อไปนี้อธิบายประวัติการแก้ไขของกล่องฟิลด์ปกติของมุมมอง และมีลิงก์ดาวน์โหลดไปยังไฟล์เวอร์ชันต่างๆ ของเวอร์ชันที่ใช้งานจริง

วัน การแก้ไข การดาวน์โหลดไฟล์เวอร์ชันที่ใช้งานจริง บันทึกการเปลี่ยนแปลง
กันยายน 2024 1b ไฟล์การผลิต Rev. 1b
  • ใช้ระบบโมดูลาร์ (เพิ่มกลไกการติดตั้งสำหรับส่วนขยายแบบโมดูลาร์)
พฤษภาคม 2019 1ก ไฟล์การผลิต Rev. 1a
  • เปลี่ยนวัสดุจาก Delrin เป็น ABS
  • ปรับเปลี่ยนการออกแบบที่ยึดไฟให้มีความยืดหยุ่นมากขึ้นและรองรับ แถบไฟ LED ขนาดต่างๆ
  • รวมวิธีการก่อสร้าง
  • ปรับดีไซน์ที่ยึดแท็บเล็ตให้เรียบง่ายขึ้นและแข็งแรงทนทานมากขึ้น
  • เพิ่มความลึกของที่ยึดโทรศัพท์เพื่อรองรับโทรศัพท์ที่หนาขึ้น
  • เพิ่มตัวเลือกการติดตั้งที่แผงด้านหน้าเพื่อรองรับการติดตั้ง สำหรับโปรไฟล์โทรศัพท์แบบพับได้และโทรศัพท์ที่ทนทาน

ซื้อ RFoV ITS-in-a-box

เราขอแนะนำให้ซื้อ RFoV ITS-in-a-box (ฉบับแก้ไข 1a) จากผู้ให้บริการที่มีคุณสมบัติตามเกณฑ์รายใดรายหนึ่งต่อไปนี้

  • Byte Bridge Inc.
    USA: 1502 Crocker Ave, Hayward, CA 94544-7037
    China: 22F #06-08, Hongwell International Plaza Tower A, 1600 West Zhongshan Road, Xuhui, Shanghai, 200235
    www.bytebt.com
    androidpartner@bytebt.com
    USA: +1-510-373-8899
    China: +86-400-8866-490

  • JFT CO LTD 捷富通科技有限公司 (เดิมชื่อ MYWAY DESIGN)
    No. 40, Lane 22, Heai Road, Wujing Town, Minhang District, Shanghai, China
    4F., No. 163, Fu-Ying Road, XinZhuang District, New Taipei City 242, Taiwan
    www.jftcoltd.com
    service@jfttec.com หรือ its.sales@jfttec.com
    จีน:+86-021-64909136
    ไต้หวัน: 886-2-29089060

วิดีโอแนะนำ

นี่คือวิดีโอสอนวิธีตั้งค่า RFoV ITS-in-a-box

สร้าง RFoV ITS-in-a-box

คุณอาจสร้าง RFoV ITS-in-a-box ของคุณเองแทนที่จะซื้อ ส่วนนี้ จะให้วิธีการประกอบอย่างละเอียด

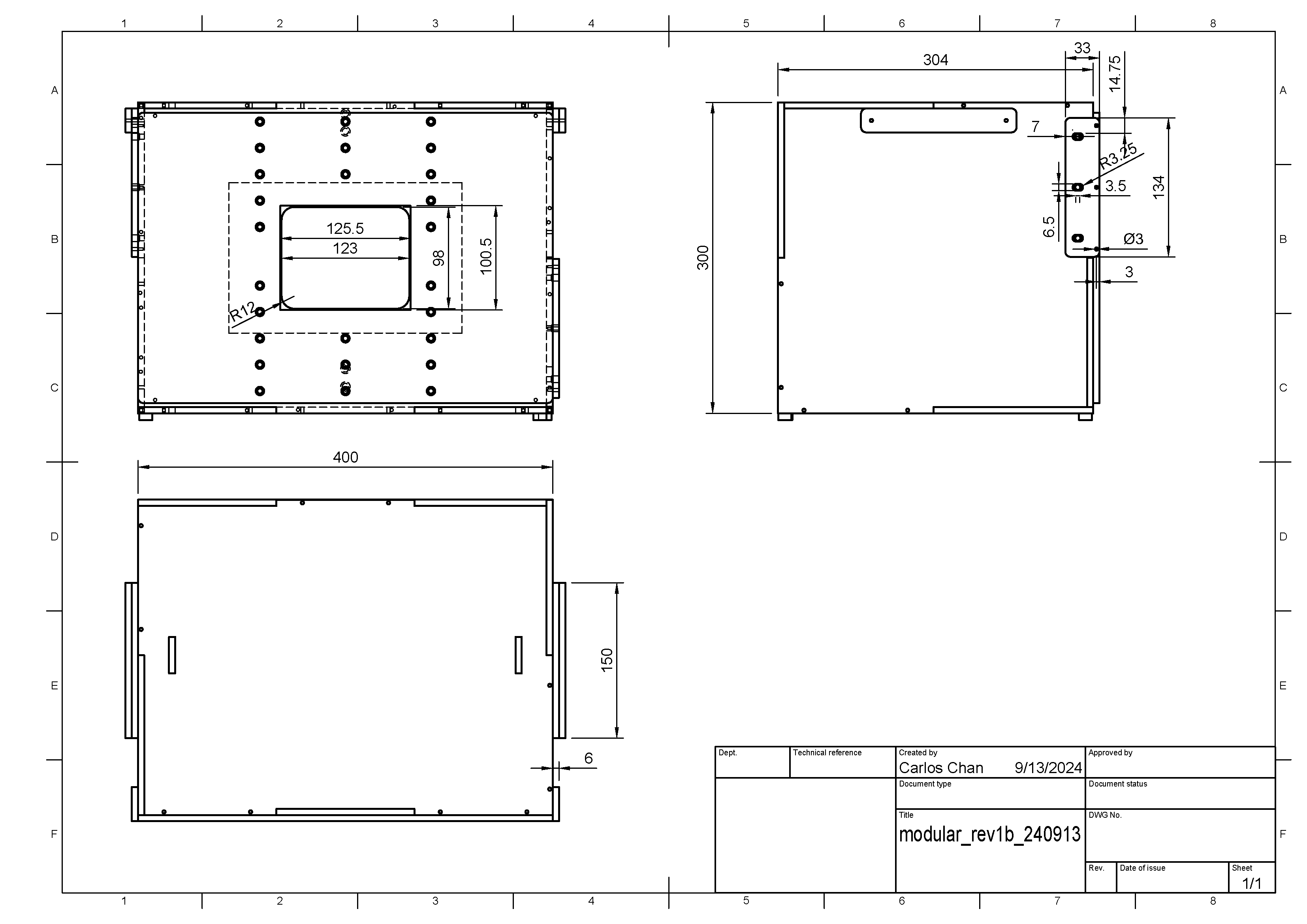
ภาพวาดทางกล

ITS-in-a-box ประกอบด้วย DUT, ชาร์ตแท็บเล็ต, ระบบไฟส่องสว่างภายใน และกล่องพลาสติกที่ตัดด้วยเลเซอร์จากภาพวาด CAD (แสดงในรูปที่ 1)

ดาวน์โหลดไฟล์เวอร์ชันล่าสุดเพื่อเริ่มใช้งาน

ภาพวาดกลไกของ ITS-in-a-box

รูปที่ 2 ภาพวาดทางกลของ ITS-in-a-box

ซื้อฮาร์ดแวร์จากรายการวัสดุ (BOM) ตัดชิ้นส่วนพลาสติกและ ไวนิล

เครื่องมือที่จำเป็น

เตรียมเครื่องมือต่อไปนี้ให้พร้อม

  • ไขควงหัว Torx
  • สว่านไฟฟ้า
  • กาว ABS
  • คีมปากแหลม
  • มีด X-ACTO
  • คีมตัดลวดหรือกรรไกร (ไม่บังคับ)

ขั้นตอนที่ 1: ติดไวนิลและติดกาวที่เท้า

ติดไวนิลสีที่ด้านเรียบของอะคริโลไนไตรล์ บิวทาไดอีน สไตรีน (ABS) และตัดช่องเปิดที่จำเป็นตามที่แสดงในรูปที่ 3 และ 4 ติด สติกเกอร์ไวนิลสีขาวที่มีช่องสี่เหลี่ยมผืนผ้าขนาดใหญ่ที่ด้านแท็บเล็ตของกล่อง และ สติกเกอร์ไวนิลสีดำที่มีช่องกลมที่ด้านอุปกรณ์เคลื่อนที่ของกล่อง ติดแผ่นไวนิลสีเทาที่แผงด้านข้างตามที่แสดงในรูปที่ 4 และติดตีนยางที่มุมทั้ง 4 ของแผงด้านล่างตามที่แสดงในรูปที่ 5 ดูข้อมูลเพิ่มเติมได้ที่ wikiHow

ไวนิลที่แผงด้านหน้าและด้านหลัง

รูปที่ 3 ไวนิลสีดำบนแผงด้านหน้า (ซ้าย) และไวนิลสีขาวบนแผงด้านหลัง (ขวา)

แผงด้านข้าง

รูปที่ 4 ไวนิลสีเทาที่แผงด้านข้าง

แผงด้านล่าง

รูปที่ 5 ตีนยางที่มุมทั้ง 4 ของแผงด้านล่าง

ขั้นตอนที่ 2: แสง

วิธีประกอบชิ้นส่วนไฟส่องสว่างของ ITS-in-a-box

  1. รวบรวมฮาร์ดแวร์ไฟส่องสว่างตามที่แสดงในรูปที่ 6

    ชิ้นส่วนประกอบไฟ

    รูปที่ 6 ชิ้นส่วนประกอบไฟ

    ฮาร์ดแวร์ประกอบด้วยแถบไฟ LED, แผ่นกั้นแสงพลาสติก, ตัวยึดไฟพลาสติก คลิปไฟพลาสติกหรือโลหะที่รวมอยู่ในชุดไฟ LED และ สกรู 6-32 จำนวน 4 ตัวพร้อมน็อตหัวกลม

  2. ขันคลิปไฟเข้ากับแผ่นกั้นพลาสติกตามที่แสดงในรูปที่ 7 ยึดคลิปโดยใช้น็อตหัวกลมที่อีกด้านของแผ่นกั้น

    แผ่นกั้นแสง

    รูปที่ 7 แผ่นกั้นพลาสติกที่มีคลิปยึดไฟติดอยู่

  3. หากต้องการประกอบไฟ ให้ติดแผ่นกั้นพลาสติกที่ด้านหลังของแถบไฟ LED โดยใช้คลิปไฟ

    แถบไฟ

    รูปที่ 8 แถบไฟโดยให้ไฟหันลงและขันสกรู ผ่านคลิป

เมื่อประกอบชิ้นส่วนไฟแล้ว แถบไฟ LED ควรหันลง และแผ่นกั้นพลาสติกควรปิดพื้นผิวที่มันวาวและสะท้อนแสงที่ด้านหลังของแถบไฟ LED

ขั้นตอนที่ 3: ที่ยึดโทรศัพท์

วิธีประกอบที่ยึดโทรศัพท์

  1. รวบรวมรายการที่จำเป็นตามที่แสดงในรูปที่ 9

    รายการอุปกรณ์ยึดโทรศัพท์

    รูปที่ 9 รายการอุปกรณ์ยึดโทรศัพท์

    ฮาร์ดแวร์ประกอบด้วยที่ยึดโทรศัพท์โลหะ 2 อัน ลูกสูบ 2 อัน หัวยาง 2 อัน สกรูหัวกลม 8-32 จำนวน 4 ตัว และน็อตที่เกี่ยวข้อง

  2. ตัดปลายยางให้สั้นพอที่จะไม่รบกวนการทำงานของลูกสูบ (ประมาณครึ่งหนึ่ง) จากนั้นใส่ปลายยางเพื่อปิดปลาย ของลูกสูบ

    ไม้ดูดส้วม

    รูปที่ 10 ที่ปั๊มท่อที่มีปลายยาง

  3. ประกอบที่ยึดโทรศัพท์โดยใช้สกรูหัวกลมเพื่อยึดกลไก ลูกสูบเข้ากับที่ยึดโลหะ ขันสกรูให้แน่นด้วยน็อตที่เกี่ยวข้อง

    ตัวยึดโทรศัพท์ที่ประกอบแล้ว

    รูปที่ 11 ตัวยึดโทรศัพท์ที่ประกอบแล้ว

ขั้นตอนที่ 4: เพลตรูรับแสง

วิธีประกอบเพลตช่องรับแสงด้านหน้า

  1. รวบรวมฮาร์ดแวร์เพลตช่องรับแสงด้านหน้าตามที่แสดงในรูปที่ 12

    ชิ้นส่วนเพลตช่องรับแสงด้านหน้า

    รูปที่ 12 ชิ้นส่วนประกอบเพลตช่องรับแสงด้านหน้า

    ฮาร์ดแวร์ประกอบด้วยที่ยึดโทรศัพท์ที่ประกอบแล้ว แผงที่ยึดโทรศัพท์ สกรูไนลอนสั้น 4 ตัว และน็อตไนลอน 4 ตัว (จำเป็นเพื่อไม่ให้สกรูยื่นออกมาจากด้านหลังของแผ่นพลาสติก)

  2. ใช้สกรูและน็อตยึดที่ยึดโทรศัพท์ที่ประกอบแล้วเข้ากับ แผงยึดโทรศัพท์ ตรวจสอบว่าที่ยึดโทรศัพท์อยู่ใน แนวนอนที่ถูกต้องตามที่แสดงในรูปที่ 13

    แผ่นรูรับแสงด้านหน้าที่ประกอบแล้ว

    รูปที่ 13 แผ่นรูรับแสงด้านหน้าที่ประกอบแล้ว

ขั้นตอนที่ 5: แท่นยึดแท็บเล็ต

วิธีประกอบตัวยึดโต๊ะ

  1. รวบรวมฮาร์ดแวร์สำหรับประกอบที่ยึดแท็บเล็ตตามที่แสดงในรูปที่ 14

    ชิ้นส่วนที่ยึดแท็บเล็ต

    รูปที่ 14 ชิ้นส่วนประกอบพื้นที่ติดตั้งแท็บเล็ต

    ฮาร์ดแวร์ประกอบด้วยแผงด้านหลัง แท่นยึดแท็บเล็ต ลูกสูบ 1 อัน หัวยาง 1 อัน สกรูหัวกลม 8-32 จำนวน 2 ตัว สกรูไนลอนสั้น 2 ตัว และน็อตที่เกี่ยวข้อง

  2. ประกอบที่ยึดแท็บเล็ตโดยใช้สกรูหัวกลมเพื่อยึดกลไก ลูกสูบเข้ากับที่ยึดโลหะ ขันสกรูให้แน่นด้วยน็อตที่เกี่ยวข้อง

  3. ใช้สกรูและน็อตเพื่อยึดที่ยึดแท็บเล็ตที่ประกอบแล้วเข้ากับแผงด้านหลัง ตรวจสอบว่าที่ยึดโทรศัพท์อยู่ในแนวที่ถูกต้องตามที่แสดงในรูปที่ 15

    ที่ยึดแท็บเล็ตที่ประกอบแล้ว

    รูปที่ 15 ที่ยึดแท็บเล็ตที่ประกอบแล้ว

ขั้นตอนที่ 6: ติดตั้งไฟ

วิธีติดตั้งไฟ

  1. ติดตั้งแผ่นกั้นแสงที่แผงด้านบนและด้านล่างตามที่แสดงใน รูปที่ 16

    ติดตั้งแผ่นกั้นแสง

    รูปที่ 16 แผ่นกั้นแสงที่ติดตั้งบนแผงด้านบนและด้านล่าง

  2. ยึดแผ่นกั้นแสงโดยบีบหมุดเข้าไปในรูเล็กๆ บน แถบสี่เหลี่ยมที่ยื่นผ่านช่องในแผงด้านบนและด้านล่าง ตามรูปที่ 17

    หมุดที่แทรก

    รูปที่ 17 ภาพระยะใกล้ของหมุดที่เสียบในแท็บยึด LED ที่ด้านนอกของกล่อง

    หากต้องการยึดหมุด ให้บีบหมุดเบาๆ จนรู้สึกว่ามีแรงกดบนพลาสติกขณะที่หมุดยึดเข้าที่

    คีม

    รูปที่ 18 คีมที่ใช้ติดตั้งหมุด

  3. ประกอบแผงด้านหน้าและด้านข้างในทิศทางที่ถูกต้องตามที่แสดงในรูปที่ 19 และติดเทปเข้าด้วยกันจากภายนอก

    การวางแนวตำแหน่งไฟ

    รูปที่ 19 การวางแนวตำแหน่งไฟ

  4. ต่อสายไฟเข้ากับแถบไฟแสดงสถานะการจ่ายไฟตามที่แสดงในรูปที่ 20

    สายไฟของหลอดไฟ

    รูปที่ 20 สายไฟของหลอดไฟ

    ร้อยสายไฟผ่านรูบนแผงด้านซ้าย สายไฟ มีขั้วต่อที่แตกต่างกันในแต่ละด้าน โดยขั้วต่อที่แคบกว่าจะต่อกับ แถบไฟ LED และขั้วต่อที่ใหญ่กว่าจะต่อกับอะแดปเตอร์

    สายไฟ

    รูปที่ 21 สายไฟที่ออกจากแท่นทดสอบทางด้านซ้าย

  5. ต่อสายไฟของไฟด้านบนเข้ากับไฟด้านล่างและยึดสายเคเบิลไว้ที่ แผงด้านซ้าย

    สายไฟ

    รูปที่ 22 ยึดสายไฟไว้ที่แผงด้านซ้าย

ขั้นตอนที่ 7: ประกอบแผงด้านข้าง ที่ยึดแท็บเล็ต และที่จับ

วิธีประกอบแผงด้านข้างของ ITS-in-a-box, ตัวยึดแท็บเล็ต และที่จับด้วย สกรู

  1. ประกอบแผงทุกด้านและติดเทปเข้าด้วยกันตามที่แสดงในรูปที่ 23

    กล่องที่ติดเทปเพื่อประกอบ

    รูปที่ 23 ITS-in-a-box ที่ติดเทปไว้ด้วยกันเพื่อประกอบ

  2. ใช้สว่านไฟฟ้าเพื่อเจาะรูนำตามรูที่มีอยู่ ตรวจสอบว่ารูนำมีขนาดใหญ่พอสำหรับสกรู 4-40 เพื่อไม่ให้พลาสติก ABS แตกเมื่อใส่สกรู

    การเจาะรู

    รูปที่ 24 การเจาะรูนำร่องสำหรับสกรู 4-40

  3. ขันสกรูแผงทั้งหมดเข้าด้วยกันโดยใช้สกรูเกลียวปล่อยขนาด 4-40

    สว่านไฟฟ้า

    รูปที่ 25 สกรู 4-40 สำหรับประกอบแผง

  4. รวบรวมชิ้นส่วนของแฮนเดิลที่แสดงในรูปที่ 26

    แฮนเดิล

    รูปที่ 26 แฮนเดิล

    ฮาร์ดแวร์ประกอบด้วยชิ้นส่วนพลาสติกสี่เหลี่ยมผืนผ้า 4 ชิ้นและสกรู 6-32 จำนวน 4 ตัว

  5. ประกอบด้ามจับตามที่แสดงในรูปที่ 27

    แฮนเดิลที่ประกอบแล้ว

    รูปที่ 27 แฮนเดิลที่ประกอบแล้ว

ขั้นตอนที่ 8: การประกอบและการตั้งค่าขั้นสุดท้าย

วิธีประกอบ ITS-in-a-box ขั้นสุดท้าย

  1. ติดที่ยึดแท็บเล็ตเข้ากับแผงด้านหลังและปรับความสูง ตามขนาดแท็บเล็ต

    ที่ยึดแท็บเล็ตที่ด้านหลังของกล่อง

    รูปที่ 28 แท็บเล็ตในแท่นยึดแท็บเล็ตที่ด้านหลังของกล่อง

  2. ติดแผงรูรับแสงสี่เหลี่ยมโดยไม่มีที่ยึดโทรศัพท์ที่ด้านหน้าของ กล่องด้วยสกรู 4-40 ดังที่แสดงในรูปที่ 29

    แผงด้านหน้าประกอบ

    รูปที่ 29 แผงด้านหน้าของโทรศัพท์ที่ประกอบแล้ว

  3. ใส่รูรับแสงของแผ่นโฟมขนาด 10x10 ซม. เพื่อให้พอดีกับรูรับแสงของกล้อง DUT

    รูรับแสงของแผ่นโฟม

    รูปที่ 30 ITS-in-a-box ที่ติดตั้งรูรับแสงของแผ่นโฟม

  4. ติดตั้งโทรศัพท์โดยจัดกล้องให้ตรงกับช่องรับแสง ตรวจสอบ การจัดแนวผ่านช่องเปิดของแท็บเล็ต

    กล่องที่มีโทรศัพท์ 1 เครื่อง

    รูปที่ 31 ITS-in-a-box ที่ติดตั้งโทรศัพท์ 1 เครื่อง

  5. ตัดช่องรับแสงสำหรับกล้อง คุณสามารถตัดช่องรับแสง 1 ช่อง (สำหรับทดสอบโทรศัพท์ 1 เครื่อง) หรือ 2 ช่อง (สำหรับทดสอบโทรศัพท์ 2 เครื่อง) รูรับแสงของกล้องหน้าและกล้องหลังของ Pixel และ Pixel XL แสดงอยู่ใน รูปที่ 31 กล้องหน้ามีรูรับแสงเป็นวงกลมเนื่องจากไม่มีแฟลชหรือเลเซอร์ ส่วนกล้องหลังมีรูรับแสงเป็นสี่เหลี่ยมผืนผ้าที่ช่วยให้แฟลชและเลเซอร์ทำงานได้โดยไม่ถูกบดบัง

    รูรับแสงตัวอย่าง

    รูปที่ 32 ตัวอย่างรูรับแสงสำหรับทั้งกล้องหน้าและกล้องหลัง

    กล่องที่มีโทรศัพท์ 2 เครื่อง

    หรือจะตัดรูรับแสงออกจากกระดาษแข็งและทาสีดำโดยใช้ปากกา สเปรย์สี หรืออะคริลิกก็ได้ ดังแสดงในรูปที่ 33

    รูปที่ 33 ตัวอย่างรูรับแสงจากกระดาษแข็งสำหรับกล้องหน้าและกล้องหลัง

    ช่องรับแสงของ Cardboard ตัวอย่าง

  6. ทดสอบลักซ์ของไฟ LED โดยใช้เครื่องทดสอบลักซ์แบบดิจิทัล ตัวอย่างนี้ใช้ YF-1065 ของ Contempo View

    YF-1065 โดย Contempo Views

    รูปที่ 34 YF-1065 โดย Contempo Views

  7. วางเครื่องวัดแสงไว้ที่ด้านแท็บเล็ตและหมุนไปที่ 2000 ลักซ์เพื่อ วัดแสง ระดับลักซ์ควรอยู่ที่ประมาณ 100-300 ลักซ์ หากต่ำกว่านี้มากเกินไปจะสว่างไม่พอสำหรับการทดสอบและอาจทำให้การทดสอบ ล้มเหลว

    เครื่องวัดความสว่าง

    รูปที่ 35 เครื่องวัดความสว่างที่วัดแสงจากด้านหลังพร้อมแท่นยึดแท็บเล็ต

  8. ทำตามขั้นตอนที่เหมาะสมโดยขึ้นอยู่กับค่าลักซ์ที่วัดได้

    • หากแสงสว่างอยู่ในระดับที่ถูกต้อง ให้ขันเพลตด้านหน้าและด้านหลังเข้าที่
    • หากไฟสว่างไม่ถูกต้อง ให้ตรวจสอบว่าหมายเลขชิ้นส่วนของ LED และแหล่งจ่ายไฟถูกต้อง

สิ่งที่ควรระวัง

ต่อไปนี้คือตัวอย่างข้อผิดพลาดในการผลิตที่พบบ่อยซึ่งอาจทำให้การทดสอบไม่เสถียร

  • แผงด้านหลังที่มีรูสำหรับแท็บเล็ต ซึ่งทำให้การทดสอบfind_circle ล้มเหลวเนื่องจากวงกลมเพิ่มเติมที่เกิดจาก รูสกรู

    แผงด้านหลังที่มีรู

    รูปที่ 36 แผงด้านหลังที่มีรู

  • เดือยหาย ซึ่งทำให้แผ่นกั้นแสงหลุดออกมาระหว่าง การจัดส่ง

    ไม่มีเดือย

    รูปที่ 37 ไม่มีเดือยบนแผ่นกั้นแสง

  • แหล่งจ่ายไฟที่ไม่ได้อยู่ในรายการ UL การใช้แหล่งจ่ายไฟที่ได้รับการรับรองจาก UL จะช่วยให้มั่นใจได้ว่าแหล่งจ่ายไฟจะไม่เสีย

    แหล่งจ่ายไฟที่ได้รับการรับรองจาก UL

    รูปที่ 38 ตัวอย่างแหล่งจ่ายไฟที่ได้รับการรับรองจาก UL