Mendapatkan kotak bidang pandang reguler (RFoV)

ITS-in-a-box (revisi 1a) dengan sudut pandang reguler (RFoV) terdiri dari kotak plastik yang dipotong laser dari gambar desain berbantuan komputer (CAD), tablet bagan, dan perangkat yang sedang diuji (DUT). ITS-in-a-box RFoV dirancang untuk menguji perangkat dengan FoV kurang dari 90 derajat (RFoV). Anda dapat membeli ITS-in-a-box atau membuatnya sendiri.

Versi rev1b RFOV ITS-in-a-box menambahkan dukungan untuk komponen modular dan kompatibel dengan rangkaian ekstensi tele.

Rev1b

Gambar 1. Kotak ITS dengan sudut pandang reguler (RFoV) Rev1b

Histori revisi

Tabel berikut menjelaskan histori revisi kotak bidang pandang reguler dan menyertakan link download ke setiap versi file produksi.

Tanggal Revisi Download file produksi Log perubahan
September 2024 1b File produksi Rev. 1b
  • Mengadopsi sistem modular (menambahkan mekanisme pemasangan untuk ekstensi modular).
Mei 2019 1a File produksi Rev. 1a
  • Mengubah bahan dari Delrin menjadi ABS.
  • Mengubah desain dudukan lampu agar lebih fleksibel dan dapat menangani berbagai ukuran batang LED.
  • Menyatukan metode konstruksi.
  • Menyederhanakan desain dudukan tablet dan membuatnya lebih kuat.
  • Meningkatkan kedalaman dudukan ponsel untuk menangani ponsel yang lebih tebal.
  • Menambah opsi pemasangan di panel depan untuk mengakomodasi dudukan bagi profil ponsel foldable dan ponsel tangguh.

Membeli ITS-in-a-box RFoV

Sebaiknya beli ITS-in-a-box RFoV (revisi 1a) dari salah satu vendor yang memenuhi syarat berikut.

  • Byte Bridge Inc.
    Amerika Serikat: 1502 Crocker Ave, Hayward, CA 94544-7037
    China: 22F #06-08, Hongwell International Plaza Tower A, 1600 West Zhongshan Road, Xuhui, Shanghai, 200235
    www.bytebt.com
    androidpartner@bytebt.com
    Amerika Serikat: +1-510-373-8899
    China: +86-400-8866-490

  • JFT CO LTD 捷富通科技有限公司 (sebelumnya dikenal sebagai MYWAY DESIGN)
    No. 40, Lane 22, Heai Road, Wujing Town, Minhang District, Shanghai, China
    4F., No. 163, Fu-Ying Road, XinZhuang District, New Taipei City 242, Taiwan
    www.jftcoltd.com
    service@jfttec.com atau its.sales@jfttec.com
    China:+86-021-64909136
    Taiwan: 886-2-29089060

Video tutorial

Ini adalah tutorial video tentang cara menyiapkan RFoV ITS-in-a-box.

Membangun ITS-in-a-box RFoV

Daripada membeli ITS-in-a-box RFoV, Anda dapat membuatnya sendiri. Bagian ini memberikan petunjuk mendetail untuk perakitan.

Gambar mekanis

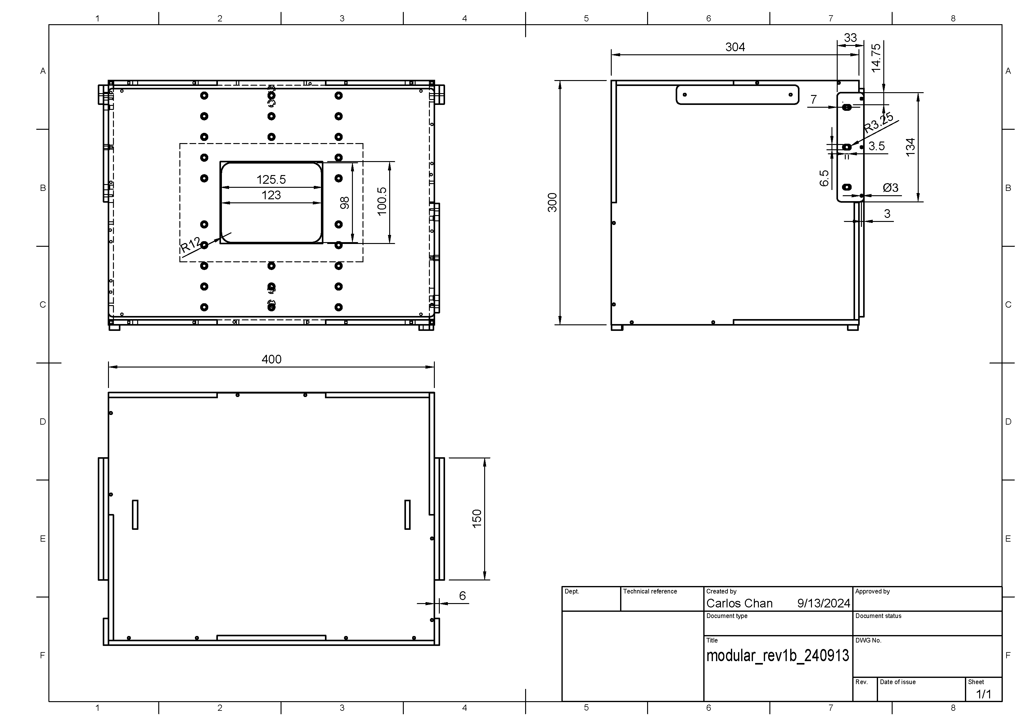
ITS-in-a-box terdiri dari DUT, tablet bagan, sistem pencahayaan internal, dan kotak plastik yang dipotong laser dari gambar CAD (ditampilkan pada Gambar 1).

Untuk memulai, download file produksi terbaru.

Gambar mekanis ITS-in-a-box

Gambar 2. Gambar mekanis ITS-in-a-box

Beli hardware dari bill of materials (BOM). Potong potongan plastik dan vinil.

Alat yang diperlukan

Siapkan alat berikut:

  • Obeng kepala Torx
  • Bor listrik
  • Lem ABS
  • Tang lancip
  • Pisau X-ACTO
  • Pemotong kawat atau gunting (opsional)

Langkah 1: Tempelkan vinil dan rekatkan kaki

Tempelkan vinil berwarna di sisi halus akrilonitril butadiena stirena (ABS) dan potong bukaan yang diperlukan seperti yang ditunjukkan pada Gambar 3 dan 4. Pasang stiker vinil putih dengan bukaan persegi panjang besar di sisi tablet pada kotak dan stiker vinil hitam dengan bukaan melingkar di sisi perangkat seluler pada kotak. Tempelkan vinil abu-abu pada panel samping seperti yang ditunjukkan pada Gambar 4 dan rekatkan kaki di empat sudut panel bawah seperti yang ditunjukkan pada Gambar 5. Untuk mengetahui informasi selengkapnya, lihat wikiHow.

Vinyl di panel depan dan belakang

Gambar 3. Stiker vinil hitam di panel depan (kiri), dan stiker vinil putih di panel belakang (kanan)

Panel samping

Gambar 4. Vinil abu-abu pada panel samping

Panel bawah

Gambar 5. Kaki di empat sudut panel bawah

Langkah 2: Pencahayaan

Untuk merakit komponen pencahayaan ITS-in-a-box:

  1. Kumpulkan hardware pencahayaan seperti yang ditunjukkan pada Gambar 6.

    Komponen perakitan lampu

    Gambar 6. Komponen perakitan lampu

    Hardware mencakup batang lampu LED, baffle lampu plastik, dudukan lampu plastik, klip lampu plastik atau logam yang disertakan dalam kit lampu LED, dan empat sekrup 6-32 dengan mur kepala acorn.

  2. Kencangkan klip lampu ke baffle plastik seperti yang ditunjukkan pada Gambar 7. Kencangkan klip menggunakan mur acorn di sisi lain baffle.

    Peredam cahaya

    Gambar 7. Peredam plastik dengan klip lampu terpasang

  3. Untuk merakit lampu, pasang deflektor plastik ke bagian belakang batang lampu LED menggunakan klip lampu.

    Lampu strip

    Gambar 8. Batang lampu dengan lampu menghadap ke bawah dan sekrup yang dimasukkan melalui klip

Saat komponen pencahayaan dirakit, batang lampu LED harus mengarah ke bawah, dan baffle plastik harus menutupi permukaan reflektif yang mengilap di bagian belakang batang lampu LED.

Langkah 3: Dudukan ponsel

Untuk merakit dudukan ponsel:

  1. Kumpulkan item yang diperlukan seperti yang ditunjukkan pada Gambar 9.

    Item dudukan ponsel

    Gambar 9. Item dudukan ponsel

    Hardware ini mencakup dua dudukan ponsel logam, dua alat penghisap, dua ujung karet, empat sekrup kepala pan 8-32, dan mur yang sesuai.

  2. Potong ujung karet hingga cukup pendek agar tidak mengganggu pengoperasian plunger (kira-kira setengahnya), lalu pasang ujung karet untuk menutupi ujung plunger.

    Plunger

    Gambar 10. Penyedot WC dengan ujung karet

  3. Rakitan dudukan ponsel menggunakan sekrup kepala pan untuk memasang mekanisme plunger ke dudukan logam. Pastikan sekrup dikencangkan dengan mur yang sesuai.

    Dudukan ponsel yang sudah dirakit

    Gambar 11. Dudukan ponsel yang sudah dirakit

Langkah 4: Pelat apertur

Untuk merakit pelat apertur depan:

  1. Kumpulkan hardware pelat apertur depan yang ditunjukkan pada Gambar 12.

    Bagian pelat apertur depan

    Gambar 12. Komponen rakitan pelat apertur depan

    Hardware mencakup dudukan ponsel yang sudah dirakit, panel dudukan ponsel, empat sekrup nilon pendek, dan empat mur nilon (diperlukan agar sekrup tidak menonjol melalui bagian belakang pelat plastik).

  2. Dengan menggunakan sekrup dan mur, kencangkan dudukan ponsel yang telah dirakit ke panel dudukan ponsel. Pastikan dudukan ponsel berada dalam orientasi yang benar seperti yang ditunjukkan pada Gambar 13.

    Pelat apertur depan yang sudah dirakit

    Gambar 13. Pelat apertur depan yang sudah dirakit

Langkah 5: Dudukan tablet

Untuk merakit dudukan meja:

  1. Kumpulkan hardware unit dudukan tablet yang ditunjukkan pada Gambar 14.

    Komponen dudukan tablet

    Gambar 14. Komponen perakitan ruang dudukan tablet

    Hardware mencakup panel belakang, dudukan tablet, satu pendorong, satu ujung karet, dua sekrup kepala pan 8-32, dua sekrup nilon pendek, dan mur yang sesuai.

  2. Rakitan dudukan tablet dengan menggunakan sekrup kepala bundar untuk memasang mekanisme plunger ke dudukan logam. Pastikan sekrup dikencangkan dengan mur yang sesuai.

  3. Dengan menggunakan sekrup dan mur, kencangkan dudukan tablet yang telah dirakit ke panel belakang. Pastikan dudukan ponsel berada dalam orientasi yang benar seperti yang ditunjukkan pada Gambar 15.

    Dudukan tablet yang sudah dirakit

    Gambar 15. Dudukan tablet yang sudah dirakit

Langkah 6: Pasang lampu

Untuk memasang lampu:

  1. Pasang peredam cahaya pada panel atas dan bawah seperti yang ditunjukkan pada Gambar 16.

    Peredam cahaya terpasang

    Gambar 16. Peredam cahaya yang dipasang di panel atas dan bawah

  2. Kencangkan baffle lampu dengan menekan pin ke dalam lubang kecil pada tab persegi panjang yang memanjang melalui slot di panel atas dan bawah seperti pada Gambar 17.

    Pin disisipkan

    Gambar 17. Tampilan dari dekat pin yang dimasukkan ke dalam tab dudukan LED di bagian luar kotak

    Untuk mengamankan pin, tekan perlahan pin hingga Anda merasakan tekanan pada plastik saat pin terpasang dengan aman.

    Tang

    Gambar 18. Tang yang digunakan untuk memasang pin

  3. Pasang panel depan dan samping dalam orientasi yang benar seperti yang ditunjukkan pada Gambar 19, dan rekatkan dari luar.

    Orientasi penempatan cahaya

    Gambar 19. Orientasi penempatan cahaya

  4. Pasang kabel daya ke batang lampu daya seperti yang ditunjukkan pada Gambar 20.

    Kabel daya lampu

    Gambar 20. Kabel daya lampu

    Masukkan kabel daya melalui lubang di panel kiri. Kabel daya memiliki konektor yang berbeda di setiap ujungnya: konektor yang lebih sempit terhubung ke batang lampu LED dan konektor yang lebih besar terhubung ke adaptor daya.

    Kabel daya

    Gambar 21. Kabel daya keluar dari rig pengujian di sisi kirinya

  5. Hubungkan kabel lampu atas ke lampu bawah dan kencangkan kabel di panel kiri.

    Kabel lampu

    Gambar 22. Kabel lampu ditautkan di panel kiri

Langkah 7: Pasang panel samping, dudukan tablet, dan pegangan

Untuk merakit panel samping ITS-in-a-box, dudukan tablet, dan pegangan dengan sekrup:

  1. Satukan semua sisi panel dan rekatkan dengan selotip seperti yang ditunjukkan pada Gambar 23.

    Kotak yang direkatkan untuk perakitan

    Gambar 23. ITS-in-a-box yang direkatkan untuk perakitan

  2. Gunakan bor listrik untuk membuat lubang pemandu berdasarkan lubang yang ada. Pastikan lubang pemandu cukup besar untuk sekrup 4-40 agar plastik ABS tidak retak saat memasukkan sekrup.

    Mengebor lubang

    Gambar 24. Mengebor lubang bor awal untuk sekrup 4-40

  3. Sekrup semua panel menggunakan sekrup self-tapping 4-40.

    Bor listrik

    Gambar 25. Sekrup 4-40 untuk merakit panel

  4. Kumpulkan bagian gagang yang ditunjukkan pada Gambar 26.

    Bagian gagang

    Gambar 26. Bagian gagang

    Hardware mencakup empat potongan plastik persegi panjang dan empat sekrup 6-32.

  5. Pasang gagang seperti yang ditunjukkan pada Gambar 27.

    Tuas yang dirakit

    Gambar 27. Tuas yang dirakit

Langkah 8: Perakitan dan penyiapan akhir

Untuk melakukan perakitan akhir ITS-in-a-box:

  1. Pasang dudukan tablet ke panel belakang dan sesuaikan ketinggiannya sesuai dengan ukuran tablet.

    Dudukan tablet di bagian belakang kotak

    Gambar 28. Tablet di dudukan tablet di bagian belakang kotak

  2. Pasang panel apertur persegi tanpa dudukan ponsel ke bagian depan kotak dengan sekrup 4-40 seperti yang ditunjukkan pada Gambar 29.

    Panel depan yang sudah dirakit

    Gambar 29. Panel depan ponsel yang sudah dirakit

  3. Masukkan apertur papan gator 10x10 cm agar sesuai dengan apertur kamera DUT.

    Apertur papan Gator

    Gambar 30. ITS-in-a-box dengan apertur papan gator yang terpasang

  4. Pasang ponsel dengan menyelaraskan kamera dengan apertur lensa. Periksa kesejajaran melalui bukaan tablet.

    Kotak dengan satu ponsel

    Gambar 31. ITS-in-a-box dengan satu ponsel yang terpasang

  5. Buat apertur untuk kamera. Anda dapat memotong satu apertur (untuk menguji satu ponsel) atau dua apertur (untuk menguji dua ponsel). Apertur untuk kamera depan dan belakang Pixel dan Pixel XL ditampilkan pada Gambar 31. Kamera depan memiliki apertur melingkar karena tidak ada flash atau laser, sedangkan kamera belakang memiliki apertur persegi panjang yang memungkinkan flash dan laser beroperasi tanpa terhalang.

    Contoh bukaan

    Gambar 32. Contoh apertur untuk kamera depan dan belakang

    Kotak dengan dua ponsel

    Atau, Anda juga dapat memotong apertur dari kardus dan mengecatnya dengan spidol, cat semprot, atau akrilik seperti yang ditunjukkan pada Gambar 33.

    Gambar 33. Contoh apertur kardus untuk kamera depan dan belakang

    Contoh apertur kardus

  6. Menggunakan penguji lux digital, uji lux lampu LED. YF-1065 dari Contempo View digunakan dalam contoh ini.

    YF-1065 oleh Contempo Views

    Gambar 34. YF-1065 oleh Contempo Views

  7. Letakkan pengukur cahaya di sisi tablet dan putar ke 2000 lux untuk mengukur cahaya. Tingkat lux harus sekitar 100–300 lux. Cahaya yang jauh lebih redup tidak dapat digunakan untuk pengujian dan dapat menyebabkan kegagalan pengujian.

    Pengukur lux

    Gambar 35. Pengukur lux yang mengukur cahaya dari belakang dengan dudukan tablet

  8. Ikuti langkah yang sesuai bergantung pada nilai lux yang diukur:

    • Jika lampu berada pada tingkat yang tepat, pasang pelat depan dan belakang ke tempatnya.
    • Jika tingkat cahaya salah, periksa apakah nomor komponen LED dan catu daya sudah benar.

Hal yang perlu diperhatikan

Berikut adalah contoh error manufaktur umum yang dapat membuat pengujian tidak stabil.

  • Panel belakang dengan lubang tablet yang ditusuk. Hal ini menyebabkan pengujian find_circle gagal karena lingkaran tambahan yang dibuat oleh lubang sekrup.

    Panel belakang dengan lubang

    Gambar 36. Panel belakang dengan lubang yang ditusuk

  • Dowel tidak ada. Hal ini menyebabkan baffle lampu terlepas selama pengiriman.

    Dowel tidak ada

    Gambar 37. Dowel tidak ada pada peredam cahaya

  • Catu daya yang tidak terdaftar di UL. Menggunakan power supply yang terdaftar di UL memastikan power supply tidak rusak.

    Catu daya yang terdaftar di UL

    Gambar 38. Contoh catu daya yang terdaftar di UL