रेगुलर फ़ील्ड-ऑफ़-व्यू (आरएफ़ओवी) बॉक्स पाना

रेगुलर फ़ील्ड-ऑफ़-व्यू (आरएफ़ओवी) ITS-इन-अ-बॉक्स (revision 1a) में ये चीज़ें शामिल होती हैं: कंप्यूटर-ऐडेड डिज़ाइन (सीएडी) ड्रॉइंग से लेज़र कट किया गया प्लास्टिक बॉक्स, चार्ट टैबलेट, और जांच किया जाने वाला डिवाइस (डीयूटी). RFoV ITS-in-a-box को 90 डिग्री (RFoV) से कम फ़ील्ड ऑफ़ व्यू वाले डिवाइसों की जांच करने के लिए डिज़ाइन किया गया है. आपके पास ITS-in-a-box खरीदने या खुद बनाने का विकल्प होता है.

RFOV ITS-in-a-box के rev1b वर्शन में, मॉड्यूलर कॉम्पोनेंट इस्तेमाल करने की सुविधा जोड़ी गई है. साथ ही, यह टेली एक्सटेंशन रिग के साथ काम करता है.

Rev1b

पहली इमेज. रेगुलर फ़ील्ड-ऑफ़-व्यू (आरएफ़ओवी) आईटीएस बॉक्स Rev1b

बदलावों का इतिहास

यहां दी गई टेबल में, फ़ील्ड-ऑफ़-व्यू वाले सामान्य बॉक्स के बदलाव के इतिहास के बारे में बताया गया है. इसमें प्रोडक्शन फ़ाइलों के हर वर्शन के डाउनलोड लिंक भी शामिल हैं.

तारीख बदलाव प्रोडक्शन फ़ाइल डाउनलोड करना बदलाव लॉग
सितंबर 2024 1b Rev. 1b प्रोडक्शन फ़ाइलें
  • मॉड्यूलर सिस्टम को अपनाया गया है. इससे मॉड्यूलर एक्सटेंशन के लिए माउंटिंग मैकेनिज़्म जोड़ा जाता है.
मई 2019 1a Rev. 1a प्रोडक्शन फ़ाइलें
  • मटेरियल को डेल्रिन से बदलकर एबीएस कर दिया गया है.
  • लाइट होल्डर के डिज़ाइन में बदलाव किया गया है, ताकि यह ज़्यादा फ़्लेक्सिबल हो और अलग-अलग साइज़ के एलईडी बार को हैंडल कर सके.
  • निर्माण के तरीकों को एक जैसा बनाया गया है.
  • टैबलेट माउंट के डिज़ाइन को आसान बनाया गया है और इसे ज़्यादा मज़बूत बनाया गया है.
  • फ़ोन माउंट की गहराई को बढ़ाया गया है, ताकि मोटे फ़ोन को भी माउंट किया जा सके.
  • फ़्रंट पैनल पर माउंट करने के विकल्पों को बढ़ाया गया है, ताकि फ़ोल्ड किए जा सकने वाले फ़ोन और रग्ड फ़ोन की प्रोफ़ाइलों के लिए माउंट को जगह मिल सके.

RFoV ITS-in-a-box खरीदें

हमारा सुझाव है कि आप इन मान्यता प्राप्त वेंडर में से किसी एक से, RFoV ITS-in-a-box (revision 1a) खरीदें.

  • Byte Bridge Inc.
    USA: 1502 Crocker Ave, Hayward, CA 94544-7037
    China: 22F #06-08, Hongwell International Plaza Tower A, 1600 West Zhongshan Road, Xuhui, Shanghai, 200235
    www.bytebt.com
    androidpartner@bytebt.com
    USA: +1-510-373-8899
    China: +86-400-8866-490

  • JFT CO LTD 捷富通科技有限公司 (पहले इसे MYWAY DESIGN के नाम से जाना जाता था)
    No. 40, Lane 22, Heai Road, Wujing Town, Minhang District, Shanghai, China
    4F., No. 163, Fu-Ying Road, XinZhuang District, New Taipei City 242, Taiwan
    www.jftcoltd.com
    service@jfttec.com या its.sales@jfttec.com
    चीन:+86-021-64909136
    ताइवान: 886-2-29089060

वीडियो ट्यूटोरियल

इस वीडियो ट्यूटोरियल में, RFoV ITS-in-a-box को सेट अप करने का तरीका बताया गया है.

RFoV ITS-in-a-box बनाना

RFoV ITS-in-a-box खरीदने के बजाय, इसे खुद भी बनाया जा सकता है. इस सेक्शन में, असेंबल करने के बारे में पूरी जानकारी दी गई है.

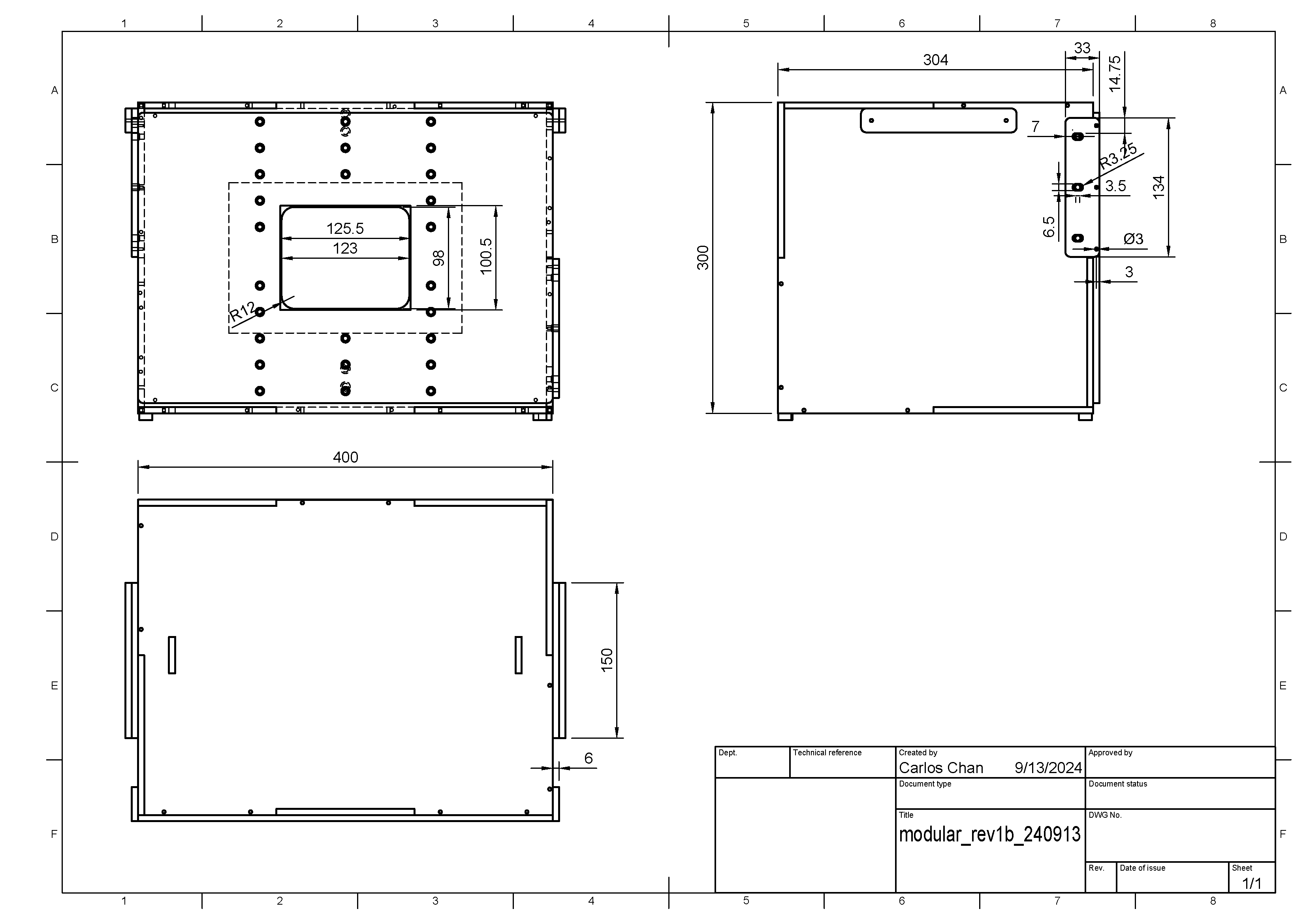
मकैनिकल ड्रॉइंग

आईटीएस-इन-अ-बॉक्स में ये चीज़ें शामिल होती हैं: डीयूटी, चार्ट टैबलेट, इंटरनल लाइटिंग सिस्टम, और प्लास्टिक का एक बॉक्स. इस बॉक्स को सीएडी ड्रॉइंग से लेज़र कट किया जाता है. इसे इमेज 1 में दिखाया गया है.

शुरू करने के लिए, प्रोडक्शन फ़ाइल का नया वर्शन डाउनलोड करें.

आईटीएस-इन-अ-बॉक्स की मैकेनिकल ड्रॉइंग

दूसरी इमेज. आईटीएस-इन-अ-बॉक्स की मैकेनिकल ड्रॉइंग

मटेरियल के बिल (बीओएम) से हार्डवेयर खरीदें. प्लास्टिक और विनाइल के टुकड़ों को काटें.

ज़रूरी टूल

आपके पास ये टूल होने चाहिए:

  • टॉर्क हेड वाला स्क्रूड्राइवर
  • पावर ड्रिल
  • एबीएस ग्लू
  • नीडल नोज़ प्लायर
  • X-ACTO चाकू
  • तार काटने वाला कटर या कैंची (ज़रूरी नहीं)

पहला चरण: विनाइल लगाना और पैरों को चिपकाना

ऐक्रिलोनिट्राइल ब्यूटाडीन स्टाइरीन (एबीएस) की चिकनी सतह पर रंगीन विनाइल लगाएं. इसके बाद, ज़रूरत के हिसाब से कट लगाएं. ऐसा फ़िगर 3 और 4 में दिखाए गए तरीके से करें. बॉक्स के टैबलेट वाले हिस्से पर, बड़े आयताकार छेद वाला सफ़ेद विनाइल लगाएं. साथ ही, बॉक्स के फ़ोन वाले हिस्से पर, गोल छेद वाला काला विनाइल लगाएं. चौथी इमेज में दिखाए गए तरीके से, साइड पैनल पर ग्रे विनाइल लगाएं. इसके बाद, पांचवीं इमेज में दिखाए गए तरीके से, पैरों को बॉटम पैनल के चारों कोनों पर चिपकाएं. ज़्यादा जानकारी के लिए, wikiHow पर जाएं.

आगे और पीछे के पैनल पर विनाइल

तीसरी इमेज. सामने वाले पैनल (बाएँ) पर ब्लैक विनाइल और पीछे वाले पैनल (दाएँ) पर सफ़ेद विनाइल

साइड पैनल

चौथी इमेज. साइड पैनल पर स्लेटी रंग का विनाइल

बॉटम पैनल

पांचवीं इमेज. नीचे वाले पैनल के चारों कोनों पर पैर

दूसरा चरण: रोशनी

आईटीएस-इन-अ-बॉक्स के लाइटिंग कॉम्पोनेंट को असेंबल करने के लिए:

  1. छठी इमेज में दिखाए गए लाइटिंग हार्डवेयर को इकट्ठा करें.

    लाइट असेंबली के पुर्ज़े

    छठी इमेज. लाइट असेंबली के पुर्ज़े

    हार्डवेयर में एलईडी लाइट बार, प्लास्टिक लाइट बैफ़ल, प्लास्टिक लाइट माउंट, एलईडी लाइटिंग किट में शामिल प्लास्टिक या मेटल लाइट क्लिप, और ऐकॉर्न हेड नट वाले चार 6-32 स्क्रू शामिल हैं.

  2. लाइट क्लिप को प्लास्टिक के बैफ़ल से बोल्ट करें. ऐसा इमेज 7 में दिखाए गए तरीके से करें. बफ़ल के दूसरी तरफ़ मौजूद एकॉर्न नट का इस्तेमाल करके, क्लिप को सुरक्षित करें.

    लाइट बैफ़ल

    सातवीं इमेज. प्लास्टिक के बैफ़ल, जिनमें लाइट क्लिप अटैच हैं

  3. लाइटें जोड़ने के लिए, लाइट क्लिप का इस्तेमाल करके एलईडी लाइट बार के पीछे प्लास्टिक के बफ़ल अटैच करें.

    लाइट बार

    आठवीं इमेज. लाइट बार में लाइटें नीचे की ओर हैं और स्क्रू क्लिप से होकर गुज़र रहे हैं

लाइटिंग कॉम्पोनेंट को असेंबल करते समय, एलईडी लाइट बार नीचे की ओर होने चाहिए. साथ ही, प्लास्टिक के बैफ़ल को एलईडी लाइट बार के पीछे की चमकदार, रिफ़्लेक्टिव सतह को ढकना चाहिए.

तीसरा चरण: फ़ोन माउंट

फ़ोन माउंट को असेंबल करने के लिए:

  1. ज़रूरी आइटम इकट्ठा करें. ये आइटम, इमेज 9 में दिखाए गए हैं.

    फ़ोन माउंट करने वाले आइटम

    नौवीं इमेज. फ़ोन माउंट करने वाले आइटम

    हार्डवेयर में, फ़ोन को माउंट करने के लिए दो मेटल माउंट, दो प्लंजर, दो रबर टिप, चार 8-32 पैन-हेड स्क्रू, और उनसे जुड़े नट शामिल हैं.

  2. रबर की नोक को इतना छोटा काटें कि वह प्लंजर के काम में रुकावट न डाले (लगभग आधा). इसके बाद, रबर की नोक को प्लंजर की नोक पर लगाएं.

    प्लंजर

    दसवीं इमेज. रबर की नोक वाले प्लंजर

  3. फ़ोन माउंट को असेंबल करें. इसके लिए, पैन-हेड स्क्रू का इस्तेमाल करके प्लंजर मैकेनिज़्म को मेटल माउंट से जोड़ें. पक्का करें कि पेच को नट के साथ कस दिया गया हो.

    फ़ोन माउंट करने के लिए असेंबल किए गए सामान

    ग्यारहवीं इमेज. फ़ोन माउंट करने के लिए असेंबल किए गए सामान

चौथा चरण: अपर्चर प्लेट

सामने की ओर मौजूद अपर्चर प्लेट को असेंबल करने के लिए:

  1. सामने की अपर्चर प्लेट के हार्डवेयर को इकट्ठा करें. यह हार्डवेयर, इमेज 12 में दिखाया गया है.

    सामने की ओर मौजूद ऐपरचर प्लेट के हिस्से

    बारहवीं इमेज. सामने की ओर मौजूद अपर्चर प्लेट असेंबली के हिस्से

    हार्डवेयर में, असेंबल किए गए फ़ोन माउंट, फ़ोन माउंट पैनल, चार छोटे नायलॉन स्क्रू, और चार नायलॉन नट शामिल हैं. नायलॉन नट का इस्तेमाल, स्क्रू को प्लास्टिक प्लेट के पीछे से बाहर निकलने से रोकने के लिए किया जाता है.

  2. पेचों और नट का इस्तेमाल करके, फ़ोन माउंट के पैनल पर फ़ोन माउंट को सुरक्षित तरीके से लगाएं. पक्का करें कि फ़ोन माउंट सही ओरिएंटेशन में लगे हों. जैसा कि इमेज 13 में दिखाया गया है.

    असेंबल की गई फ़्रंट अपर्चर प्लेट

    तेरहवीं इमेज. असेंबल की गई फ़्रंट अपर्चर प्लेट

पाँचवाँ चरण: टैबलेट माउंट करना

टेबल माउंट को असेंबल करने के लिए:

  1. इमेज 14 में दिखाया गया टैबलेट माउंट असेंबली हार्डवेयर इकट्ठा करें.

    टैबलेट माउंट करने के पुर्ज़े

    चौदहवीं इमेज. टैबलेट माउंट स्पेस असेंबली के पुर्ज़े

    हार्डवेयर में बैक पैनल, टैबलेट माउंट, एक प्लंजर, एक रबर टिप, दो 8-32 पैन-हेड स्क्रू, दो छोटे नायलॉन स्क्रू, और उनसे जुड़े नट शामिल हैं.

  2. प्लंगर मैकेनिज़्म को मेटल माउंट से जोड़ने के लिए, पैन-हेड स्क्रू का इस्तेमाल करके टैबलेट माउंट को असेंबल करें. पक्का करें कि पेच को नट से अच्छी तरह कस दिया गया हो.

  3. पेच और नट का इस्तेमाल करके, असेंबल किए गए टैबलेट माउंट को बैक पैनल पर सुरक्षित तरीके से लगाएं. पक्का करें कि फ़ोन माउंट, फ़िगर 15 में दिखाए गए तरीके से सही ओरिएंटेशन में लगे हों.

    असेंबल किया गया टैबलेट माउंट

    15वीं इमेज. असेंबल किया गया टैबलेट माउंट

छठा चरण: लाइटें इंस्टॉल करना

लाइटें इंस्टॉल करने के लिए:

  1. ऊपर और नीचे के पैनल पर लाइट बैफ़ल इंस्टॉल करें. जैसा कि इमेज 16 में दिखाया गया है.

    लाइट बैफ़ल इंस्टॉल किए गए हों

    16वीं इमेज. ऊपर और नीचे के पैनल पर लाइट बैफ़ल इंस्टॉल किए गए हैं

  2. लाइट बैफ़ल को सुरक्षित करने के लिए, पिन को आयताकार टैब में मौजूद छोटे छेद में डालें. यह टैब, ऊपर और नीचे वाले पैनल में मौजूद स्लॉट से होकर जाता है. ऐसा चित्र 17 में दिखाया गया है.

    पिन डाला गया

    17वीं इमेज. बॉक्स के बाहर एलईडी माउंट टैब में पिन डालने की क्लोज़-अप इमेज

    पिन को सुरक्षित करने के लिए, उन्हें तब तक हल्के से दबाएं, जब तक आपको प्लास्टिक पर थोड़ा दबाव महसूस न हो.

    प्लायर

    18वीं इमेज. पिन लगाने के लिए इस्तेमाल किए जाने वाले प्लायर

  3. सामने और बगल के पैनल को सही ओरिएंटेशन में जोड़ें. जैसा कि इमेज 19 में दिखाया गया है. इसके बाद, उन्हें बाहर से टेप से चिपकाएं.

    लाइट प्लेसमेंट ओरिएंटेशन

    19वीं इमेज. लाइट प्लेसमेंट ओरिएंटेशन

  4. पावर कॉर्ड को पावर लाइट बार से जोड़ें. ऐसा करने का तरीका इमेज 20 में दिखाया गया है.

    लाइटिंग पावर कॉर्ड

    20वीं इमेज. लाइटिंग पावर कॉर्ड

    पावर कॉर्ड को बाईं ओर मौजूद पैनल के छेद से डालें. पावर कॉर्ड के दोनों सिरों पर अलग-अलग कनेक्टर होते हैं: पतला कनेक्टर, एलईडी लाइट बार से कनेक्ट होता है और बड़ा कनेक्टर, पावर अडैप्टर से कनेक्ट होता है.

    पावर कार्ड

    21वीं इमेज. टेस्ट रिग की बाईं ओर से बाहर निकलता हुआ पावर कॉर्ड

  5. ऊपर की लाइटों को नीचे की लाइटों से कनेक्ट करें. इसके बाद, केबल को बाएं पैनल पर सुरक्षित करें.

    लाइट कॉर्ड

    22वीं इमेज. लाइट कॉर्ड को बाईं ओर के पैनल पर ऐंकर किया गया है

सातवां चरण: साइड पैनल, टैबलेट माउंट, और हैंडल जोड़ना

आईटीएस-इन-अ-बॉक्स के साइड पैनल, टैबलेट माउंट, और हैंडल को स्क्रू की मदद से जोड़ने के लिए:

  1. पैनल के सभी किनारों को जोड़ें और उन्हें एक साथ टेप करें. ऐसा चित्र 23 में दिखाए गए तरीके से करें.

    असेंबल करने के लिए टेप किया गया बॉक्स

    23वीं इमेज. असेंबल करने के लिए, एक साथ टेप किए गए आईटीएस-इन-अ-बॉक्स

  2. मौजूदा छेदों के आधार पर पायलट होल (छेद करने से पहले निशान लगाने के लिए किया जाने वाला छोटा छेद) बनाने के लिए, पावर ड्रिल का इस्तेमाल करें. पक्का करें कि पायलट होल, 4-40 स्क्रू के लिए काफ़ी बड़े हों, ताकि स्क्रू डालते समय ABS प्लास्टिक न टूटे.

    छेद करना

    24वीं इमेज. 4-40 स्क्रू के लिए शुरुआती छेद करना

  3. सेल्फ़-टैपिंग वाले 4-40 स्क्रू का इस्तेमाल करके, सभी पैनल को एक साथ स्क्रू करें.

    पावर ड्रिल

    25वीं इमेज. पैनलों को जोड़ने के लिए 4-40 स्क्रू

  4. इमेज 26 में दिखाए गए हैंडल के हिस्सों को इकट्ठा करें.

    पुर्ज़ों को मैनेज करना

    26वीं इमेज. पुर्ज़ों को मैनेज करना

    हार्डवेयर में चार आयताकार प्लास्टिक के टुकड़े और चार 6-32 स्क्रू शामिल हैं.

  5. हैंडल को इमेज 27 में दिखाए गए तरीके से जोड़ें.

    असेंबल किया गया हैंडल

    27वीं इमेज. असेंबल किया गया हैंडल

आठवां चरण: फ़ाइनल असेंबली और सेटअप

आईटीएस-इन-अ-बॉक्स को असेंबल करने के लिए:

  1. टैबलेट माउंट को बैक पैनल से जोड़ें और टैबलेट के साइज़ के हिसाब से ऊंचाई को अडजस्ट करें.

    बॉक्स के पीछे टैबलेट माउंट

    28वीं इमेज. बॉक्स के पीछे टैबलेट माउंट में टैबलेट

  2. स्क्वेयर अपर्चर पैनल को फ़ोन माउंट के बिना, बॉक्स के सामने की ओर अटैच करें. इसके लिए, 4-40 स्क्रू का इस्तेमाल करें. ऐसा चित्र 29 में दिखाए गए तरीके से करें.

    असेंबल किया गया फ्रंट पैनल

    29वीं इमेज. फ़ोन का सामने वाला पैनल असेंबल किया गया

  3. DUT के कैमरे के अपर्चर में फ़िट होने के लिए, 10x10 सेमी का गेटर बोर्ड अपर्चर डालें.

    Gator बोर्ड का अपर्चर

    तीसवीं इमेज. ITS-in-a-box में गटर बोर्ड अपर्चर इंस्टॉल किया गया है

  4. कैमरे को अपर्चर के साथ अलाइन करके, फ़ोन को इंस्टॉल करें. टैबलेट के छेद से अलाइनमेंट की जांच करें.

    एक फ़ोन वाला बॉक्स

    31वीं इमेज. ITS-in-a-box में एक फ़ोन इंस्टॉल किया गया है

  5. कैमरों के लिए छेद करें. एक फ़ोन की टेस्टिंग के लिए, एक छेद काटा जा सकता है. वहीं, दो फ़ोन की टेस्टिंग के लिए, दो छेद काटे जा सकते हैं. Pixel और Pixel XL के सामने और पीछे वाले कैमरों के अपर्चर, इमेज 31 में दिखाए गए हैं. सामने वाले कैमरे में गोलाकार अपर्चर होता है, क्योंकि इसमें फ़्लैश या लेज़र नहीं होता. वहीं, पीछे वाले कैमरे में आयताकार अपर्चर होता है, ताकि फ़्लैश और लेज़र बिना किसी रुकावट के काम कर सकें.

    अपर्चर के सैंपल

    32वीं इमेज. सामने और पीछे, दोनों कैमरों के लिए सैंपल अपर्चर

    दो फ़ोन वाला बॉक्स

    इसके अलावा, कार्डबोर्ड से अपर्चर काटकर, उस पर मार्कर, स्प्रे पेंट या ऐक्रेलिक से काला रंग किया जा सकता है. इसके लिए, इमेज 33 में दिखाया गया तरीका अपनाएं.

    33वीं इमेज. सामने और पीछे, दोनों कैमरों के लिए कार्डबोर्ड के सैंपल अपर्चर

    कार्डबोर्ड के अपर्चर का सैंपल

  6. डिजिटल लक्स टेस्टर का इस्तेमाल करके, एलईडी लाइट की लक्स वैल्यू की जांच करें. इस उदाहरण में, Contempo View के YF-1065 का इस्तेमाल किया गया है.

    Contempo Views का YF-1065

    34वीं इमेज. Contempo Views का YF-1065

  7. लाइट मीटर को टैबलेट की तरफ़ रखें और उसे 2000 लक्स पर सेट करें, ताकि रोशनी को मापा जा सके. लक्स लेवल 100 से 300 लक्स के बीच होना चाहिए. इससे कम रोशनी में टेस्ट ठीक से नहीं हो पाता और टेस्ट फ़ेल हो सकते हैं.

    लक्स मीटर

    35वीं इमेज. टैबलेट माउंट के साथ, पीछे से रोशनी मापने वाला लक्स मीटर

  8. मेज़र की गई लक्स वैल्यू के आधार पर, सही तरीका अपनाएं:

    • अगर लाइट सही लेवल पर है, तो आगे और पीछे की प्लेटों को स्क्रू से कसें.
    • अगर लाइट सही लेवल पर नहीं है, तो जांच करें कि एलईडी और पावर सप्लाई के पार्ट नंबर सही हों.

ध्यान रखने लायक बातें

यहां मैन्युफ़ैक्चरिंग से जुड़ी कुछ सामान्य गड़बड़ियों के उदाहरण दिए गए हैं. इनकी वजह से, टेस्ट के नतीजे भरोसेमंद नहीं होते.

  • टैबलेट का पिछला पैनल, जिसमें छेद किए गए हैं. स्क्रू के छेद की वजह से बने अतिरिक्त सर्कल की वजह से, find_circle टेस्ट फ़ेल हो जाता है.

    छेद वाला बैक पैनल

    36वीं इमेज. पीछे का पैनल, जिसमें छेद किए गए हैं

  • डौल मौजूद नहीं हैं. इस वजह से, शिपिंग के दौरान लाइट बैफ़ल निकल जाते हैं.

    डौल मौजूद नहीं है

    37वीं इमेज. लाइट बैफ़ल पर डावल मौजूद नहीं है

  • पावर सप्लाई, UL की सूची में शामिल नहीं है. UL-लिस्टेड पावर सप्लाई का इस्तेमाल करने से, यह पक्का किया जा सकता है कि पावर सप्लाई खराब नहीं होगी.

    UL-लिस्टेड पावर सप्लाई

    38वीं इमेज. यूएल-लिस्टेड पावर सप्लाई का उदाहरण