איך מקבלים תיבת שדה ראייה רגיל (RFoV)

מערכת ITS-in-a-box (גרסה 1a) עם שדה ראייה רגיל (RFoV) מורכבת מקופסת פלסטיק שנחתכת בלייזר משרטוטים של עיצוב בעזרת מחשב (CAD), מלוח תרשימים וממכשיר שנבדק (DUT). מערכת ה-ITS-in-a-box עם RFoV מיועדת לבדיקת מכשירים עם FoV של פחות מ-90 מעלות (RFoV). אפשר לרכוש ITS-in-a-box או ליצור מערכת משלכם.

בגרסה rev1b של RFOV ITS-in-a-box נוספה תמיכה ברכיבים מודולריים והיא תואמת לטלסקופ עם תוסף.

Rev1b

איור 1. תיבת ITS עם שדה ראייה רגיל (RFoV) גרסה Rev1b

היסטוריית גרסאות

בטבלה הבאה מתוארת היסטוריית הגרסאות של תיבת שדה הראייה הרגיל, והיא כוללת קישורים להורדה של כל גרסה של קובצי הייצור.

תאריך Revision הורדת קובץ הפקה יומן השינויים
ספטמבר 2024 ‫1b קבצים בסביבת הייצור, גרסה 1b
  • אימצנו מערכת מודולרית (הוספנו מנגנון הרכבה לתוספים מודולריים).
מאי 2019 ‫1a קבצים בסביבת הייצור, גרסה 1a
  • החומר השתנה מדלרין ל-ABS.
  • שינינו את העיצוב של מחזיק התאורה כדי שיהיה גמיש יותר ויתאים לגדלים שונים של פסי LED.
  • איחדנו את שיטות הבנייה.
  • שיפרנו את העיצוב של התושבת לטאבלט והפכנו אותה לחזקה יותר.
  • הגדלנו את העומק של תושבת הטלפון כדי שיתאים לטלפונים עבים יותר.
  • הגדלנו את אפשרויות ההרכבה בחלונית הקדמית כדי להתאים למתקן לטלפונים מתקפלים ולטלפונים חזקים.

רכישת RFoV ITS-in-a-box

מומלץ לרכוש RFoV ITS-in-a-box (גרסה 1a) מאחד מהספקים המוסמכים הבאים.

  • Byte Bridge Inc.‎
    ארה"ב: 1502 Crocker Ave, Hayward, CA 94544-7037
    סין: 22F #06-08, Hongwell International Plaza Tower A, 1600 West Zhongshan Road, Xuhui, Shanghai, 200235
    www.bytebt.com
    androidpartner@bytebt.com
    ארה"ב: ‎+1-510-373-8899
    סין: ‎+86-400-8866-490

  • JFT CO LTD 捷富通科技有限公司 (previously known as MYWAY DESIGN)
    No. 40, Lane 22, Heai Road, Wujing Town, Minhang District, Shanghai, China
    4F., ‪No. 163, Fu-Ying Road, XinZhuang District, New Taipei City 242, Taiwan
    www.jftcoltd.com
    service@jfttec.com or its.sales@jfttec.com
    China:+86-021-64909136
    Taiwan: 886-2-29089060

סרטון הדרכה

זהו סרטון הדרכה שמסביר איך להגדיר את RFoV ITS-in-a-box.

הרכבת מערכת ITS-in-a-box עם RFoV

במקום לרכוש RFoV ITS-in-a-box, אפשר לבנות מערכת משלכם. בקטע הזה מפורטות הוראות להרכבה.

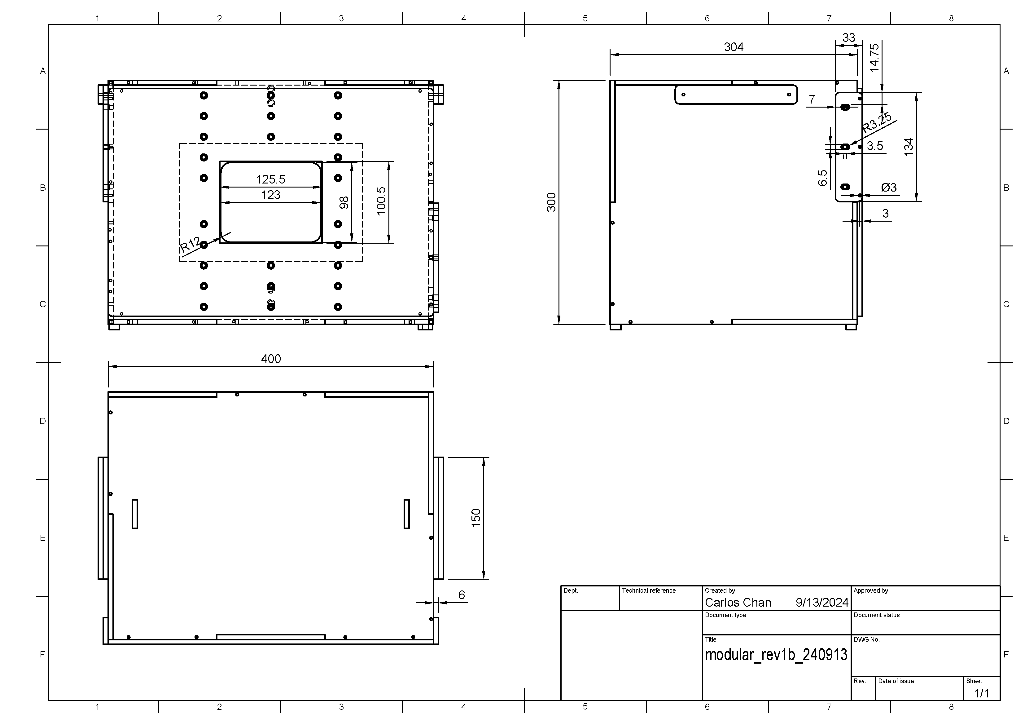
שרטוטים מכניים

מערכת ITS-in-a-box מורכבת מ-DUT, מלוח תרשימים, ממערכת תאורה פנימית ומקופסת פלסטיק שנחתכת בלייזר משרטוטי CAD (כפי שמוצג באיור 1).

כדי להתחיל, מורידים את קובץ הייצור העדכני.

שרטוט מכני של ITS-in-a-box

איור 2. ציור מכני של ITS-in-a-box

רוכשים את הציוד מרשימת החומרים (BOM). גוזרים את חתיכות הפלסטיק והויניל.

כלים נדרשים

הכלים הבאים זמינים:

  • מברג עם ראש Torx
  • מקדחה
  • דבק ABS
  • שפיץ פלייר
  • סכין X-ACTO
  • מגזרי תיל או מספריים (אופציונלי)

שלב 1: מורחים ויניל ומדביקים רגליות

מדביקים ויניל צבעוני על הצד החלק של אקרילוניטריל בוטאדיאן סטירן (ABS) וחותכים את הפתחים הנדרשים כמו שמוצג באיורים 3 ו-4. מדביקים את הוויניל הלבן עם הפתח המלבני הגדול בצד הטאבלט של הקופסה, ואת הוויניל השחור עם הפתח העגול בצד המכשיר הנייד של הקופסה. מדביקים ויניל אפור על החלוניות הצדדיות כמו שמוצג באיור 4, ומדביקים את הרגליים בארבע הפינות של החלונית התחתונה כמו שמוצג באיור 5. מידע נוסף זמין ב-wikiHow.

ויניל בלוחות הקדמיים והאחוריים

איור 3. ויניל שחור בלוח הקדמי (משמאל) וויניל לבן בלוח האחורי (מימין)

חלוניות צדדיות

איור 4. ויניל אפור בחלוניות צדדיות

החלונית התחתונה

איור 5. רגליות בארבע הפינות של הפאנל התחתון

שלב 2: תאורה

כדי להרכיב את רכיב התאורה של ITS-in-a-box:

  1. מרכזים את ציוד התאורה כמו שמוצג באיור 6.

    חלקים להרכבת גופי תאורה

    איור 6. חלקים להרכבת גופי תאורה

    החומרה כוללת את פסי תאורת ה-LED, מסיטי אור מפלסטיק, תושבות אור מפלסטיק, קליפסים מפלסטיק או ממתכת שכלולים בערכת תאורת ה-LED וארבעה ברגי 6-32 עם אומים בצורת בלוט.

  2. מבריגים את תפסי התאורה למסירי האוויר מפלסטיק כמו שמוצג באיור 7. מהדקים את הקליפסים באמצעות האומים בצורת בלוט בצד השני של המסיטים.

    מחיצות אור

    איור 7. מחיצות מפלסטיק עם קליפסים לחיבור נורות

  3. כדי להרכיב את התאורה, מחברים את המסיטים מפלסטיק לחלק האחורי של פסי תאורת ה-LED באמצעות תפסים.

    פסי תאורה

    איור 8. פסי תאורה כשהאורות פונים כלפי מטה והברגים מושחלים דרך התפסים

כשמרכיבים את רכיב התאורה, מוטות נוריות ה-LED צריכים להיות מכוונים כלפי מטה, ומחיצות הפלסטיק צריכות לכסות את המשטח המבריק והמחזיר אור בחלק האחורי של מוט נוריות ה-LED.

שלב 3: מתקני טלפון

כדי להרכיב את מתקני הטלפון:

  1. אוספים את הפריטים הנדרשים כמו שמוצג באיור 9.

    פריטים של תושבות לטלפונים

    איור 9. פריטים של תושבות לטלפונים

    הערכה כוללת שני מתקני מתכת לטלפון, שתי כוסות יניקה, שני קצוות גומי, ארבעה ברגי ראש שטוחים 8-32 ואת האומים המתאימים.

  2. גוזרים את קצוות הגומי כך שלא יפריעו לפעולת המשאבות (בערך באמצע), ואז מצמידים את קצוות הגומי כך שיכסו את קצוות המשאבות.

    פומפות

    איור 10. פותח סתימות עם קצה גומי

  3. מרכיבים את מתקני הטלפון באמצעות ברגי ראש שטוח כדי לחבר את מנגנוני הבוכנה למתקני המתכת. מוודאים שהברגים מהודקים עם האומים המתאימים.

    תושבות לטלפונים ניידים שהורכבו

    איור 11. תושבות לטלפונים ניידים שהורכבו

שלב 4: לוח הצמצם

כדי להרכיב את לוחית הצמצם הקדמית:

  1. אוספים את החומרה של לוחית הצמצם הקדמית שמוצגת באיור 12.

    חלקים של לוח הצמצם הקדמי

    איור 12. חלקים של הרכבת לוחית הצמצם הקדמית

    החלקים כוללים את תושבות הטלפון המורכבות, לוח תושבת הטלפון, ארבעה ברגי ניילון קצרים וארבעה אומים מניילון (שנדרשים כדי למנוע מהברגים לבלוט דרך החלק האחורי של לוח הפלסטיק).

  2. בעזרת הברגים והאומים, מקבעים את תושבות הטלפון המורכבות ללוח תושבות הטלפון. מוודאים שהטלפון מותקן בכיוון הנכון, כמו שמוצג באיור 13.

    לוחית צמצם קדמית מורכבת

    איור 13. לוחית צמצם קדמית מורכבת

שלב 5: מתקן לטאבלט

כדי להרכיב את התושבת לשולחן:

  1. אוספים את חלקי ההרכבה של תושבת הטאבלט שמוצגים באיור 14.

    חלקים של תושבת לטאבלט

    איור 14. חלקי הרכבה של תושבת לטאבלט

    החלקים של הציוד כוללים את לוח הגב, תושבת לטאבלט, בוכנה אחת, קצה גומי אחד, שני ברגי ראש שטוחים 8-32, שני ברגי ניילון קצרים ואת האומים המתאימים.

  2. מרכיבים את התושבת לטאבלט באמצעות ברגי ראש שטוח כדי לחבר את מנגנוני הבוכנה לתושבת המתכת. מוודאים שהברגים מהודקים עם האומים המתאימים.

  3. בעזרת הברגים והאומים, מקבעים את מתקן הטאבלט המורכב ללוח האחורי. מוודאים שהתושבות לטלפון נמצאות בכיוון הנכון, כמו שמוצג באיור 15.

    תושבת לטאבלט בהרכבה

    איור 15. תושבת לטאבלט בהרכבה

שלב 6: התקנת הנורות

כדי להתקין את הנורות:

  1. מתקינים את מסיטי האור בלוחות העליון והתחתון כמו שמוצג באיור 16.

    התקנת מסיטי אור

    איור 16. מחיצות אור מותקנות בלוחות העליונים והתחתונים

  2. מהדקים את מסיטי האור על ידי לחיצה על הפין לתוך החור הקטן בלשונית המלבנית שיוצאת דרך החריץ בלוח העליון והתחתון, כמו באיור 17.

    נוספה סיכה

    איור 17. תקריב של פין מוחדר בכרטיסיית תושבת LED בחלק החיצוני של הקופסה

    כדי לקבע את הפינים, לוחצים בעדינות על הפינים עד שמרגישים לחץ על הפלסטיק כשהפינים מתקבעים במקומם.

    פליירים

    איור 18. צבת שמשמשת להתקנת הפין

  3. מרכיבים את הלוחות הקדמי והצדדי בכיוון הנכון כמו שמוצג באיור 19, ומדביקים אותם מבחוץ.

    כיוון הצבת האור

    איור 19. כיוון הצבת האור

  4. מחברים את כבל החשמל לפס נורית ההפעלה, כמו שמוצג באיור 20.

    כבל חשמל של התאורה

    איור 20. כבל חשמל של התאורה

    משחילים את כבל החשמל דרך החור בלוח השמאלי. לכבל החשמל יש מחברים שונים בכל קצה: המחבר הצר יותר מתחבר לפס התאורה LED והמחבר הגדול יותר מתחבר למתאם המתח.

    כבל חשמל

    איור 21. כבל החשמל יוצא ממתק הבדיקה בצד שמאל

  5. מחברים את החוטים של הנורות העליונות לנורות התחתונות ומקבעים את הכבל בלוח השמאלי.

    כבל קל

    איור 22. כבל תאורה מעוגן בחלונית השמאלית

שלב 7: הרכבת הפאנלים הצדדיים, התושבת לטאבלט והידיות

כדי להרכיב את הפאנלים הצדדיים של ITS-in-a-box, את תושבת הטאבלט ואת הידיות באמצעות ברגים:

  1. מרכיבים את כל הצדדים של הפאנלים ומדביקים אותם יחד כמו שמוצג באיור 23.

    קופסה עם סרט דביק להרכבה

    איור 23. מערכת ITS-in-a-box מודבקת יחד לצורך הרכבה

  2. משתמשים במקדחה חשמלית כדי ליצור חורי סימון על סמך החורים הקיימים. חשוב לוודא שהחורים המקדימים גדולים מספיק לברגי 4-40, כדי שהפלסטיק מסוג ABS לא ייסדק כשמכניסים את הברגים.

    קידוח חורים

    איור 24. קדיחת חורי סימון לברגי 4-40

  3. מבריגים את כל הפאנלים יחד באמצעות ברגי הקשה עצמית 4-40.

    מקדחה

    איור 25. ברגי 4-40 להרכבת הפאנלים

  4. אוספים את החלקים של הידית שמוצגים באיור 26.

    חלקי ידית

    איור 26. חלקי ידית

    החלקים כוללים ארבעה חלקים מלבניים מפלסטיק וארבעה ברגים בגודל 6-32.

  5. מרכיבים את הידיות כמו שמוצג באיור 27.

    כינוי מורכב

    איור 27. כינוי מורכב

שלב 8: הרכבה והגדרה סופיות

כדי לבצע את ההרכבה הסופית של ITS-in-a-box:

  1. מחברים את התושבת לטאבלט ללוח האחורי ומשנים את הגובה בהתאם לגודל הטאבלט.

    תושבת לטאבלט בגב הקופסה

    איור 28. טאבלט בתושבת לטאבלט בחלק האחורי של הקופסה

  2. מחברים את לוח הצמצם המרובע ללא תושבות לטלפון לחלק הקדמי של הקופסה באמצעות ברגי 4-40, כמו שמוצג באיור 29.

    חלונית קדמית מורכבת

    איור 29. הפאנל הקדמי של הטלפון כשהוא מורכב

  3. מכניסים את הצמצם מלוח Gator בגודל 10x10 ס"מ כך שיתאים לצמצם המצלמה של ה-DUT.

    מִפְתח צמצם של לוח Gator

    איור 30. מערכת ITS-in-a-box עם צמצם לוח Gator מותקן

  4. מיישרים את המצלמה עם פתח הצמצם ומכניסים את הטלפון. בודקים את ההתאמה דרך הפתח בטאבלט.

    קופסה עם טלפון אחד

    איור 31. מערכת ITS-in-a-box עם טלפון אחד מותקן

  5. חותכים פתחים למצלמות. אפשר לחתוך פתח אחד (לצורך בדיקה של טלפון אחד) או שני פתחים (לצורך בדיקה של שני טלפונים). באיור 31 מוצגים צמצמי המצלמות הקדמיות והאחוריות של Pixel ו-Pixel XL. למצלמה הקדמית יש צמצם עגול כי אין פלאש או לייזר, ולמצלמה האחורית יש צמצם מלבני שמאפשר לפלאש וללייזר לפעול בלי להיחסם.

    צמצמים לדוגמה

    איור 32. דוגמאות לצמצמים של המצלמה הקדמית והמצלמה האחורית

    קופסה עם שני טלפונים

    אפשר גם לחתוך צמצמים מקרטון ולצבוע אותם בשחור באמצעות טושים, צבע ספריי או צבע אקרילי, כמו שמוצג באיור 33.

    איור 33. דוגמה לפתחי קרטון למצלמה הקדמית ולמצלמה האחורית

    דוגמה לפתח של Cardboard

  6. באמצעות מד לוקס דיגיטלי, בודקים את הלוקס של נורות ה-LED. בדוגמה הזו נעשה שימוש ב-YF-1065 של Contempo View.

    YF-1065 by Contempo Views

    איור 34. YF-1065 by Contempo Views

  7. מניחים את מד האור בצד הטאבלט ומסובבים אותו ל-2,000 לוקס כדי למדוד את האור. רמת התאורה צריכה להיות בסביבות 100 עד 300 לוקס. כל ערך נמוך משמעותית הוא עמום מדי לבדיקה, ועלול להוביל לכשלים בבדיקה.

    מד לוקס

    איור 35. מד אור שמודד את האור מאחור עם מתקן לטאבלט

  8. פועלים לפי השלב המתאים בהתאם לערך הלוקס שנמדד:

    • אם התאורה ברמה הנכונה, מבריגים את הלוחות הקדמי והאחורי למקומם.
    • אם עוצמת האור לא נכונה, צריך לבדוק שמספר החלק של ה-LED ושל ספק הכוח נכונים.

דברים שכדאי לשים לב אליהם

ריכזנו כאן כמה דוגמאות לשגיאות נפוצות בתהליך הייצור שעלולות לגרום לכך שהבדיקות יהיו לא אמינות.

  • הפאנל האחורי עם חורים בטאבלט. כתוצאה מכך, הבדיקה find_circle נכשלת בגלל המעגלים הנוספים שנוצרו על ידי חורי הברגים.

    לוח אחורי עם חורים

    איור 36. לוח אחורי עם חורים

  • חסרים פינים. כתוצאה מכך, מחיצות האור עלולות להחליק החוצה במהלך המשלוח.

    חסר פין

    איור 37. חסר פין בלוח להפחתת אור

  • ספק כוח שלא מופיע ברשימת UL. שימוש במטען שמופיע ברשימת UL מבטיח שהמטען לא יישבר.

    ספק כוח בתקן UL

    איור 38. דוגמה לספק כוח שמופיע ברשימת UL