Nhận hộp có trường nhìn thông thường (RFoV)

ITS-in-a-box (phiên bản 1a) có góc nhìn thông thường (RFoV) bao gồm một hộp nhựa được cắt bằng tia laser từ bản vẽ thiết kế có sự trợ giúp của máy tính (CAD), một bảng máy tính bảng và một thiết bị đang được kiểm thử (DUT). ITS-in-a-box RFoV được thiết kế để kiểm thử các thiết bị có FoV dưới 90 độ (RFoV). Bạn có thể mua một ITS-in-a-box hoặc tự xây dựng.

Phiên bản rev1b của RFOV ITS-in-a-box bổ sung tính năng hỗ trợ cho các thành phần dạng mô-đun và tương thích với giá đỡ ống kính tele.

Rev1b

Hình 1. Hộp ITS có trường nhìn thông thường (RFoV) phiên bản 1b

Nhật ký sửa đổi

Bảng sau đây mô tả nhật ký sửa đổi của hộp có trường nhìn thông thường và bao gồm các đường liên kết tải xuống cho từng phiên bản của tệp sản xuất.

Ngày Bản sửa đổi Tải tệp sản xuất xuống Nhật ký thay đổi
Tháng 9/2024 1b Tệp sản xuất phiên bản 1b
  • Áp dụng hệ thống mô-đun (thêm cơ chế gắn cho các tiện ích mô-đun).
Tháng 5 năm 2019 1a Tệp phát hành chính thức phiên bản 1a
  • Đã thay đổi vật liệu từ Delrin sang ABS.
  • Thay đổi thiết kế giá đỡ đèn để linh hoạt hơn và có thể xử lý nhiều kích thước thanh đèn LED.
  • Thống nhất các phương thức xây dựng.
  • Đơn giản hoá thiết kế giá đỡ máy tính bảng và giúp giá đỡ chắc chắn hơn.
  • Tăng độ sâu của giá đỡ điện thoại để có thể gắn các điện thoại dày hơn.
  • Tăng số lượng lựa chọn lắp đặt trên bảng điều khiển phía trước để phù hợp với giá đỡ cho thiết bị có thể gập lại và điện thoại có độ bền cao.

Mua một RFoV ITS-in-a-box

Bạn nên mua một RFoV ITS-in-a-box (bản sửa đổi 1a) của một trong các nhà cung cấp đủ tiêu chuẩn sau.

  • Byte Bridge Inc.
    Hoa Kỳ: 1502 Crocker Ave, Hayward, CA 94544-7037
    Trung Quốc: 22F #06-08, Hongwell International Plaza Tower A, 1600 West Zhongshan Road, Xuhui, Shanghai, 200235
    www.bytebt.com
    androidpartner@bytebt.com
    Hoa Kỳ: +1-510-373-8899
    Trung Quốc: +86-400-8866-490

  • JFT CO LTD 捷富通科技有限公司 (trước đây là MYWAY DESIGN)
    Số 40, hẻm 22, đường Heai, thị trấn Wujing, quận Minhang, Thượng Hải, Trung Quốc
    Tầng 4, No. 163, Fu-Ying Road, XinZhuang District, New Taipei City 242, Taiwan
    www.jftcoltd.com
    service@jfttec.com hoặc its.sales@jfttec.com
    Trung Quốc:+86-021-64909136
    Đài Loan: 886-2-29089060

Video hướng dẫn

Đây là video hướng dẫn cách thiết lập ITS-in-a-box RFoV.

Tạo một ITS-in-a-box RFoV

Thay vì mua một ITS-in-a-box RFoV, bạn có thể tự tạo. Phần này cung cấp hướng dẫn chi tiết về cách lắp ráp.

Bản vẽ cơ khí

ITS-in-a-box bao gồm một DUT, một bảng máy tính bảng, một hệ thống chiếu sáng bên trong và một hộp nhựa được cắt bằng laser từ bản vẽ CAD (như trong Hình 1).

Để bắt đầu, hãy tải tệp sản xuất mới nhất xuống.

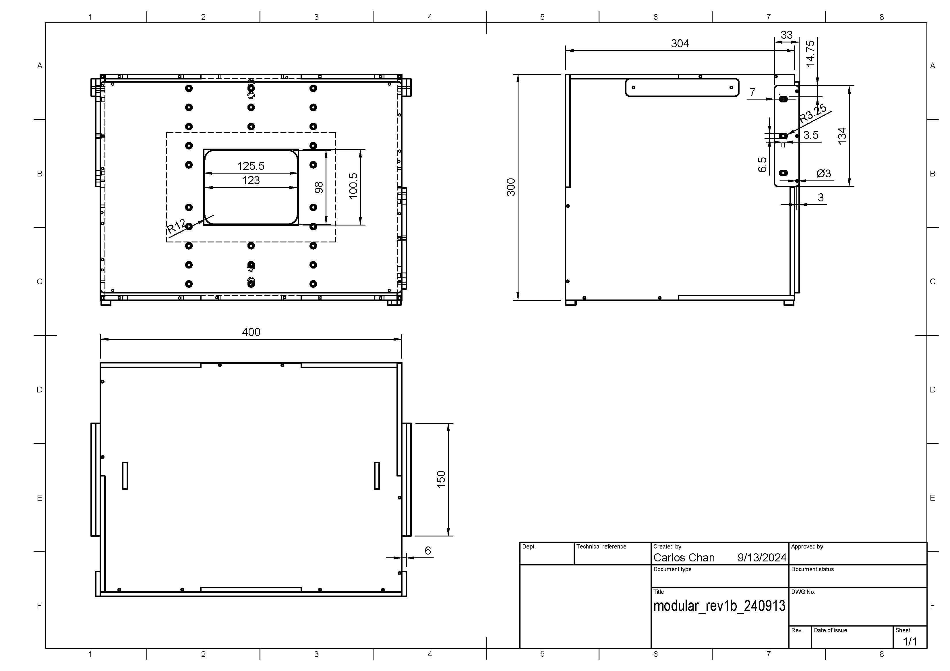
Bản vẽ cơ khí của ITS-in-a-box

Hình 2. Bản vẽ cơ khí của ITS-in-a-box

Mua phần cứng trong bảng kê khai thành phần (BOM). Cắt các miếng nhựa và nhựa vinyl.

Các công cụ bắt buộc

Có sẵn các công cụ sau:

  • Tua vít đầu Torx
  • Khoan điện
  • Keo ABS
  • Kìm mũi nhọn
  • Dao X-ACTO
  • Kềm cắt dây hoặc kéo (không bắt buộc)

Bước 1: Dán miếng nhựa vinyl và chân đế

Dán miếng nhựa vinyl có màu lên mặt nhẵn của acrylonitrile butadiene styrene (ABS) và cắt các lỗ cần thiết như trong Hình 3 và 4. Dán miếng nhựa vinyl màu trắng có lỗ hình chữ nhật lớn ở mặt hộp dành cho máy tính bảng và miếng nhựa vinyl màu đen có lỗ hình tròn ở mặt hộp dành cho thiết bị di động. Dán tấm nhựa vinyl màu xám lên các tấm bên như trong Hình 4 và dán các chân đế vào 4 góc của tấm dưới cùng như trong Hình 5. Để biết thêm thông tin, hãy xem wikiHow.

Vinyl ở mặt trước và mặt sau

Hình 3. Đĩa than màu đen trên bảng điều khiển phía trước (bên trái) và đĩa than màu trắng trên bảng điều khiển phía sau (bên phải)

Bảng điều khiển bên

Hình 4. Vinyl màu xám trên các tấm bên

Bảng điều khiển dưới cùng

Hình 5. Chân ở 4 góc của bảng dưới cùng

Bước 2: Ánh sáng

Cách lắp ráp thành phần chiếu sáng ITS-in-a-box:

  1. Thu thập phần cứng chiếu sáng như trong Hình 6.

    Phụ tùng lắp ráp đèn

    Hình 6. Phụ tùng lắp ráp đèn

    Phần cứng bao gồm các thanh đèn LED, vách ngăn đèn bằng nhựa, giá đỡ đèn bằng nhựa, kẹp đèn bằng nhựa hoặc kim loại có trong bộ đèn LED và 4 ốc vít 6-32 có đai ốc đầu tròn.

  2. Bắt các kẹp đèn vào các vách ngăn bằng nhựa như trong Hình 7. Cố định các kẹp bằng đai ốc hình quả đấu ở phía bên kia của vách ngăn.

    Vách ngăn ánh sáng

    Hình 7. Vách ngăn bằng nhựa có gắn kẹp đèn

  3. Để lắp ráp đèn, hãy gắn vách ngăn bằng nhựa vào mặt sau của thanh đèn LED bằng kẹp đèn.

    Đèn tuýp

    Hình 8. Dàn đèn có đèn hướng xuống dưới và các vít được luồn qua các kẹp

Khi bạn lắp ráp bộ phận chiếu sáng, các thanh đèn LED phải hướng xuống dưới và các vách ngăn bằng nhựa phải che phủ bề mặt sáng bóng, phản chiếu ở mặt sau của thanh đèn LED.

Bước 3: Giá đỡ điện thoại

Cách lắp ráp giá đỡ điện thoại:

  1. Thu thập các mục bắt buộc như trong Hình 9.

    Mặt hàng giá đỡ điện thoại

    Hình 9. Mặt hàng giá đỡ điện thoại

    Bộ phần cứng bao gồm 2 giá đỡ điện thoại bằng kim loại, 2 pít tông, 2 đầu cao su, 4 vít đầu tròn 8-32 và các đai ốc tương ứng.

  2. Cắt đầu cao su sao cho đủ ngắn để không cản trở hoạt động của pít-tông (cắt khoảng một nửa), sau đó gắn đầu cao su vào đầu pít-tông.

    Bơm thụt

    Hình 10. Ống thụt có đầu cao su

  3. Lắp ráp giá đỡ điện thoại bằng cách dùng vít đầu tròn để gắn cơ cấu pít tông vào giá đỡ kim loại. Đảm bảo rằng các vít được siết chặt bằng các đai ốc tương ứng.

    Giá đỡ điện thoại đã lắp ráp

    Hình 11. Giá đỡ điện thoại đã lắp ráp

Bước 4: Tấm khẩu độ

Cách lắp ráp tấm khẩu độ trước:

  1. Thu thập phần cứng của tấm khẩu độ trước như trong Hình 12.

    Các bộ phận của tấm khẩu độ phía trước

    Hình 12. Các bộ phận của cụm tấm khẩu độ trước

    Phần cứng bao gồm các giá đỡ điện thoại đã lắp ráp, bảng giá đỡ điện thoại, 4 ốc vít nylon ngắn và 4 đai ốc nylon (cần thiết để giữ cho ốc vít không nhô ra qua mặt sau của tấm nhựa).

  2. Dùng vít và đai ốc để cố định giá đỡ điện thoại đã lắp ráp vào bảng giá đỡ điện thoại. Đảm bảo rằng giá đỡ điện thoại được lắp đúng hướng như trong Hình 13.

    Tấm khẩu độ trước đã lắp ráp

    Hình 13. Tấm khẩu độ trước đã lắp ráp

Bước 5: Giá đỡ máy tính bảng

Cách lắp ráp giá đỡ trên bàn:

  1. Thu thập các phần cứng của cụm giá đỡ máy tính bảng như trong Hình 14.

    Linh kiện giá đỡ máy tính bảng

    Hình 14. Các bộ phận lắp ráp giá đỡ máy tính bảng

    Phần cứng bao gồm bảng điều khiển phía sau, giá đỡ máy tính bảng, một pít tông, một đầu cao su, hai vít đầu tròn 8-32, hai vít nylon ngắn và các đai ốc tương ứng.

  2. Lắp giá đỡ máy tính bảng bằng cách dùng vít đầu tròn để gắn cơ cấu pít tông vào giá đỡ kim loại. Đảm bảo bạn siết chặt các vít bằng các đai ốc tương ứng.

  3. Dùng vít và đai ốc để cố định giá đỡ máy tính bảng đã lắp ráp vào mặt sau của bảng điều khiển. Đảm bảo rằng giá đỡ điện thoại được lắp theo đúng hướng như trong Hình 15.

    Giá đỡ máy tính bảng đã lắp ráp

    Hình 15. Giá đỡ máy tính bảng đã lắp ráp

Bước 6: Lắp đặt đèn

Cách lắp đặt đèn:

  1. Lắp đặt tấm chắn sáng trên các tấm trên và dưới như trong Hình 16.

    Đã lắp đặt tấm chắn sáng

    Hình 16. Vách ngăn ánh sáng được lắp đặt ở các tấm trên và dưới

  2. Cố định vách ngăn ánh sáng bằng cách bóp chốt vào lỗ nhỏ trên thẻ hình chữ nhật kéo dài qua khe ở bảng điều khiển trên cùng và dưới cùng như trong Hình 17.

    Ghim đã chèn

    Hình 17. Ảnh cận cảnh chốt được cắm vào thẻ giá đỡ đèn LED ở bên ngoài hộp

    Để cố định các chốt, hãy nhẹ nhàng bóp các chốt cho đến khi bạn cảm thấy có áp lực lên nhựa khi các chốt được cố định vào vị trí.

    Kìm

    Hình 18. Kìm dùng để lắp chốt

  3. Lắp ráp các tấm mặt trước và mặt bên theo đúng hướng như trong Hình 19, rồi dán chúng lại với nhau từ bên ngoài.

    Hướng đặt đèn

    Hình 19. Hướng đặt đèn

  4. Gắn dây nguồn vào thanh đèn nguồn như trong Hình 20.

    Dây nguồn của đèn

    Hình 20. Dây nguồn của đèn

    Luồn dây nguồn qua lỗ trên bảng điều khiển bên trái. Dây nguồn có các giắc cắm khác nhau ở mỗi đầu: giắc cắm hẹp hơn gắn vào thanh đèn LED và giắc cắm lớn hơn gắn vào bộ sạc nguồn.

    Dây điện

    Hình 21. Dây nguồn cắm vào giàn thử nghiệm ở bên trái

  5. Nối dây các đèn trên với các đèn dưới và cố định cáp trên bảng điều khiển bên trái.

    Dây điện

    Hình 22. Dây đèn được cố định trên bảng điều khiển bên trái

Bước 7: Lắp ráp các tấm bên, giá đỡ máy tính bảng và tay cầm

Cách lắp ráp các tấm bên, giá đỡ máy tính bảng và tay cầm của ITS-in-a-box bằng vít:

  1. Lắp ráp tất cả các mặt của tấm pin và dán chúng lại với nhau như trong Hình 23.

    Hộp được dán băng dính để lắp ráp

    Hình 23. ITS-in-a-box được dán lại với nhau để lắp ráp

  2. Dùng máy khoan điện để tạo các lỗ dẫn dựa trên các lỗ hiện có. Đảm bảo rằng các lỗ dẫn đủ lớn cho vít 4-40 để nhựa ABS không bị nứt khi bạn lắp vít.

    Khoan lỗ

    Hình 24. Khoan các lỗ dẫn hướng cho vít 4-40

  3. Dùng vít tự khoan 4-40 để bắt tất cả các tấm lại với nhau.

    Khoan điện

    Hình 25. Vít 4-40 để lắp ráp các tấm

  4. Thu thập các bộ phận tay cầm như trong Hình 26.

    Các bộ phận của tay cầm

    Hình 26. Các bộ phận của tay cầm

    Bộ phụ kiện bao gồm 4 miếng nhựa hình chữ nhật và 4 vít 6-32.

  5. Lắp ráp tay cầm như trong Hình 27.

    Tay cầm đã lắp ráp

    Hình 27. Tay cầm đã lắp ráp

Bước 8: Lắp ráp và thiết lập lần cuối

Cách lắp ráp cuối cùng ITS-in-a-box:

  1. Gắn giá đỡ máy tính bảng vào bảng điều khiển phía sau và điều chỉnh chiều cao theo kích thước máy tính bảng.

    Giá đỡ máy tính bảng ở mặt sau của hộp

    Hình 28. Máy tính bảng nằm trong giá đỡ máy tính bảng ở mặt sau của hộp

  2. Gắn bảng điều khiển khẩu độ vuông không có giá đỡ điện thoại vào mặt trước của hộp bằng vít 4-40 như trong Hình 29.

    Mặt trước đã lắp ráp

    Hình 29. Mặt trước của điện thoại đã được lắp ráp

  3. Lắp khẩu độ của tấm xốp có kích thước 10x10 cm sao cho vừa với khẩu độ camera của DUT.

    Khẩu độ của bảng Gator

    Hình 30. ITS-in-a-box có lỗ hở của bảng gator đã được lắp đặt

  4. Lắp điện thoại bằng cách căn chỉnh camera với lỗ mở. Kiểm tra độ thẳng hàng qua khe hở của máy tính bảng.

    Hộp đựng một chiếc điện thoại

    Hình 31. ITS-in-a-box có một điện thoại được cài đặt

  5. Cắt các lỗ khẩu độ cho camera. Bạn có thể cắt một lỗ (để kiểm thử một điện thoại) hoặc hai lỗ (để kiểm thử hai điện thoại). Khẩu độ của camera trước và sau trên Pixel và Pixel XL được minh hoạ trong Hình 31. Camera trước có khẩu độ tròn vì không có đèn flash hoặc tia laser, trong khi camera sau có khẩu độ hình chữ nhật cho phép đèn flash và tia laser hoạt động mà không bị chặn.

    Khẩu độ mẫu

    Hình 32. Khẩu độ mẫu cho cả camera trước và sau

    Hộp đựng hai chiếc điện thoại

    Ngoài ra, bạn cũng có thể cắt các lỗ khẩu độ từ bìa cứng và sơn màu đen bằng bút đánh dấu, sơn phun hoặc acrylic như trong Hình 33.

    Hình 33. Khẩu độ mẫu của cả camera trước và sau

    Lỗ mở của Cardboard mẫu

  6. Sử dụng máy đo độ rọi kỹ thuật số để kiểm tra độ rọi của đèn LED. YF-1065 của Contempo View được dùng trong ví dụ này.

    YF-1065 của Contempo Views

    Hình 34. YF-1065 của Contempo Views

  7. Đặt máy đo ánh sáng ở phía máy tính bảng và xoay đến 2000 lux để đo ánh sáng. Mức độ lux nên ở khoảng 100 – 300 lux. Nếu thấp hơn đáng kể thì ánh sáng sẽ quá yếu để kiểm thử và có thể dẫn đến lỗi kiểm thử.

    Máy đo độ rọi

    Hình 35. Máy đo độ rọi đo ánh sáng từ phía sau có giá đỡ máy tính bảng

  8. Hãy làm theo bước thích hợp tuỳ thuộc vào giá trị lux đo được:

    • Nếu đèn ở mức phù hợp, hãy vặn tấm trước và tấm sau vào vị trí.
    • Nếu đèn ở mức không chính xác, hãy kiểm tra để đảm bảo rằng số hiệu linh kiện của đèn LED và nguồn điện là chính xác.

Những điều cần lưu ý

Sau đây là ví dụ về các lỗi sản xuất thường gặp có thể khiến các bài kiểm thử không ổn định.

  • Mặt sau có các lỗ cắm máy tính bảng. Điều này khiến thử nghiệm find_circle thất bại do các vòng tròn thừa được tạo bởi các lỗ bắt vít.

    Tấm mặt sau có lỗ

    Hình 36. Mặt sau có các lỗ thủng

  • Thiếu chốt gỗ. Điều này khiến các vách ngăn ánh sáng bị trượt ra trong quá trình vận chuyển.

    Thiếu chốt

    Hình 37. Thiếu chốt trên vách ngăn ánh sáng

  • Bộ nguồn không có chứng nhận UL. Việc sử dụng nguồn điện có chứng nhận UL đảm bảo nguồn điện không bị hỏng.

    Nguồn điện được UL chứng nhận

    Hình 38. Ví dụ về bộ nguồn được UL chứng nhận