Получите поле обычного поля зрения (RFoV)

Система ITS-in-a-box с обычным полем зрения (RFoV) (версия 1a) состоит из пластикового корпуса, вырезанного лазером по чертежам, созданным в системе автоматизированного проектирования (САПР), планшета и тестируемого устройства (DUT). Система ITS-in-a-box с обычным полем зрения (RFoV) предназначена для тестирования устройств с полем зрения (RFoV) менее 90 градусов (RFoV). Вы можете приобрести систему ITS-in-a-box или собрать свою собственную.

Версия rev1b RFOV ITS-in-a-box добавляет поддержку модульных компонентов и совместима с удлинительной установкой для телескопа .

Rev1b

Рисунок 1. Регулярное поле зрения (RFoV) ITS box Rev1b

История изменений

В следующей таблице описывается история изменений обычного поля зрения и содержатся ссылки для загрузки каждой версии производственных файлов.

Дата Пересмотр Загрузка производственного файла Журнал изменений
Сентябрь 2024 г. Производственные файлы версии 1b
  • Принятая модульная система (добавлен механизм крепления для модульных расширений).
Май 2019 г. Производственные файлы Rev. 1a
  • Изменен материал с Delrin на ABS.
  • Изменена конструкция держателя лампы, чтобы сделать ее более гибкой и подходящей для светодиодных линеек разных размеров.
  • Унифицированы методы строительства.
  • Упростили конструкцию крепления планшета и сделали ее более прочной.
  • Увеличена глубина крепления телефона для поддержки более толстых телефонов.
  • Расширены возможности монтажа на передней панели для установки крепления для складных телефонов и телефонов повышенной прочности.

Приобрести RFoV ITS-in-a-box

Мы рекомендуем приобрести RFoV ITS-in-a-box (редакция 1a) у одного из следующих квалифицированных поставщиков.

  • Байт Бридж Инк.
    США: 1502 Crocker Ave, Hayward, CA 94544-7037
    Китай: 22 этаж, № 06-08, Hongwell International Plaza Tower A, 1600 West Zhongshan Road, Сюйхуэй, Шанхай, 200235
    www.bytebt.com
    androidpartner@bytebt.com
    США: +1-510-373-8899
    Китай: +86-400-8866-490

  • JFT CO LTD 捷富通科技有限公司 (ранее известная как MYWAY DESIGN)
    № 40, переулок 22, Хэй-роуд, город Уцзин, район Минхан, Шанхай, Китай
    4F., № 163, улица Фу-Ин, район Синьчжуан, город Нью-Тайбэй 242, Тайвань
    www.jftcoltd.com
    service@jfttec.com или its.sales@jfttec.com
    Китай:+86-021-64909136
    Тайвань: 886-2-29089060

Видеоурок

Это видеоруководство по настройке RFoV ITS-in-a-box.

Создайте RFoV ITS-in-a-box

Вместо покупки готового комплекта RFoV ITS-in-a-box вы можете собрать свой собственный. В этом разделе приведены подробные инструкции по сборке.

Механические чертежи

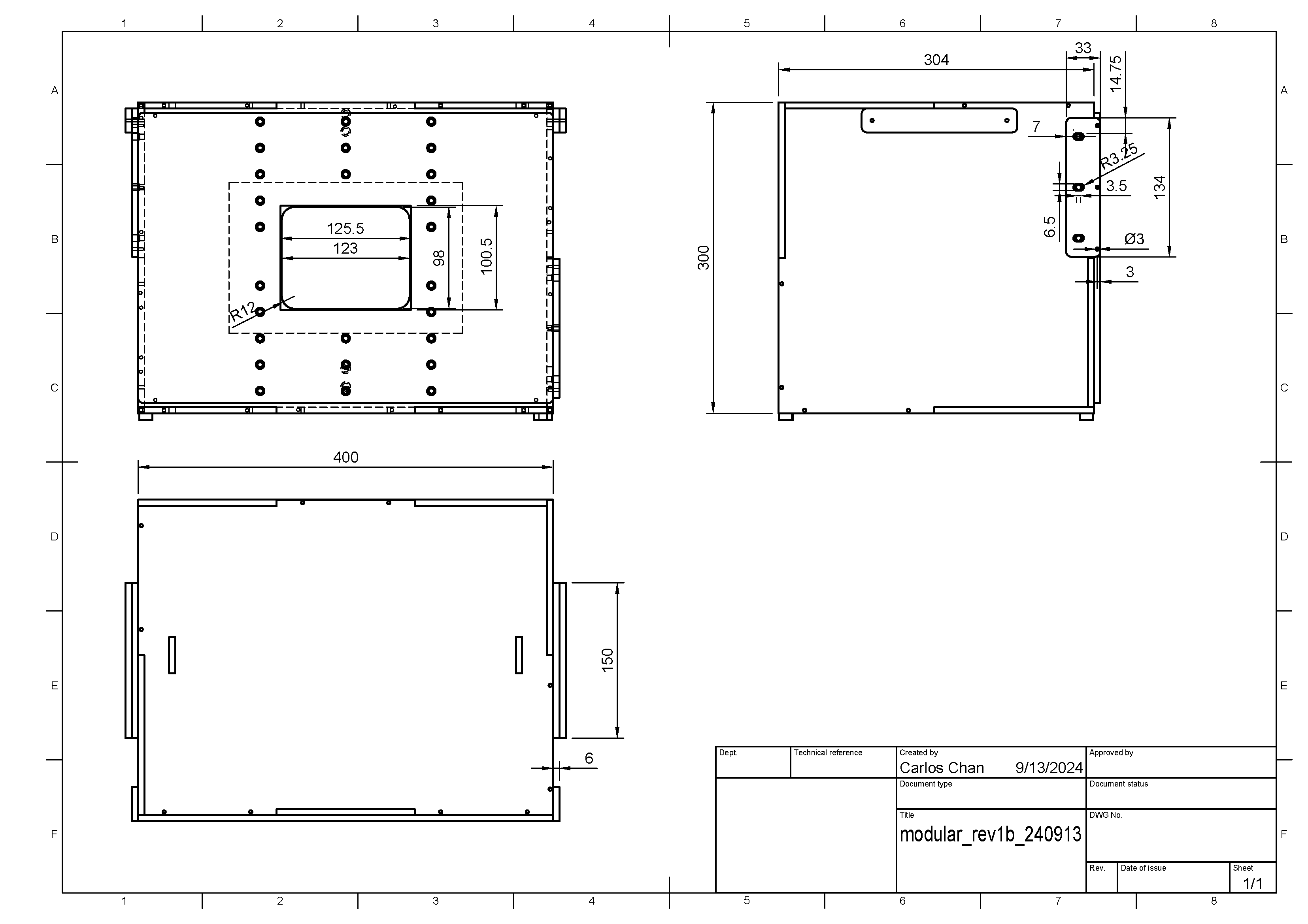
ITS-in-a-box состоит из проверяемого устройства, планшета, внутренней системы освещения и пластикового корпуса, вырезанного лазером по чертежам САПР (показано на рисунке 1).

Для начала загрузите последнюю версию файла.

Механический чертеж ITS-in-a-box

Рисунок 2. Механический чертеж ITS-in-a-box

Приобретите фурнитуру по спецификации материалов (BOM). Вырежьте пластиковые и виниловые детали.

Необходимые инструменты

Имейте под рукой следующие инструменты:

  • Отвертка Torx
  • Электрическая дрель
  • АБС-клей
  • Плоскогубцы с игольчатыми носами
  • нож X-ACTO
  • Кусачки или ножницы (по желанию)

Шаг 1: Нанесите винил и приклейте ножки

Наклейте цветной винил на гладкую сторону акрилонитрилбутадиенстирола (АБС) и вырежьте необходимые отверстия, как показано на рисунках 3 и 4. Наклейте белый винил с большим прямоугольным отверстием на сторону планшета, а чёрный винил с круглым отверстием – на сторону мобильного устройства. Наклейте серый винил на боковые панели, как показано на рисунке 4, и приклейте ножки к четырём углам нижней панели, как показано на рисунке 5. Подробнее см. wikiHow .

Винил на передней и задней панелях

Рисунок 3. Черный винил на передней панели (слева) и белый винил на задней панели (справа)

Боковые панели

Рисунок 4. Серый винил на боковых панелях.

Нижняя панель

Рисунок 5. Ножки на четырех углах нижней панели.

Шаг 2: Освещение

Чтобы собрать компонент освещения ITS-in-a-box:

  1. Соберите осветительное оборудование, как показано на рисунке 6.

    Детали для легкой сборки

    Рисунок 6. Детали сборки светильника

    В комплект крепежных деталей входят светодиодные планки, пластиковые экраны, пластиковые крепления для светильников, пластиковые или металлические зажимы для светильников, входящие в комплект светодиодного освещения, а также четыре винта 6-32 с гайками с головками под орех.

  2. Прикрепите зажимы светильника к пластиковым перегородкам, как показано на рисунке 7. Закрепите зажимы с помощью колпачковых гаек на другой стороне перегородок.

    Световые барьеры

    Рисунок 7. Пластиковые перегородки с прикрепленными зажимами для ламп.

  3. Чтобы собрать светильники, прикрепите пластиковые перегородки к задней части светодиодных планок с помощью зажимов.

    Световые полосы

    Рисунок 8. Световые планки с лампами, направленными вниз, и винтами, вкрученными в зажимы.

После сборки осветительного компонента светодиодные планки должны быть направлены вниз, а пластиковые перегородки должны закрывать блестящую отражающую поверхность на задней стороне светодиодной планки.

Шаг 3: Крепления для телефона

Чтобы собрать крепления для телефона:

  1. Соберите необходимые предметы, как показано на рисунке 9.

    Крепления для телефона

    Рисунок 9. Элементы крепления телефона

    В комплект крепежа входят два металлических держателя для телефона, два плунжера, два резиновых наконечника, четыре винта с плоской головкой 8-32 и соответствующие гайки.

  2. Обрежьте резиновые наконечники достаточно коротко, чтобы не мешать работе плунжера (примерно наполовину), затем наденьте резиновые наконечники так, чтобы они закрывали кончики плунжеров.

    Плунжеры

    Рисунок 10. Плунжеры с резиновыми наконечниками

  3. Соберите крепления телефона, используя винты с плоской головкой, чтобы закрепить механизмы плунжеров на металлических креплениях. Убедитесь, что винты затянуты соответствующими гайками.

    Собранные крепления для телефонов

    Рисунок 11. Собранные крепления для телефона

Шаг 4: Диафрагменная пластина

Чтобы собрать переднюю пластину проема:

  1. Соберите крепежные элементы пластины переднего отверстия, показанные на рисунке 12.

    Детали передней проемной пластины

    Рисунок 12. Детали узла передней проемной пластины

    В комплект крепежа входят собранные крепления для телефона, панель крепления для телефона, четыре коротких нейлоновых винта и четыре нейлоновые гайки (необходимы для того, чтобы винты не выступали через заднюю часть пластиковой пластины).

  2. Закрепите собранные держатели телефона на панели крепления с помощью винтов и гаек. Убедитесь, что держатели расположены правильно, как показано на рисунке 13.

    Собранная передняя проемная пластина

    Рисунок 13. Собранная передняя проемная пластина

Шаг 5: Крепление планшета

Чтобы собрать настольное крепление:

  1. Соберите крепеж для крепления планшета, показанный на рисунке 14.

    Детали крепления для планшета

    Рисунок 14. Детали узла крепления планшета

    В комплект крепежа входят задняя панель, крепление для планшета, один плунжер, один резиновый наконечник, два винта с плоской головкой 8-32, два коротких нейлоновых винта и соответствующие гайки.

  2. Соберите крепление для планшета, прикрепив механизмы плунжера к металлическому креплению винтами с плоскоконической головкой. Убедитесь, что винты затянуты соответствующими гайками.

  3. Закрепите собранное крепление для планшета на задней панели с помощью винтов и гаек. Убедитесь, что крепления для телефона расположены правильно, как показано на рисунке 15.

    Собранное крепление для планшета

    Рисунок 15. Собранное крепление для планшета

Шаг 6: Установка освещения

Чтобы установить освещение:

  1. Установите светоотражатели на верхнюю и нижнюю панели, как показано на рисунке 16.

    Установлены световые перегородки

    Рисунок 16. Световые экраны, установленные на верхней и нижней панелях.

  2. Закрепите светоотражатели, вставив штифт в небольшое отверстие на прямоугольном язычке, который проходит через прорезь в верхней и нижней панели, как показано на рисунке 17.

    Вставленный штифт

    Рисунок 17. Крупный план вставленного штифта в крепление светодиода на внешней стороне коробки.

    Чтобы закрепить штифты, аккуратно сожмите их, пока не почувствуете давление на пластик, когда штифты зафиксированы на месте.

    Плоскогубцы

    Рисунок 18. Плоскогубцы, используемые для установки штифта.

  3. Соберите переднюю и боковые панели в правильном положении, как показано на рисунке 19, и склейте их снаружи клейкой лентой.

    Ориентация размещения света

    Рисунок 19. Ориентация размещения света

  4. Подсоедините шнур питания к световой панели, как показано на рисунке 20.

    Шнур питания освещения

    Рисунок 20. Шнур питания освещения

    Проденьте шнур питания через отверстие на левой панели. На каждом конце шнура питания расположены разные разъёмы: узкий — для светодиодной панели, а широкий — для адаптера питания.

    Шнур питания

    Рисунок 21. Шнур питания выходит из испытательного стенда с левой стороны.

  5. Подключите верхние фонари к нижним фонарям и закрепите кабель на левой панели.

    Световой шнур

    Рисунок 22. Световой шнур, закрепленный на левой панели.

Шаг 7: Соберите боковые панели, крепление для планшета и ручки.

Чтобы собрать боковые панели ITS-in-a-box, крепление для планшета и ручки с помощью винтов:

  1. Соберите все стороны панелей и склейте их вместе, как показано на рисунке 23.

    Заклеенная коробка для сборки

    Рисунок 23. ITS-in-a-box, склеенный вместе для сборки

  2. С помощью электродрели сделайте направляющие отверстия на основе имеющихся. Убедитесь, что направляющие отверстия достаточно большие для 4-40 шурупов, чтобы АБС-пластик не треснул при вкручивании шурупов.

    Сверление отверстий

    Рисунок 24. Сверление пилотных отверстий для винтов 4-40

  3. Прикрепите все панели друг к другу саморезами 4-40.

    Электрическая дрель

    Рисунок 25. Винты 4-40 для сборки панелей

  4. Соберите детали ручки, показанные на рисунке 26.

    Детали ручки

    Рисунок 26. Детали ручки

    В комплект входят четыре прямоугольные пластиковые детали и четыре винта 6-32.

  5. Соберите ручки, как показано на рисунке 27.

    Собранная ручка

    Рисунок 27. Собранная ручка

Шаг 8: Окончательная сборка и настройка

Для выполнения окончательной сборки ITS-in-a-box:

  1. Прикрепите держатель планшета к задней панели и отрегулируйте высоту в соответствии с размером планшета.

    Крепление для планшета на задней стороне коробки

    Рисунок 28. Планшет в держателе на задней стороне коробки.

  2. Прикрепите квадратную панель с отверстиями без креплений для телефона к передней части коробки с помощью винтов 4-40, как показано на рисунке 29.

    Собранная передняя панель

    Рисунок 29. Собранная передняя панель телефона

  3. Вставьте отверстие в плате Gator размером 10x10 см в соответствии с отверстием камеры проверяемого устройства.

    отверстие для доски Gator

    Рисунок 30. ITS-in-a-box с установленным отверстием из аллигаторной доски

  4. Установите телефон, совместив камеру с отверстием в корпусе. Проверьте совмещение через отверстие в корпусе планшета.

    Коробка с одним телефоном

    Рисунок 31. ИТС-в-коробке с одним установленным телефоном

  5. Вырежьте отверстия для камер. Вы можете вырезать одно отверстие (для тестирования одного телефона) или два (для тестирования двух телефонов). Отверстия для фронтальной и основной камер Pixel и Pixel XL показаны на рисунке 31. Фронтальная камера имеет круглое отверстие, поскольку в ней нет вспышки и лазера, а задняя камера имеет прямоугольное отверстие, что позволяет вспышке и лазеру работать без помех.

    Образцы апертур

    Рисунок 32. Примеры диафрагм для передней и задней камер

    Коробка с двумя телефонами

    В качестве альтернативы вы можете вырезать отверстия в картоне и покрасить его в черный цвет маркерами, аэрозольной краской или акрилом, как показано на рисунке 33.

    Рисунок 33. Образцы картонных отверстий для передней и задней камер.

    Образец картонного отверстия

  6. Проверьте освещённость светодиодных ламп с помощью цифрового люксметра. В данном примере используется YF-1065 от Contempo View.

    YF-1065 от Contempo Views

    Рисунок 34. YF-1065 от Contempo Views

  7. Поместите экспонометр на планшет и установите его на 2000 люкс для измерения освещённости. Уровень освещённости должен быть около 100–300 люкс. Всё, что значительно ниже, будет слишком тусклым для теста и может привести к его сбоям.

    Люксметр

    Рисунок 35. Люксметр, измеряющий освещенность сзади с креплением для планшета

  8. Выполните соответствующий шаг в зависимости от измеренного значения люкса:

    • Если свет находится на правильном уровне, прикрутите переднюю и заднюю пластины на место.
    • Если уровень света неправильный, проверьте правильность номера детали светодиода и блока питания.

На что следует обратить внимание

Ниже приведены примеры распространенных ошибок на производстве, которые могут сделать результаты испытаний ненадёжными.

  • Задняя панель с отверстиями для планшета. Это приводит к провалу теста find_circle из-за дополнительных кругов, создаваемых отверстиями для винтов.

    Задняя панель с отверстиями

    Рисунок 36. Задняя панель с пробитыми отверстиями.

  • Отсутствуют штифты. Из-за этого защитные экраны выпадают во время транспортировки.

    Отсутствует штифт

    Рисунок 37. Отсутствует штифт на светоотражающей перегородке.

  • Блок питания, не сертифицированный UL. Использование блока питания, сертифицированного UL, гарантирует его бесперебойную работу.

    Источник питания, сертифицированный UL

    Рисунок 38. Пример источника питания, сертифицированного UL