Consiga uma caixa de campo de visão normal (RFoV)

O ITS-in-a-box de campo de visão normal (RFoV, na sigla em inglês) (revisão 1a) consiste em uma caixa de plástico cortada a laser de desenhos de design auxiliado por computador (CAD, na sigla em inglês), uma tablet de gráfico e um dispositivo em teste (DUT, na sigla em inglês). O ITS-in-a-box de campo de visão normal (RFoV, na sigla em inglês) foi projetado para testar dispositivos com um campo de visão menor que 90 graus (RFoV). Você pode comprar um ITS-in-a-box ou criar o seu.

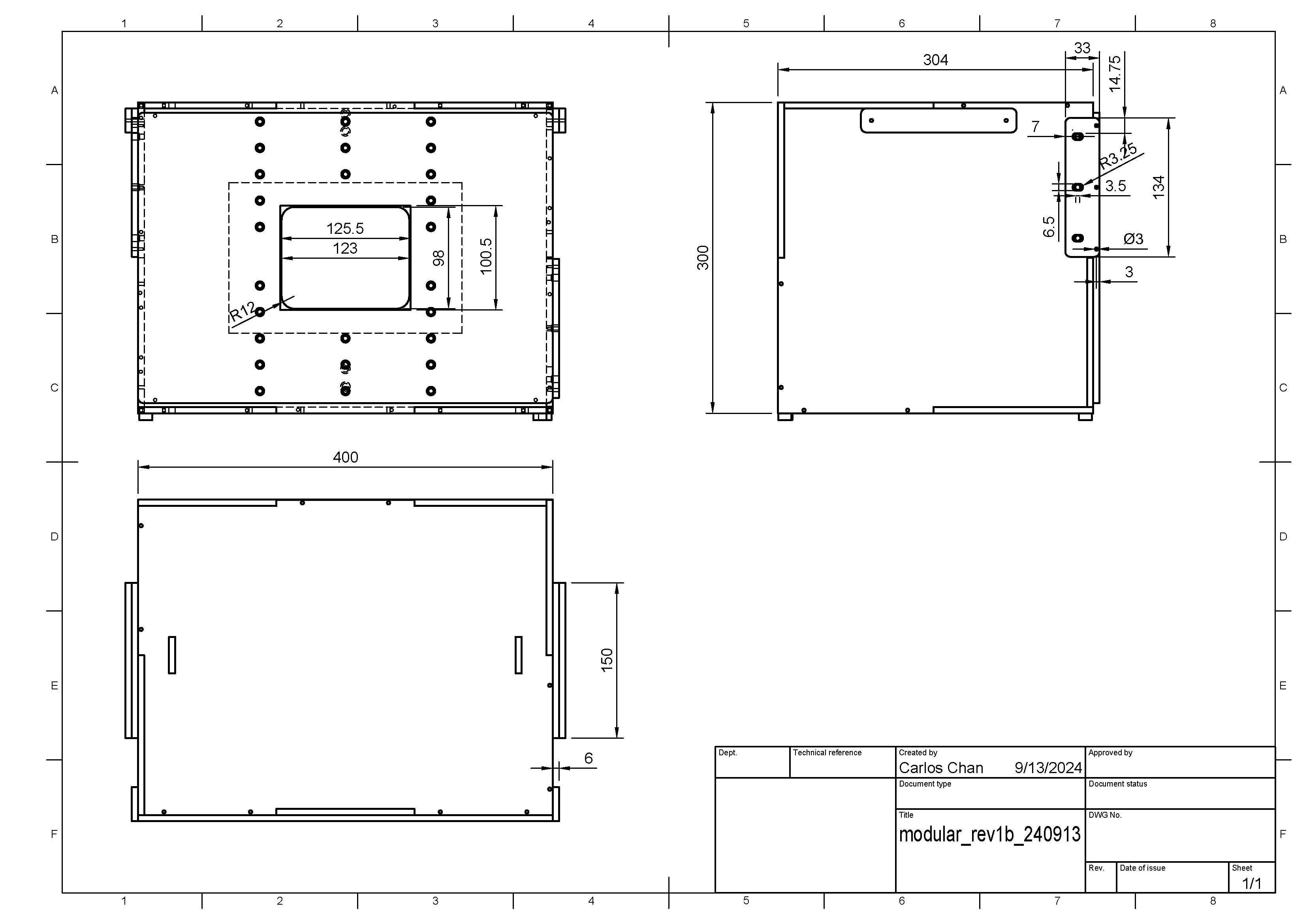
A versão rev1b do RFOV ITS-in-a-box adiciona suporte a componentes modulares e é compatível com o telescópio de extensão.

Rev1b

Figura 1. Caixa ITS de campo de visão normal (RFoV) Rev1b

Histórico de revisões

A tabela a seguir descreve o histórico de revisões da caixa de campo de visão regular e inclui links de download para cada versão dos arquivos de produção.

Data Revisão Download de arquivos de produção Registro de alterações
Setembro de 2024 1b Arquivos de produção da Rev. 1b
  • Sistema modular adotado (adiciona mecanismo de montagem para extensões modulares).
Maio de 2019 1a Arquivos de produção da Rev. 1a
  • O material foi alterado de Delrin para ABS.
  • O design do suporte à luz foi alterado para ser mais flexível e processar diferentes tamanhos de barra de LED.
  • Unificou os métodos de construção.
  • O design do suporte para tablet foi simplificado e ficou mais robusto.
  • Aumento da profundidade do suporte para smartphones mais grossos.
  • Aumento das opções de montagem no painel frontal para acomodar uma montagem para perfis de smartphones dobráveis e resistentes.

Comprar um ITS-in-a-Box de RFoV

Recomendamos a compra de um ITS-in-a-box RFoV (revisão 1a) de um dos seguintes fornecedores qualificados.

  • Byte Bridge Inc.
    EUA: 1502 Crocker Ave, Hayward, CA 94544-7037
    China: 22F #06-08, Hongwell International Plaza Tower A, 1600 West Zhongshan Road, Xuhui, Shanghai, 200235
    www.bytebt.com
    androidpartner@bytebt.com
    EUA: +1-510-373-8899
    China: +86-400-8866-490

  • JFT CO LTD 捷富通科技有限公司 (anteriormente conhecida como MYWAY DESIGN)
    No. 40, Lane 22, Heai Road, Wujing Town, Minhang District, Shanghai, China
    4F., No. 163, Fu-Ying Road, XinZhuang District, New Taipei City 242, Taiwan
    www.jftcoltd.com
    service@jfttec.com or its.sales@jfttec.com
    China:+86-021-64909136
    Taiwan: 886-2-29089060

Tutorial em vídeo

Este é um tutorial em vídeo sobre como configurar o ITS-in-a-box da RFoV.

Criar um ITS-in-a-Box de RFoV

Em vez de comprar um ITS-in-a-box de RFoV, você pode criar o seu. Esta seção fornece instruções detalhadas para a montagem.

Desenhos mecânicos

O ITS-in-a-box consiste em um DUT, um tablet de gráficos, um sistema de iluminação interno e uma caixa de plástico cortada a laser de desenhos de CAD (mostrada na Figura 1).

Para começar, faça o download do arquivo de produção mais recente.

Desenho mecânico do ITS-in-a-Box

Figura 2. Desenho mecânico do ITS-in-a-Box

Compre o hardware da lista de materiais (BOM). Corte as peças de plástico e vinil.

Ferramentas necessárias

Tenha as seguintes ferramentas disponíveis:

  • Chave de fenda Torx
  • Furadeira
  • Cola ABS
  • Alicate de ponta fina
  • Faca X-ACTO
  • Cortadores de fios ou tesouras (opcional)

Etapa 1: aplicar o vinil e colar os pés

Aplique o vinil colorido no lado liso do acrilobutadieno estireno (ABS) e corte as aberturas necessárias, conforme mostrado nas Figuras 3 e 4. Aplique o vinil branco com a abertura retangular grande no lado do tablet da caixa e o vinil preto com a abertura circular no lado do dispositivo móvel da caixa. Aplique o vinil cinza nos painéis laterais, conforme mostrado na Figura 4, e cole os pés nos quatro cantos do painel inferior, conforme mostrado na Figura 5. Para mais informações, consulte wikiHow.

Vinil nos painéis frontal e traseiro

Figura 3. Vinil preto no painel frontal (à esquerda) e vinil branco no painel traseiro (à direita)

Painéis laterais

Figura 4. Vinil cinza nos painéis laterais

Painel inferior

Figura 5. Pés nos quatro cantos do painel de baixo

Etapa 2: iluminação

Para montar o componente de iluminação ITS-in-a-box:

  1. Reúna o hardware de iluminação conforme mostrado na Figura 6.

    Peças de montagem de luz

    Figura 6. Peças de montagem de luz

    O hardware inclui as barras de luz de LED, os difusores de luz de plástico, as bases de luz de plástico, os clipes de luz de plástico ou metal incluídos no kit de iluminação de LED e quatro parafusos 6-32 com porcas de cabeça de noz.

  2. Aparafuse os clipes de luz aos defletores de plástico, conforme mostrado na Figura 7. Prenda os clipes usando as porcas de noz no outro lado dos defletores.

    Defletores de luz

    Figura 7. Defletores de plástico com presilhas de luz acopladas

  3. Para montar as luzes, prenda os defletores de plástico na parte de trás das barras de LED usando os clipes de luz.

    Barras de luz

    Figura 8. Barras de luz com as luzes voltadas para baixo e parafusos rosqueados através dos clipes

Quando o componente de iluminação estiver montado, as barras de luz de LED precisam apontar para baixo, e os defletores de plástico precisam cobrir a superfície brilhante e reflexiva na parte de trás da barra de luz de LED.

Etapa 3: suportes para smartphone

Para montar os suportes para smartphone:

  1. Reúna os itens necessários, conforme mostrado na Figura 9.

    Itens de suporte para smartphone

    Figura 9. Itens de suporte para smartphone

    O hardware inclui duas bases para smartphones de metal, dois êmbolos, duas pontas de borracha, quatro parafusos de cabeça chata 8-32 e as porcas correspondentes.

  2. Corte as pontas de borracha de forma que não interfiram na operação do êmbolo (aproximadamente pela metade) e aplique-as para cobrir as pontas dos êmbolos.

    Desentupidores

    Figura 10. Extratores com pontas de borracha

  3. Monte as bases para smartphones usando parafusos de cabeça chata para fixar os mecanismos de pistão nas bases de metal. Verifique se os parafusos estão apertados com as porcas correspondentes.

    Suportes para smartphone montados

    Figura 11. Suportes para smartphone montados

Etapa 4: placa de abertura

Para montar a placa de abertura frontal:

  1. Reúna o hardware da placa de abertura frontal mostrado na Figura 12.

    Peças da placa de abertura frontal

    Figura 12. Peças de montagem da placa da abertura frontal

    O hardware inclui as bases de montagem do smartphone montadas, o painel de montagem do smartphone, quatro parafusos curtos de nylon e quatro porcas de nylon (necessárias para evitar que os parafusos se projetem pela parte de trás da placa de plástico).

  2. Usando os parafusos e as porcas, prenda os suportes do smartphone montados ao painel de suporte do smartphone. Verifique se os suportes do smartphone estão na orientação correta, conforme mostrado na Figura 13.

    Placa de abertura frontal montada

    Figura 13. Placa de abertura frontal montada

Etapa 5: montagem do tablet

Para montar o suporte de mesa:

  1. Reúna o hardware de montagem do suporte para tablet mostrado na Figura 14.

    Peças de suporte para tablet

    Figura 14. Peças de montagem de espaço para suporte de tablet

    O hardware inclui o painel traseiro, a montagem do tablet, um êmbolo, uma ponta de borracha, dois parafusos de cabeça chata 8-32, dois parafusos curtos de nylon e as porcas correspondentes.

  2. Monte a base do tablet usando parafusos de cabeça chata para fixar os mecanismos de pistão à base de metal. Confira se os parafusos estão apertados com as porcas correspondentes.

  3. Usando os parafusos e as porcas, prenda o suporte do tablet montado ao painel traseiro. Confira se os suportes do smartphone estão na orientação correta, como mostrado na Figura 15.

    Suporte para tablet montado

    Figura 15. Suporte para tablet montado

Etapa 6: instalar as luzes

Para instalar as luzes:

  1. Instale os difusores de luz nos painéis superior e inferior, conforme mostrado na Figura 16.

    Abafadores de luz instalados

    Figura 16. Os difusores de luz instalados nos painéis superior e inferior

  2. Prenda os difusores de luz apertando o pino no orifício pequeno da guia retangular que se estende pela ranhura nos painéis superior e inferior, como na Figura 17.

    Alfinete inserido

    Figura 17. Imagem ampliada do pino inserido na guia de montagem de LED do lado de fora da caixa

    Para fixar os pinos, aperte-os levemente até sentir alguma pressão no plástico, já que eles são fixados no lugar.

    Alicates

    Figura 18. Alicate usado para instalar o pino

  3. Monte os painéis frontal e lateral na orientação correta, conforme mostrado na Figura 19, e cole-os juntos do lado de fora.

    Orientação da posição da luz

    Figura 19. Orientação da posição da luz

  4. Conecte o cabo de alimentação à barra de luz de alimentação, conforme mostrado na Figura 20.

    Cabo de alimentação de iluminação

    Figura 20. Cabo de alimentação de iluminação

    Passe o cabo de alimentação pelo orifício no painel esquerdo. O cabo de alimentação tem conectores diferentes em cada extremidade: o conector mais estreito se conecta à barra de luz LED, e o conector maior se conecta ao adaptador de energia.

    Cabo de alimentação

    Figura 21. Cabo de alimentação saindo do equipamento de teste no lado esquerdo

  5. Conecte as luzes de cima às luzes de baixo e prenda o cabo no painel esquerdo.

    Cabo de luz

    Figura 22. Cabo de luz ancorado no painel esquerdo

Etapa 7: montar os painéis laterais, a montagem do tablet e as alças

Para montar os painéis laterais, o suporte para tablet e as alças do ITS-in-a-Box com parafusos:

  1. Monte todos os lados dos painéis e cole-os juntos, conforme mostrado na Figura 23.

    Caixa com fita para montagem

    Figura 23. ITS-in-a-box colado para montagem

  2. Use uma furadeira para fazer furos piloto com base nos furos existentes. Verifique se os furos piloto são grandes o suficiente para parafusos 4-40, para que o plástico ABS não se quebre ao inserir os parafusos.

    Perfuração de furos

    Figura 24. Furos piloto para parafusos 4-40

  3. Aparafuse todos os painéis usando parafusos autoperfurantes 4-40.

    Furadeira

    Figura 25. Parafusos 4-40 para montagem de painéis

  4. Junte as partes da alça mostradas na Figura 26.

    Processar peças

    Figura 26. Processar peças

    O hardware inclui quatro peças retangulares de plástico e quatro parafusos 6-32.

  5. Monte as alças conforme mostrado na Figura 27.

    Alça montada

    Figura 27. Alça montada

Etapa 8: montagem e configuração finais

Para realizar a montagem final do ITS-in-a-box:

  1. Conecte o suporte do tablet ao painel traseiro e ajuste a altura de acordo com o tamanho do tablet.

    Suporte para tablet na parte de trás da caixa

    Figura 28. Tablet na base do tablet na parte de trás da caixa

  2. Prenda o painel de abertura quadrado sem suportes para smartphone na parte frontal da caixa com parafusos 4-40, conforme mostrado na Figura 29.

    Painel frontal montado

    Figura 29. Painel frontal do smartphone montado

  3. Insira a abertura do Gator Board de 10 x 10 cm para ajustar a abertura da câmera do DUT.

    Abertura do quadro Gator

    Figura 30. ITS-in-a-box com abertura de placa de gator instalada

  4. Instale o smartphone alinhando a câmera com a abertura. Verifique o alinhamento pela abertura do tablet.

    Caixa com um smartphone

    Figura 31. ITS-in-a-Box com um smartphone instalado

  5. Aberturas cortadas para as câmeras. Você pode cortar uma única abertura (para testar um único smartphone) ou duas aberturas (para testar dois smartphones). As aberturas das câmeras frontal e traseira do Pixel e do Pixel XL são mostradas na Figura 31. A câmera frontal tem uma abertura circular porque não tem flash nem laser, enquanto a câmera traseira tem uma abertura retangular que permite que o flash e o laser funcionem sem serem bloqueados.

    Exemplos de aberturas

    Figura 32. Exemplos de aberturas para câmeras frontal e traseira

    Caixa com dois smartphones

    Como alternativa, você também pode cortar aberturas de papelão e pintá-las de preto usando marcadores, tinta spray ou acrílico, conforme mostrado na Figura 33.

    Figura 33. Exemplos de aberturas de papelão para câmeras frontal e traseira

    Amostra de abertura de papelão

  6. Usando um luxímetro digital, teste o lux das luzes de LED. A YF-1065 da Contempo View é usada neste exemplo.

    YF-1065 por Contempo Views

    Figura 34. YF-1065 por Contempo Views

  7. Coloque o fotômetro no lado do tablet e ajuste para 2.000 lux para medir a luz. O nível de lux precisa ser de 100 a 300. Qualquer valor significativamente menor é muito fraco para o teste e pode levar a falhas no teste.

    Luxímetro

    Figura 35. Fotômetro medindo a luz da parte de trás com suporte para tablet

  8. Siga a etapa apropriada, dependendo do valor de lux medido:

    • Se a luz estiver no nível correto, parafuse as placas frontal e traseira no lugar.
    • Se a luz estiver no nível incorreto, verifique se o número da peça do LED e da fonte de alimentação estão corretos.

O que procurar

Confira a seguir exemplos de erros de fabricação comuns que podem tornar os testes instáveis.

  • Painel traseiro com furos de tablet. Isso faz com que o teste find_circle falhe devido aos círculos extras criados pelos furos dos parafusos.

    Painel traseiro com furos

    Figura 36. Painel traseiro com furos

  • Buchas ausentes. Isso faz com que os difusores de luz escorreguem durante o envio.

    Cavidade ausente

    Figura 37. Pino ausente no difusor de luz

  • Fonte de alimentação não listada pela UL. O uso de uma fonte de alimentação listada pela UL garante que ela não será quebrada.

    Fonte de alimentação listada pela UL

    Figura 38. Exemplo de fonte de alimentação listada pela UL