Uzyskiwanie urządzenia z normalnym polem widzenia

Standardowy zestaw testowy ITS-in-a-box (wersja 1a) składa się z plastikowego pudełka wycinanego laserowo na podstawie rysunków CAD, tabletu z wykresem i testowanego urządzenia. RFoV ITS-in-a-box służy do testowania urządzeń z polem widzenia mniejszym niż 90 stopni (RFoV). Możesz kupić ITS-in-a-box lub utworzyć własny system.

Wersja rev1b RFOV ITS-in-a-box obsługuje komponenty modułowe i jest zgodna z wysięgnikiem teleskopowym.

Rev1b

Rysunek 1. Standardowe pole widzenia (RFoV) ITS box Rev1b

Historia wersji

W tabeli poniżej znajdziesz historię zmian zwykłego pola widzenia i linki do pobrania poszczególnych wersji plików produkcyjnych.

Data Wersja Pobieranie pliku produkcyjnego Historia zmian
Wrzesień 2024 r. 1b Pliki produkcyjne w wersji 1b
  • Wprowadziliśmy system modułowy (dodaliśmy mechanizm montażu rozszerzeń modułowych).
Maj 2019 r. 1a Pliki produkcyjne w wersji 1a
  • Materiał został zmieniony z Delrinu na ABS.
  • Zmiana konstrukcji uchwytu lampy, aby był bardziej elastyczny i umożliwiał montaż różnych rozmiarów listew LED.
  • Ujednolicenie metod budowy.
  • Uprościliśmy konstrukcję uchwytu na tablet i zwiększyliśmy jego wytrzymałość.
  • Zwiększyliśmy głębokość uchwytu na telefon, aby można było w nim umieszczać grubsze telefony.
  • Zwiększyliśmy liczbę opcji montażu na panelu przednim, aby można było zamontować uchwyt na składane i wytrzymałe telefony.

Zakup RFoV ITS-in-a-box

Zalecamy zakup RFoV ITS-in-a-box (wersja 1a) od jednego z tych kwalifikowanych dostawców.

  • Byte Bridge Inc.
    USA: 1502 Crocker Ave, Hayward, CA 94544-7037
    Chiny: 22F #06-08, Hongwell International Plaza Tower A, 1600 West Zhongshan Road, Xuhui, Szanghaj, 200235
    www.bytebt.com
    androidpartner@bytebt.com
    USA: +1-510-373-8899
    Chiny: +86-400-8866-490

  • JFT CO LTD 捷富通科技有限公司 (wcześniej MYWAY DESIGN)
    No. 40, Lane 22, Heai Road, Wujing Town, Minhang District, Szanghaj, Chiny
    4F., No. 163, Fu-Ying Road, XinZhuang District, New Taipei City 242, Tajwan
    www.jftcoltd.com
    service@jfttec.com lub its.sales@jfttec.com
    Chiny:+86-021-64909136
    Tajwan: 886-2-29089060

Samouczek wideo

To samouczek wideo, z którego dowiesz się, jak skonfigurować RFoV ITS-in-a-box.

Tworzenie RFoV ITS-in-a-box

Zamiast kupować RFoV ITS-in-a-box, możesz zbudować własny. Ta sekcja zawiera szczegółowe instrukcje montażu.

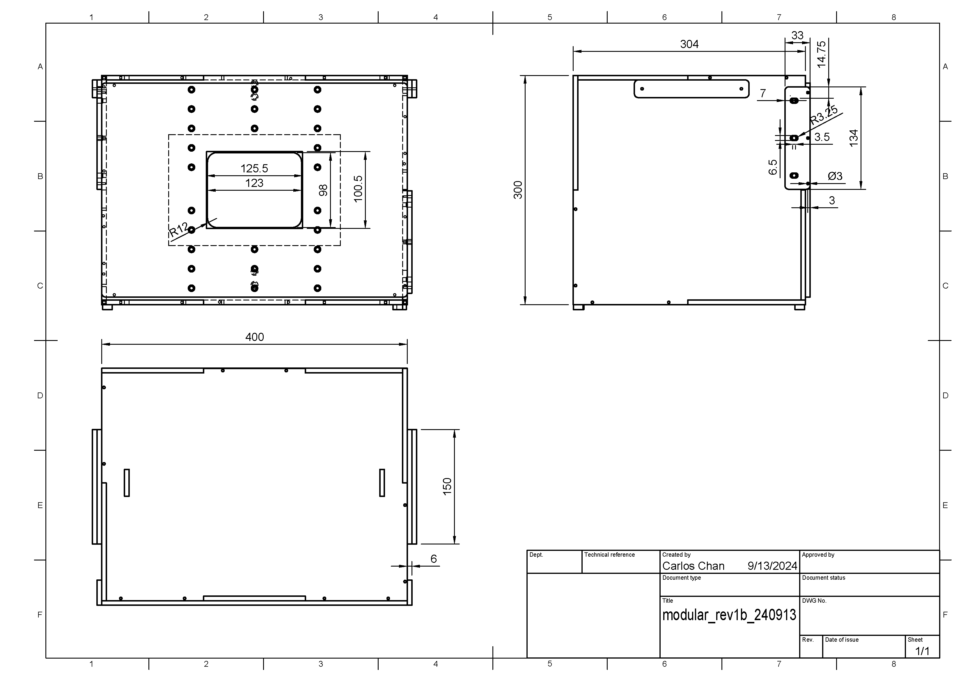
Rysunki mechaniczne

ITS-in-a-box składa się z urządzenia testowanego, tabletu z wykresem, wewnętrznego systemu oświetlenia i plastikowego pudełka wycinanego laserowo na podstawie rysunków CAD (patrz rysunek 1).

Na początek pobierz najnowszy plik produkcyjny.

Rysunek mechaniczny ITS-in-a-box

Rysunek 2. Rysunek techniczny ITS-in-a-box

Kup sprzęt z listy materiałów. Wytnij elementy z plastiku i winylu.

Wymagane narzędzia

mieć do dyspozycji te narzędzia:

  • Śrubokręt z główką Torx
  • Wiertarka
  • Klej do ABS
  • Szczypce spiczaste
  • Nóż X-ACTO
  • Szczypce do cięcia drutu lub nożyczki (opcjonalnie)

Krok 1. Nałóż winyl i przyklej nóżki

Nałóż kolorową folię samoprzylepną na gładką stronę tworzywa ABS i wytnij niezbędne otwory, jak pokazano na rysunkach 3 i 4. Naklej białą folię z dużym prostokątnym otworem na tablet, a czarną folię z okrągłym otworem na urządzenie mobilne. Nałóż szary winyl na panele boczne, jak pokazano na rysunku 4, i przyklej nóżki w 4 rogach panelu dolnego, jak pokazano na rysunku 5. Więcej informacji znajdziesz w wikiHow.

Winyl na przednim i tylnym panelu

Rysunek 3. Czarna folia na panelu przednim (po lewej) i biała folia na panelu tylnym (po prawej)

Panele boczne

Rysunek 4. Szary winyl na panelach bocznych

Dolny panel

Rysunek 5. Nóżki w 4 rogach dolnego panelu

Krok 2. Oświetlenie

Aby złożyć komponent oświetleniowy ITS-in-a-box:

  1. Zbierz sprzęt oświetleniowy zgodnie z rysunkiem 6.

    Części do montażu oświetlenia

    Rysunek 6. Części do montażu oświetlenia

    Elementy montażowe obejmują listwy świetlne LED, plastikowe przegrody świetlne, plastikowe uchwyty świetlne, plastikowe lub metalowe klipsy świetlne dołączone do zestawu oświetlenia LED oraz cztery śruby 6-32 z nakrętkami kopułkowymi.

  2. Przykręć klipsy do plastikowych przegród, jak pokazano na rysunku 7. Zabezpiecz klipsy za pomocą nakrętek z drugiej strony przegród.

    Osłony przeciwsłoneczne

    Rysunek 7. Plastikowe przegrody z przymocowanymi klipsami do oświetlenia

  3. Aby złożyć lampy, przymocuj plastikowe przegrody do tylnej części listew LED za pomocą klipsów.

    Świetlne paski

    Rysunek 8. Listwy świetlne skierowane w dół i przykręcone do klipsów

Po zmontowaniu elementu oświetleniowego listwy LED powinny być skierowane w dół, a plastikowe przegrody powinny zakrywać błyszczącą, odblaskową powierzchnię z tyłu listwy LED.

Krok 3. Uchwyty na telefon

Aby złożyć uchwyty na telefon:

  1. Zbierz wymagane elementy zgodnie z rysunkiem 9.

    Uchwyty do telefonów

    Rysunek 9. Uchwyty do telefonów

    W zestawie znajdują się 2 metalowe uchwyty na telefon, 2 przyssawki, 2 gumowe końcówki, 4 śruby z łbem walcowym 8–32 i odpowiednie nakrętki.

  2. Przytnij gumowe końcówki tak, aby nie przeszkadzały w działaniu tłoka (mniej więcej o połowę), a następnie nałóż je na końcówki tłoków.

    Przepychacze

    Rysunek 10. Przepychacze z gumowymi końcówkami

  3. Zmontuj uchwyty na telefon, przykręcając mechanizmy tłokowe do metalowych uchwytów za pomocą wkrętów z łbem walcowym. Upewnij się, że śruby są dokręcone odpowiednimi nakrętkami.

    Zmontowane uchwyty na telefony

    Rysunek 11. Zmontowane uchwyty na telefony

Krok 4. Płytka z otworem

Aby złożyć przednią płytkę apertury:

  1. Zbierz elementy przedniej płyty apertury pokazane na rysunku 12.

    Części przedniej płyty aperturowej

    Rysunek 12. Części zespołu przedniej płytki przysłony

    W zestawie znajdują się zmontowane uchwyty na telefon, panel uchwytu na telefon, 4 krótkie śruby nylonowe i 4 nakrętki nylonowe (niezbędne, aby śruby nie wystawały z tyłu plastikowej płytki).

  2. Za pomocą wkrętów i nakrętek przymocuj zmontowane uchwyty do panelu uchwytów. Upewnij się, że uchwyty na telefon są prawidłowo ustawione, jak pokazano na rysunku 13.

    Zmontowana przednia płytka z otworem

    Rysunek 13. Zmontowana przednia płytka z otworem

Krok 5. Uchwyt na tablet

Aby złożyć uchwyt na stół:

  1. Zbierz elementy montażowe uchwytu na tablet widoczne na rysunku 14.

    Części do uchwytów na tablety

    Rysunek 14. Części do montażu tabletu

    Elementy sprzętowe obejmują panel tylny, uchwyt na tablet, 1 tłok, 1 gumową końcówkę, 2 śruby z łbem walcowym 8–32, 2 krótkie śruby nylonowe i odpowiednie nakrętki.

  2. Zmontuj uchwyt na tablet, przykręcając mechanizmy tłoka do metalowego uchwytu za pomocą wkrętów z łbem walcowym. Upewnij się, że śruby są dokręcone odpowiednimi nakrętkami.

  3. Za pomocą wkrętów i nakrętek przymocuj zmontowany uchwyt na tablet do tylnego panelu. Upewnij się, że uchwyty na telefon są ustawione prawidłowo, jak pokazano na rysunku 15.

    Zmontowany uchwyt na tablet

    Rysunek 15. Zmontowany uchwyt na tablet

Krok 6. Zainstaluj oświetlenie

Aby zainstalować oświetlenie:

  1. Zainstaluj przegrody świetlne na górnym i dolnym panelu, jak pokazano na rysunku 16.

    Zainstalowane przegrody świetlne

    Rysunek 16. Przesłony świetlne zamontowane na górnym i dolnym panelu

  2. Zabezpiecz przegrody świetlne, wsuwając kołek w mały otwór na prostokątnym występie, który przechodzi przez szczelinę w górnym i dolnym panelu, jak pokazano na rysunku 17.

    Wstawiona pinezka

    Rysunek 17. Zbliżenie na włożony bolec w uchwycie diody LED na zewnętrznej stronie pudełka

    Aby zabezpieczyć piny, delikatnie je ściśnij, aż poczujesz nacisk na plastik.

    Szczypce

    Rysunek 18. Szczypce używane do instalowania kołka

  3. Złóż przedni i boczne panele w prawidłowej orientacji, jak pokazano na rysunku 19, i sklej je od zewnątrz.

    Orientacja umieszczenia światła

    Rysunek 19. Orientacja umieszczenia światła

  4. Podłącz przewód zasilający do listwy zasilającej, jak pokazano na rysunku 20.

    Przewód zasilający oświetlenie

    Rysunek 20. Przewód zasilający oświetlenie

    Przeciągnij kabel zasilający przez otwór na lewym panelu. Kabel zasilający ma różne złącza na obu końcach: węższe złącze podłącza się do listwy świetlnej LED, a większe złącze podłącza się do zasilacza.

    Przewód zasilający

    Rysunek 21. Kabel zasilający wychodzący z urządzenia testowego po lewej stronie

  5. Połącz górne lampki z dolnymi i przymocuj kabel do lewego panelu.

    Przewód oświetleniowy

    Rysunek 22. Przewód zasilający przymocowany do lewego panelu

Krok 7. Złóż panele boczne, uchwyt na tablet i rączki

Aby zmontować panele boczne, uchwyt na tablet i uchwyty ITS-in-a-box za pomocą śrub:

  1. Złóż wszystkie boki paneli i sklej je ze sobą taśmą, jak pokazano na rysunku 23.

    Sklejone pudełko do złożenia

    Rysunek 23. ITS-in-a-box sklejony taśmą do montażu

  2. Za pomocą wiertarki elektrycznej wywierć otwory prowadzące w miejscach istniejących otworów. Upewnij się, że otwory pilotowe są wystarczająco duże, aby można było wkręcić śruby 4–40, tak aby plastik ABS nie pękł podczas wkręcania śrub.

    wiercenie otworów,

    Rysunek 24. Wiercenie otworów pod wkręty 4-40

  3. Przykręć wszystkie panele za pomocą wkrętów samogwintujących 4–40.

    Wiertarka

    Rysunek 25. Śruby 4–40 do montażu paneli

  4. Zbierz części uchwytu pokazane na rysunku 26.

    Części uchwytu

    Rysunek 26. Części uchwytu

    Elementy montażowe obejmują 4 prostokątne plastikowe elementy i 4 śruby 6-32.

  5. Złóż uchwyty w sposób pokazany na rysunku 27.

    Zmontowany uchwyt

    Rysunek 27. Zmontowany uchwyt

Krok 8. Ostateczny montaż i konfiguracja

Aby dokończyć montaż ITS-in-a-box:

  1. Przymocuj uchwyt do tabletu do tylnego panelu i dostosuj wysokość do rozmiaru tabletu.

    Uchwyt na tablet z tyłu pudełka

    Rysunek 28. Tablet w uchwycie na tablet z tyłu pudełka

  2. Przymocuj kwadratowy panel z otworem bez uchwytów na telefon do przedniej części pudełka za pomocą śrub 4–40, jak pokazano na rysunku 29.

    Zmontowany panel przedni

    Rysunek 29. Zmontowany przedni panel telefonu

  3. Włóż otwór o wymiarach 10 x 10 cm, aby pasował do otworu kamery DUT.

    Otwór w płycie Gator

    Rysunek 30. ITS-in-a-box z zamontowanym otworem z płyty piankowej

  4. Umieść telefon, wyrównując aparat z otworem. Sprawdź wyrównanie przez otwór na tablet.

    Pudełko z jednym telefonem

    Rysunek 31. ITS-in-a-box z zainstalowanym jednym telefonem

  5. Wytnij otwory na kamery. Możesz wyciąć jeden otwór (do testowania jednego telefonu) lub dwa otwory (do testowania dwóch telefonów). Wartości przysłony przedniego i tylnego aparatu w telefonach Pixel i Pixel XL są pokazane na ilustracji 31. Przedni aparat ma okrągły otwór, ponieważ nie ma lampy błyskowej ani lasera, a tylny aparat ma otwór prostokątny, który umożliwia działanie lampy błyskowej i lasera bez blokowania.

    Przykładowe otwory

    Rysunek 32. Przykładowe przysłony aparatu przedniego i tylnego

    Pudełko z 2 telefonami

    Możesz też wyciąć otwory z kartonu i pomalować je na czarno markerami, farbą w sprayu lub farbą akrylową, jak pokazano na rysunku 33.

    Rysunek 33. Przykładowe otwory kartonowe dla aparatu przedniego i tylnego

    Przykładowy otwór w kartonie

  6. Za pomocą cyfrowego luksomierza sprawdź natężenie oświetlenia LED. W tym przykładzie użyto modelu YF-1065 firmy Contempo View.

    YF-1065 od Contempo Views

    Rysunek 34. YF-1065 od Contempo Views

  7. Umieść luksomierz po stronie tabletu i ustaw go na 2000 luksów, aby zmierzyć światło. Poziom natężenia oświetlenia powinien wynosić około 100–300 luksów. Wartości znacznie niższe są zbyt ciemne i mogą prowadzić do niepowodzenia testu.

    Luksomierz

    Rysunek 35. Luksomierz mierzący światło z tyłu z uchwytem na tablet

  8. Wykonaj odpowiedni krok w zależności od zmierzonej wartości w luksach:

    • Jeśli światło jest na odpowiednim poziomie, przykręć przednią i tylną płytkę.
    • Jeśli światło jest na nieprawidłowym poziomie, sprawdź, czy numer części diody LED i zasilacza jest prawidłowy.

Na co zwracać uwagę

Oto przykłady typowych błędów produkcyjnych, które mogą powodować niestabilność testów.

  • Tylny panel z otworami na tablet. Powoduje to niepowodzenie testu find_circle z powodu dodatkowych okręgów utworzonych przez otwory na śruby.

    Panel tylny z otworami

    Rysunek 36. Panel tylny z otworami

  • Brak kołków. Może to spowodować wypadnięcie osłon świetlnych podczas transportu.

    Brak kołka

    Rysunek 37. Brak kołka na osłonie światła

  • Zasilacz nieposiadający certyfikatu UL. Używanie zasilacza z certyfikatem UL gwarantuje, że nie ulegnie on uszkodzeniu.

    Zasilacz z certyfikatem UL

    Rysunek 38. Przykład zasilacza z certyfikatem UL