वाइड फ़ील्ड-ऑफ़-व्यू बॉक्स पाना

Android में ITS-in-a-box revision 2 शामिल है. यह एक ऑटोमेटेड टेस्टिंग सिस्टम है. इसका इस्तेमाल, Camera Image Test Suite (ITS) में वाइड फ़ील्ड-ऑफ़-व्यू (WFoV) और रेगुलर फ़ील्ड-ऑफ़-व्यू (RFoV) कैमरा सिस्टम, दोनों के लिए किया जा सकता है. पहले वर्शन को, 90 डिग्री (RFoV) से कम FoV वाले मोबाइल डिवाइस के कैमरों की जांच करने के लिए डिज़ाइन किया गया था.

वाइड फ़ील्ड-ऑफ़-व्यू बॉक्स (दूसरा वर्शन) को ऐसे कैमरों की जांच करने के लिए भी डिज़ाइन किया गया है जिनका FoV 90 डिग्री (WFoV) से ज़्यादा है. इससे, अलग-अलग FoV वाले कैमरों की जांच करने के लिए, एक ITS-in-a-box सिस्टम का इस्तेमाल किया जा सकता है. हालांकि, इसके लिए ज़रूरी है कि कैमरे करीब 20 सेमी की दूरी पर फ़ोकस कर सकें.

आईटीएस-इन-अ-बॉक्स सिस्टम में ये चीज़ें शामिल होती हैं: कंप्यूटर की मदद से डिज़ाइन (सीएडी) की गई ड्रॉइंग से लेज़र कट किया गया प्लास्टिक बॉक्स, इंटरनल लाइटिंग सिस्टम, चार्ट टैबलेट, और जांच किया जाने वाला डिवाइस (डीयूटी). आईटीएस-इन-अ-बॉक्स खरीदा जा सकता है या खुद बनाया जा सकता है.

WFoV ITS-in-a-box खरीदना

हमारा सुझाव है कि आप नीचे दिए गए मान्यता प्राप्त वेंडर में से किसी एक से, WFoV ITS-in-a-box खरीदें.

  • Byte Bridge Inc.
    USA: 1502 Crocker Ave, Hayward, CA 94544-7037
    China: 22F #06-08, Hongwell International Plaza Tower A, 1600 West Zhongshan Road, Xuhui, Shanghai, 200235
    www.bytebt.com
    androidpartner@bytebt.com
    USA: +1-510-373-8899
    China: +86-400-8866-490

  • JFT CO LTD 捷富通科技有限公司 (पहले इसे MYWAY DESIGN के नाम से जाना जाता था)
    चीन: No. 40, Lane 22, Heai Road, Wujing Town, Minhang District, Shanghai, China
    ताइवान: 4F., No. 163, Fu-Ying Road, XinZhuang District, New Taipei City 242, Taiwan
    www.jftcoltd.com
    service@jfttec.com या its.sales@jfttec.com
    चीन:+86-021-64909136
    ताइवान: 886-2-29089060

वीडियो ट्यूटोरियल

इस वीडियो ट्यूटोरियल में, WFoV ITS-in-a-box को सेट अप करने का तरीका बताया गया है.

WFoV ITS-in-a-box बनाना

WFoV ITS-in-a-box (revision 2) खरीदने के बजाय, आपके पास इसे खुद बनाने का विकल्प होता है. इस सेक्शन में, WFoV ITS-in-a-box (दूसरा वर्शन) को असेंबल करने के लिए, चरण-दर-चरण निर्देश दिए गए हैं. इससे, 90 डिग्री से ज़्यादा फ़ील्ड ऑफ़ व्यू वाले कैमरों की जांच की जा सकती है.

बदलावों का इतिहास

यहां दी गई टेबल में, Camera ITS WFoV रिग के वर्शन के इतिहास के बारे में बताया गया है. साथ ही, इसमें प्रोडक्शन फ़ाइलों के हर वर्शन को डाउनलोड करने के लिंक भी शामिल हैं.

तारीख बदलाव प्रोडक्शन फ़ाइल डाउनलोड करना बदलाव लॉग
दिसंबर 2022 2.9 WFoV Rev 2.9
  • माउंट करने का ऐसा तरीका जोड़ा गया है जो टैबलेट की टेस्टिंग के साथ काम करता है.
  • फ़ोन माउंट को असिमेट्रिकल बनाने के लिए, उनमें बदलाव किया गया है.
  • ब्लैंक फ़ोम बोर्ड से लेकर सामान्य डिज़ाइन तक, अपर्चर के डिज़ाइन में बदलाव किया गया है.
अक्टूबर 2019 2.8 उपलब्ध नहीं है
  • प्रोडक्शन से जुड़े दस्तावेज़ में अपर्चर डिज़ाइन जोड़ा गया.
  • बेहतर सपोर्ट के लिए, टेस्ट रिग के निचले हिस्से में फ़ीट जोड़े गए.
  • डॉवेल को बेहतर तरीके से फ़िट करने के लिए, सी-क्लैंप के डिज़ाइन में बदलाव किया गया है.
  • फ़ोन माउंट के लिए, ज़्यादा रेंज में मोशन देने के लिए, फ़्रंट अपर्चर प्लेट में बदलाव किया गया है.
अक्टूबर 2018 2.7 उपलब्ध नहीं है
  • मैन्युफ़ैक्चरिंग में एक जैसा स्टैंडर्ड बनाए रखने के लिए, बीओएम (#16) में मौजूद लाइट को यूएल लिस्टेड एलईडी टेप से बदल दिया गया है.
  • बीओएम में स्विच की गई पावर सप्लाई को #16 के सोर्स से कनेक्ट किया गया है.
  • टैबलेट माउंट को 35 मि॰मी॰ चौड़ा किया गया है, ताकि वह टैबलेट के खुलने की जगह से मेल खा सके (मेकैनिकल ड्राइंग में पेज 4 पर देखें)
  • क्लैंप के स्लॉट की लंबाई (मेकैनिकल ड्राइंग के पेज 5 पर दी गई है) के साथ अलाइन करने के लिए, सामने वाले क्लैंप के छेद के बीच की दूरी में बदलाव किया गया है
  • RFoV ITS-in-a-box से मैच करने के लिए, सामने के अपर्चर सर्कल के डाइमीटर को 20 मि॰मी॰ कम किया गया.
अगस्त 2018 2.6 उपलब्ध नहीं है
  • मैकेनिकल ड्राइंग को ठीक करने के लिए, इसे अंदरूनी तौर पर रिलीज़ किया गया है.
अगस्त 2018 टर्किश लीरा उपलब्ध नहीं है
  • टैबलेट माउंट को आसान बनाया गया है, ताकि यह फ़ोन माउंट की तरह काम करे.
  • लागत कम करने के लिए, एनोडाइज़्ड फ़िनिश के बजाय सैंडब्लास्ट फ़िनिश का इस्तेमाल किया गया है.
  • बीओएम पर एलईडी लाइट के लिए सही की गई खास जानकारी
जून 2018 2.4 उपलब्ध नहीं है
  • शिपिंग के दौरान होने वाले नुकसान को कम करने के लिए, ऐक्रेलिक की जगह एबीएस मटीरियल का इस्तेमाल किया गया.
  • लागत कम करने के लिए, 3D प्रिंटिंग वाले एलिमेंट हटा दिए गए और उनकी जगह लेज़र कटिंग वाले ABS का इस्तेमाल किया गया.
  • बॉक्स के हैंडल को बदल दिया गया है. अब ये बीओएम में अलग से खरीदने के लिए उपलब्ध नहीं हैं, बल्कि एबीएस का इस्तेमाल करके बनाए गए हैं.

मकैनिकल ड्रॉइंग

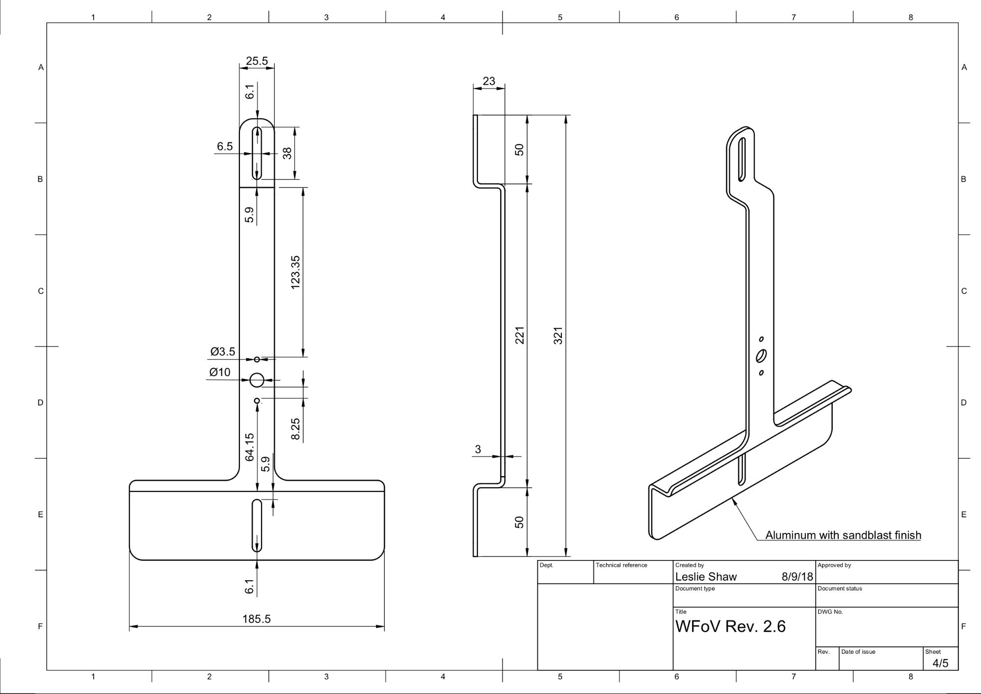
WFoV ITS-in-a-box के इस मैकेनिकल ड्रॉइंग में, असेंबल करने के लिए ज़रूरी सामान दिखाया गया है. शुरू करने के लिए, WFoV ITS-in-a-box के लिए प्रोडक्शन की नई फ़ाइलें डाउनलोड करें.

WFOV ITS-in-a-box की सीएडी ड्रॉइंग

पहली इमेज. WFoV ITS-in-a-box की मैकेनिकल ड्रॉइंग

मटेरियल की सूची (बीओएम) से हार्डवेयर खरीदें. प्लास्टिक और विनाइल के टुकड़ों को काटें.

ज़रूरी टूल

आपके पास ये टूल होने चाहिए:

  • Phillips हेड वाला पेचकस
  • नीडल नोज़ प्लायर
  • वायर कटर
  • कैंची
  • पानी की स्प्रे बॉटल
  • X-ACTO चाकू

पहला चरण: रंगीन विनाइल लगाना

रंगीन विनाइल लागू करने के लिए:

  1. रंगीन विनाइल को ऐक्रिलोनिट्राइल ब्यूटाडीन स्टाइरीन (एबीएस) की चिकनी सतह पर चिपकाएं. इसके बाद, दूसरी इमेज में दिखाए गए तरीके से ज़रूरी ओपनिंग काटें. पक्का करें कि आपने बड़े आयताकार छेद वाला सफ़ेद विनाइल, टैबलेट की तरफ़ और गोल छेद वाला काला विनाइल, बॉक्स के मोबाइल डिवाइस की तरफ़ लगाया हो.

    दूसरी इमेज में दिखाए गए तरीके से, साइड पैनल पर ग्रे विनाइल लगाएं. इसके बाद, तीसरी इमेज में दिखाए गए तरीके से, बॉटम पैनल के चारों कोनों पर फ़ीट चिपकाएं.

    ज़्यादा जानकारी के लिए, wikiHow देखें.

    एबीएस के ऐसे टुकड़े जिनकी चिकनी सतह पर विनाइल लगाया गया हो

    दूसरी इमेज. एबीएस के ऐसे टुकड़े जिनकी चिकनी सतह (बॉक्स के अंदरूनी हिस्से) पर विनाइल लगाया गया हो

  2. तीसरी इमेज में दिखाए गए तरीके से, बॉटम पैनल के चारों कोनों पर पैर लगाएं.

    बॉटम पैनल के फ़ीट

    तीसरी इमेज. नीचे वाले पैनल के चारों कोनों पर पैर

दूसरा चरण: लाइट रेल को असेंबल और इंस्टॉल करना

एलईडी लाइट स्ट्रिप के साथ लाइट फ़्रेम स्ट्रक्चर को असेंबल और इंस्टॉल करने के लिए:

  1. लाइट फ़्रेम स्ट्रक्चर की मैकेनिकल ड्राइंग देखें.

    एलईडी लाइट स्ट्रिप वाला हल्का फ़्रेम

    चौथी इमेज. एलईडी लाइट स्ट्रिप वाला हल्का फ़्रेम

  2. प्लास्टिक के लाइट बैफ़ल, लाइट माउंट, एलईडी लाइट स्ट्रिप, और ज़िप टाई इकट्ठा करें.

    लाइट बैफ़ल, लाइट माउंट, एलईडी लाइट स्ट्रिप, और ज़िप टाई

    पांचवीं इमेज. लाइट बैफ़ल और लाइट माउंट

  3. प्लास्टिक के लाइट बैफ़ल को लाइट माउंट पर लगाएं. इसके लिए, इमेज 6 में दिखाया गया तरीका अपनाएं. यह पूरी तरह से फ़िट होना चाहिए.

    लाइट माउंट में लगे प्लास्टिक के लाइट बैफ़ल

    छठी इमेज. लाइट माउंट में लगे प्लास्टिक के लाइट बैफ़ल

  4. लाइट माउंट को साइड पैनल पर स्नैप करें. इसके लिए, इमेज 7 में दिखाया गया तरीका अपनाएं. जब यह प्रोसेस पूरी हो जाती है, तो बॉक्स के अंदर के सामने वाले कोनों पर रोशनी पड़ती है.

    साइड पैनल पर लाइट बैफ़ल और माउंट लगे हुए हैं

    सातवीं इमेज. साइड पैनल पर लाइट बैफ़ल और माउंट लगे हुए हैं

  5. साइड पैनल जोड़ें. (ज़रूरी नहीं: बेहतर फ़िटिंग के लिए, बैफ़ल के किनारों को सैंड करें.)

    साइड पैनल को असेंबल करके स्क्रू से कस दिया गया है

    आठवीं इमेज. साइड पैनल को असेंबल करके, एक-दूसरे से स्क्रू से जोड़ा गया है

  6. लाइट बैफ़ल को सुरक्षित करने के लिए, पिन को आयताकार टैब में बने छोटे छेद में डालें. यह टैब, साइड पैनल में मौजूद स्लॉट से होकर जाता है. इसे इमेज 9 में दिखाया गया है.

    एलईडी माउंट टैब में पिन डाला गया

    नौवीं इमेज. बॉक्स के बाहर एलईडी माउंट टैब में पिन डालने की क्लोज़-अप इमेज

  7. लाइट स्ट्रिप को नीचे की ओर वाले हिस्से पर, बैफ़ल के चारों ओर दो बार लपेटें. स्ट्रिप को बांधने के लिए, ज़िप टाई का इस्तेमाल करें और सिरों को एक साथ स्नैप करें. (ज़रूरी नहीं: एलईडी लाइट स्ट्रिप को आसानी से लपेटने के लिए, ज़िप टाई के साथ-साथ उसके पीछे लगे टेप का इस्तेमाल करें.)

    बाफ़ल के चारों ओर लिपटी हुई एलईडी लाइट स्ट्रिप

    दसवीं इमेज. ज़िप टाई की मदद से, बाफ़ल के चारों ओर एलईडी लाइट स्ट्रिप लपेटी गई है

    एलईडी लाइट स्ट्रिप को ज़िप टाई से बांधा गया है

    ग्यारहवीं इमेज. एलईडी लाइट स्ट्रिप को अपनी जगह पर रखने के लिए ज़िप टाई

  8. ज़िप टाई के सिरों को काटें. इसके लिए, 12वीं और 13वीं इमेज देखें.

    बफ़ल के आस-पास लगी एलईडी लाइटें बंद हो रही हैं

    बारहवीं इमेज. एलईडी लाइटें, बैफ़ल के चारों ओर दो बार लिपटी हुई हैं और साइड से बाहर निकल रही हैं

    ज़िप टाई का ऊपरी हिस्सा

    तेरहवीं इमेज. ऊपर की ओर दिख रही केबल टाई (एलईडी स्ट्रिप दूसरी तरफ़ हैं)

तीसरा चरण: टैबलेट और फ़ोन के माउंट को असेंबल करना

टैबलेट और फ़ोन माउंट को असेंबल करने के लिए:

  1. टैबलेट माउंट की मैकेनिकल ड्राइंग देखें.

    टैबलेट माउंट की मैकेनिकल ड्रॉइंग

    चौदहवीं इमेज. टैबलेट माउंट की मैकेनिकल ड्रॉइंग

  2. इमेज 15 में दिखाए गए तरीके से, सभी हिस्सों को इकट्ठा करें.

    टैबलेट और फ़ोन माउंट के पार्ट

    15वीं इमेज. स्क्रू, प्लंजर, विनाइल कैप, और नट वाले टैबलेट और फ़ोन माउंट

  3. रबर के टिप को इतना छोटा काटें कि वे प्लंजर के काम में रुकावट न डालें. इसके लिए, उन्हें करीब आधा काटें. इसके बाद, उन्हें प्लंजर के सिरों पर लगाएं. विनाइल कैप की लंबाई कम होने से, प्लंजर मैकेनिज़्म को वापस खींचा जा सकता है और लॉक किया जा सकता है.

    पुश-ऑन कैप वाले प्लंजर

    16वीं इमेज. पुश-ऑन कैप वाले प्लंजर

  4. प्लंजर को माउंट पर कसें.

    प्लंजर वाले टैबलेट और फ़ोन माउंट

    17वीं इमेज. प्लंजर वाले टैबलेट और फ़ोन माउंट

चौथा चरण: फ़ाइनल असेंबली

WFoV ITS बॉक्स को असेंबल करने के लिए:

  1. सामने के अपर्चर प्लेट इकट्ठा करें. इसके बाद, 4-40 स्क्रू का इस्तेमाल करके, छोटी प्लेट को बड़ी प्लेट के ऊपर स्क्रू करें. छोटी प्लेट के ऊपर चौकोर हिस्सा होना चाहिए. ऐसा चित्र 18 में दिखाए गए तरीके से करें.

    अपर्चर प्लेट और फ़ोन माउंट प्लेट से

    18वीं इमेज. सामने की ओर मौजूद अपर्चर प्लेट और फ़ोन माउंट करने वाली प्लेट

    असेंबल की गई फ़्रंट अपर्चर प्लेट

    19वीं इमेज. फ़्रंट अपर्चर प्लेट और फ़ोन माउंट प्लेट को 4-40 स्क्रू की मदद से एक साथ स्क्रू किया गया है

  2. आगे और पीछे के पैनल को बॉक्स पर टेप से चिपकाएं.

    WFoV बॉक्स, जिसकी साइडें एक साथ स्क्रू की गई हैं

    20वीं इमेज. WFoV बॉक्स, जिसकी साइडें एक साथ स्क्रू की गई हैं और सामने और पीछे के पैनल टेप किए गए हैं

  3. मौजूदा छेदों के आधार पर पायलट होल (छेद करने से पहले निशान लगाने के लिए किया जाने वाला छोटा छेद) बनाने के लिए, पावर ड्रिल का इस्तेमाल करें. पक्का करें कि पायलट होल, 4-40 स्क्रू के लिए काफ़ी बड़े हों, ताकि स्क्रू डालते समय ABS प्लास्टिक न टूटे.

    पायलट होल

    21वीं इमेज. 4-40 स्क्रू के लिए शुरुआती छेद करना

  4. सेल्फ़-टैपिंग वाले 4-40 स्क्रू का इस्तेमाल करके, सभी पैनल को एक साथ स्क्रू करें.

    असेंबली के लिए 4-40 स्क्रू

    22वीं इमेज. असेंबली के लिए 4-40 स्क्रू

  5. इमेज 23 में दिखाए गए हैंडल के हिस्सों को इकट्ठा करें.

    पुर्ज़ों को मैनेज करना

    23वीं इमेज. पुर्ज़ों को मैनेज करना

  6. हैंडल को इमेज 24 में दिखाए गए तरीके से जोड़ें.

    असेंबल किया गया हैंडल

    24वीं इमेज. असेंबल किया गया हैंडल

  7. देख लें कि पावर अडैप्टर 12V, 5A का हो और उसके पास UL लिस्टेड सर्टिफ़िकेट हो. 12V से कम वोल्टेज पर, यह काम नहीं करता. पांच ऐंपियर से कम करंट होने पर, लाइट की रोशनी पर असर पड़ सकता है.

    12V, 5A पावर अडैप्टर

    25वीं इमेज. 12V, 5A पावर अडैप्टर, जिसमें UL सर्टिफ़िकेट शामिल हो

  8. डिजिटल लक्स मीटर का इस्तेमाल करके, एलईडी लाइट के लक्स की जांच करें. इससे यह पक्का किया जा सकेगा कि वे सही लेवल पर हैं.

    लाइट मीटर को टैबलेट की तरफ़ रखें और रोशनी को मेज़र करने के लिए, उसे 2000 लक्स पर सेट करें. लक्स की वैल्यू 100 से 300 के बीच होनी चाहिए. इससे कम रोशनी होने पर, टेस्ट के नतीजे सही नहीं आते और टेस्ट फ़ेल हो सकते हैं.

    इस उदाहरण में, Contempo Views के YF-1065 लक्स मीटर का इस्तेमाल किया गया है.

    Contempo Views का YF-1065

    26वीं इमेज. Contempo Views का YF-1065

    लक्स मीटर

    27वीं इमेज. टैबलेट माउंट के साथ, साइड से रोशनी को मेज़र करने वाला लक्स मीटर

  9. मेज़र की गई लक्स वैल्यू के आधार पर, सही तरीका अपनाएं:

    • अगर लाइट सही लेवल पर है, तो आगे और पीछे की प्लेटों को स्क्रू से कसें.
    • अगर लाइट सही लेवल पर नहीं है, तो जांच करें कि एलईडी और पावर सप्लाई के पार्ट नंबर सही हैं.
  10. पेच और नट की मदद से, फ़ोन माउंट को अपर्चर प्लेट पर और टैबलेट माउंट को दूसरी तरफ़ लगाएं.

    टैबलेट माउंट

    28वीं इमेज. टैबलेट माउंट की क्लोज़ अप इमेज

    असेंबल किया गया WFoV बॉक्स

    29वीं इमेज. असेंबल किया गया WFoV बॉक्स: पीछे का व्यू (बाईं ओर) और सामने का व्यू (दाईं ओर)

  11. DUT के कैमरे के अपर्चर में फ़िट होने के लिए, 10x10 सेमी का गेटर बोर्ड अपर्चर डालें.

    Gator बोर्ड का एपर्चर

    तीसवीं इमेज. ITS-in-a-box में गटर बोर्ड का अपर्चर इंस्टॉल किया गया है

  12. कैमरे को अपर्चर के साथ अलाइन करके, फ़ोन को इंस्टॉल करें. टैबलेट के खुलने की जगह से अलाइनमेंट की जांच करें.

    एक फ़ोन इंस्टॉल किया गया बॉक्स

    31वीं इमेज. ITS-in-a-box में एक फ़ोन इंस्टॉल किया गया है

  13. कैमरों के लिए छेद करें. एक फ़ोन की टेस्टिंग के लिए, एक छेद काटा जा सकता है. वहीं, दो फ़ोन की टेस्टिंग के लिए, दो छेद काटे जा सकते हैं. Pixel और Pixel XL के सामने और पीछे के कैमरों के अपर्चर, इमेज 32 में दिखाए गए हैं. सामने वाले कैमरे में गोलाकार अपर्चर होता है, क्योंकि इसमें फ़्लैश या लेज़र नहीं होता. वहीं, पीछे वाले कैमरे में आयताकार अपर्चर होता है, ताकि फ़्लैश और लेज़र बिना किसी रुकावट के काम कर सकें.

    सामने और पीछे वाले कैमरों के लिए अपर्चर

    32वीं इमेज. सामने और पीछे के कैमरों के लिए अपर्चर के सैंपल

    इमेज

    33वीं इमेज. दो फ़ोन में ITS-in-a-box इंस्टॉल किया गया है

    इसके अलावा, कार्डबोर्ड से अपर्चर काटकर, उसे मार्कर, स्प्रे पेंट या ऐक्रेलिक से काला किया जा सकता है. जैसा कि इमेज 34 में दिखाया गया है.

    इमेज

    34वीं इमेज. सामने और पीछे, दोनों कैमरों के लिए कार्डबोर्ड के सैंपल अपर्चर

ध्यान रखने लायक बातें

यहां मैन्युफ़ैक्चरिंग से जुड़ी कुछ सामान्य गड़बड़ियों के उदाहरण दिए गए हैं. इनकी वजह से, टेस्ट फ़्लेकी हो सकते हैं.

  • टैबलेट का पिछला पैनल, जिसमें छेद किए गए हैं. स्क्रू के छेद की वजह से बने अतिरिक्त सर्कल की वजह से, find_circle टेस्ट फ़ेल हो जाता है.

    छेद वाला बैक पैनल

    35वीं इमेज. पीछे का पैनल, जिसमें छेद किए गए हैं

  • डौल मौजूद नहीं हैं. इस वजह से, शिपिंग के दौरान लाइट बैफ़ल निकल जाते हैं.

    डौल मौजूद नहीं है

    36वीं इमेज. लाइट बैफ़ल पर डावल मौजूद नहीं है

  • पावर सप्लाई, UL की सूची में शामिल नहीं है. यूएल लिस्टेड पावर सप्लाई का इस्तेमाल करने से, लेबल की गई खास बातों को पूरा किया जा सकता है. लाइटिंग को सुरक्षित तरीके से इस्तेमाल करने के लिए यह ज़रूरी है.

    UL-लिस्टेड पावर सप्लाई

    37वीं इमेज. यूएल में लिस्ट की गई पावर सप्लाई का उदाहरण

  • टैबलेट या फ़ोन माउंट पर लगे स्क्रू ढीले हो गए हैं. इस वजह से, वे टैबलेट या फ़ोन का वज़न नहीं संभाल पा रहे हैं. आम तौर पर, ऐसा थ्रेड के खराब होने की वजह से होता है. इससे पता चलता है कि छेद को फिर से थ्रेड करने की ज़रूरत है.

    थ्रेड खराब होने की वजह से छेद

    38वीं इमेज. थ्रेड खराब होने की वजह से छेद